9351 Six Mt Zion Rd, Toano, VA 23168
Local realty services provided by:ERA Byrne Realty
9351 Six Mt Zion Rd,Toano, VA 23168
$1,190,000
- 80.93 Acres
- Lots / Land
- Pending
Listed by:charles p britt
Office:shaheen, ruth, martin & fonville real estate
MLS#:VAJC2000408
Source:BRIGHTMLS
Price summary
- Price:$1,190,000
- Monthly HOA dues:$0.08
About this home
Significant PRICE reduction - Priced to buy now AS-IS - Investors and Developers
Prime Development !!! opportunity within the Stonehouse Master Planned community near Williamsburg, VA. LOCATION LOCATION
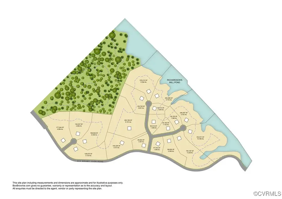
Tract 3 Parel D is an 80 acre tract on the banks of Richardson’s Mill Pond. There is a conceptual lotting plan for 19 large lots, that are allowed under the master plan. These lots are by right and no public hearings are required for approval. Estimated approval time 10 months. The property is a part of the Stonehouse Planned Unit Development and is subject to the Stonehouse Master Plan and Proffers. The property is under the control of the Stonehouse Owners Foundation Property Owners Association. The Stonehouse community homeowners enjoy a considerable amenity package that currently includes, the Laurel Grove Park and recreation facility, tennis courts, and miles of existing multi-use paths and trails. The Stonehouse Golf Club, is also within the Stonehouse community. The location is exceptional, being 45 minutes to Richmond, 40 minutes to Richmond Airport, 20 minutes to Colonial Williamsburg, 1 hour and 30 minutes to Virginia Beach, and within a few hours of Washington, DC. This is one of the last chances to develop such spacious lots in a highly desirable area.
Contact an agent
Home facts
- Listing ID #:VAJC2000408
- Added:200 day(s) ago
- Updated:October 05, 2025 at 07:35 AM
Structure and exterior
- Lot area:80.93 Acres
Schools
- High school:JAMESTOWN
- Middle school:TOANO
- Elementary school:STONEHOUSE
Utilities
- Water:Public Hook-up Available
- Sewer:Public Sewer
Finances and disclosures
- Price:$1,190,000
- Tax amount:$1,381 (2024)
New listings near 9351 Six Mt Zion Rd
- New$617,500Active4 beds 4 baths2,605 sq. ft.
9969 Mill Pond Run, Toano, VA 23168
MLS# 2527709Listed by: HOWARD HANNA WILLIAM E WOOD - New$390,000Active3 beds 3 baths1,834 sq. ft.
3403 Foxglove Drive, Toano, VA 23168
MLS# 10604230Listed by: KW Coastal Chesapeake Virginia LLC - New$445,000Active3 beds 3 baths2,413 sq. ft.
3143 Cider House Road, Toano, VA 23168
MLS# 2527456Listed by: HOWARD HANNA WILLIAM E WOOD - New$2,225,000Active4 beds 4 baths3,597 sq. ft.
2902 Forge Road, Toano, VA 23168
MLS# 10603173Listed by: Liz Moore & Associates LLC - New$285,000Active3 beds 3 baths1,452 sq. ft.
3401 Westham Lane, Toano, VA 23168
MLS# 10603356Listed by: EXP Realty LLC - New$595,000Active3 beds 2 baths2,968 sq. ft.
7201 Church Lane, Toano, VA 23168
MLS# 2526954Listed by: COLDWELL BANKER TRADITIONS - $735,000Pending4 beds 3 baths3,592 sq. ft.
3115 Bent Tree Ln, TOANO, VA 23168
MLS# VAJC2000536Listed by: SHAHEEN, RUTH, MARTIN & FONVILLE REAL ESTATE - $470,000Active3 beds 3 baths2,300 sq. ft.
8468 Sheldon Branch Place, Toano, VA 23168
MLS# 10603081Listed by: Liz Moore & Associates LLC - $260,000Active3 beds 1 baths1,056 sq. ft.
3284 Chickahominy Road, Toano, VA 23168
MLS# 10603055Listed by: Legacy Builders Realty Group LLC - $479,900Active3 beds 3 baths2,702 sq. ft.
3415 Pine Ridge Road, Toano, VA 23168
MLS# 10602466Listed by: RE/MAX Peninsula