1929 Magnolia Road, Lynnwood, WA 98036
Local realty services provided by:Knipe Realty ERA Powered
Listed by:kevin tuley
Office:keller williams realty bothell
MLS#:240167
Source:NWMLS
1929 Magnolia Road,Lynnwood, WA 98036
$1,000,000
- 1.03 Acres
- Lots / Land
- Pending
Price summary
- Price:$1,000,000
About this home
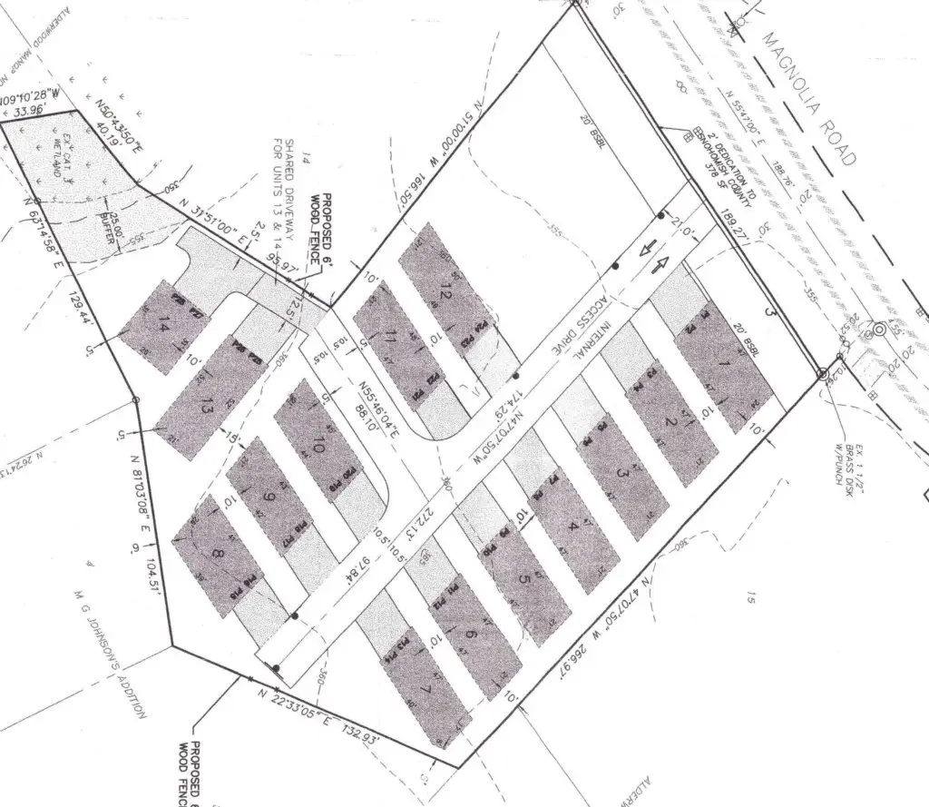
This LDMR plat consists of 12 lots. This development is 95% complete. Total price to complete this project is about $50,000.00's. Don't miss out on this Great Deal!!
Contact an agent
Home facts
- Listing ID #:240167
- Updated:October 01, 2025 at 04:55 PM
Structure and exterior
- Lot area:1.03 Acres
Utilities
- Water:On Property
- Sewer:On Property
Finances and disclosures
- Price:$1,000,000
- Tax amount:$3,306 (2011)
New listings near 1929 Magnolia Road
- New$795,950Active5 beds 3 baths2,812 sq. ft.
2612 204th Street Sw, Lynnwood, WA 98036
MLS# 2438990Listed by: SKYLINE PROPERTIES, INC. - Open Sat, 12 to 4pmNew$694,900Active4 beds 4 baths1,646 sq. ft.
14424 Madison Way #G1, Lynnwood, WA 98087
MLS# 2439644Listed by: WINDERMERE REAL ESTATE M2 LLC - New$134,995Active2 beds 1 baths1,022 sq. ft.
14322 Admiralty Way #48, Lynnwood, WA 98087
MLS# 2439596Listed by: REALTY ONE GROUP ORCA - Open Sat, 12 to 4pmNew$654,900Active3 beds 4 baths1,626 sq. ft.
14424 Madison Way #G4, Lynnwood, WA 98087
MLS# 2439695Listed by: WINDERMERE REAL ESTATE M2 LLC - Open Sat, 12 to 4pmNew$729,900Active4 beds 4 baths1,800 sq. ft.
14424 Madison Way #G2, Lynnwood, WA 98087
MLS# 2439679Listed by: WINDERMERE REAL ESTATE M2 LLC - New$599,950Active3 beds 3 baths1,391 sq. ft.
3910 132nd Street Sw #B, Lynnwood, WA 98087
MLS# 2439414Listed by: JOHN L. SCOTT SNOHOMISH - $1,100,000Pending4 beds 3 baths2,434 sq. ft.
18614 57th Place W, Lynnwood, WA 98037
MLS# 2436411Listed by: WINDERMERE REAL ESTATE/EAST - New$700,000Active3 beds 3 baths1,901 sq. ft.
1217 143rd Street Sw, Lynnwood, WA 98037
MLS# 2438921Listed by: WINDERMERE REAL ESTATE/EAST - New$830,000Active5 beds 3 baths2,088 sq. ft.
18809 65th Place W, Lynnwood, WA 98036
MLS# 2436731Listed by: REDFIN