2439 SW Ridgeway Drive, Oak Harbor, WA 98277

Local realty services provided by:Knipe Realty ERA Powered
Listed by: rick chapman, kevin johnson
Office: coldwell banker 360 team
MLS#:2470644
Source:NWMLS
2439 SW Ridgeway Drive,Oak Harbor, WA 98277
$649,950
  • 4 Beds
  • 3 Baths
  • 2,123 sq. ft.
  • Single family
  • Pending

Price summary

  • Price:$649,950
  • Price per sq. ft.:$306.15
  • Monthly HOA dues:$95

About this home

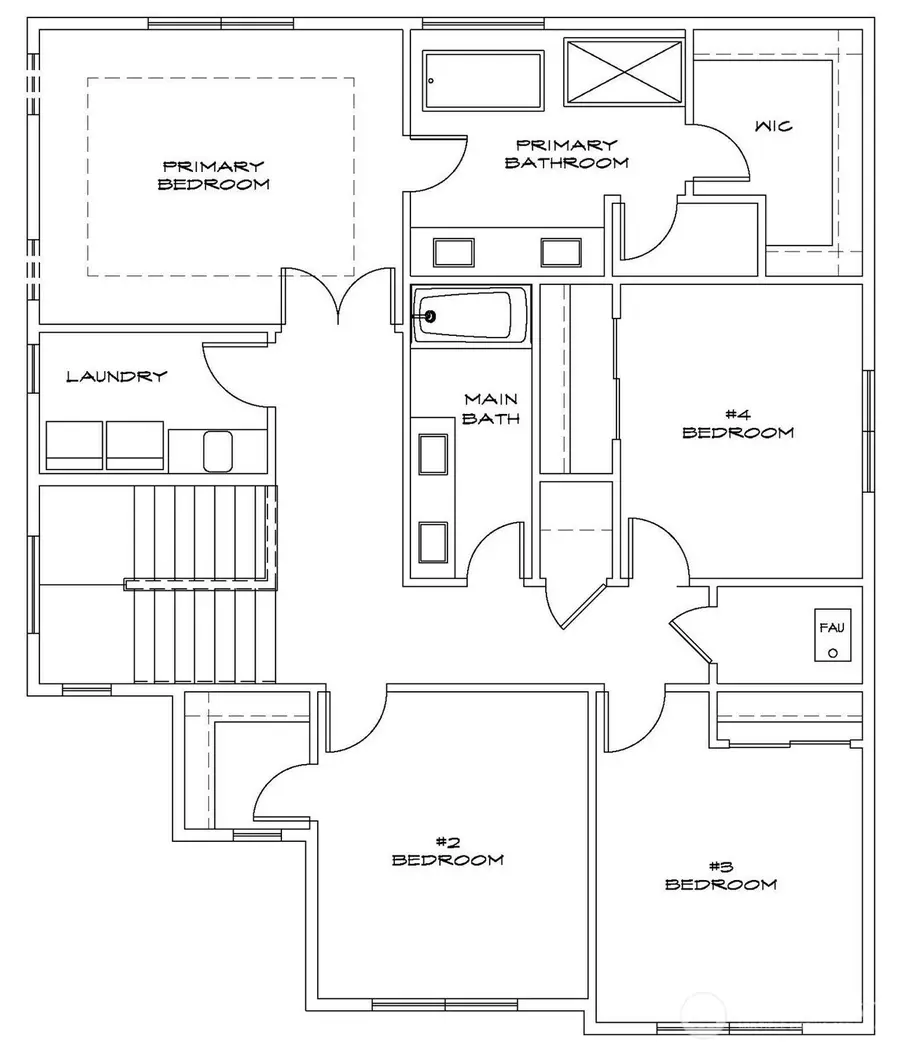
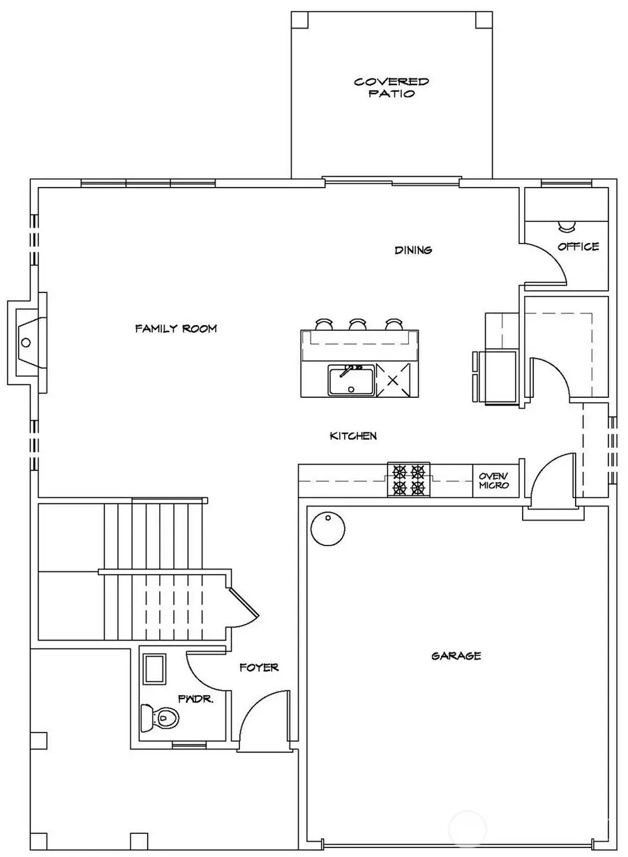
Welcome to Ridgeway Heights! The Marietta, Lot 11, offers a spacious 2,123 square-foot plan with 4 bedrooms & 2.5 bathrooms. The main floor features an open kitchen, dining, family room with fireplace & pocket office. Enjoy a covered patio, full landscaping & fully fenced backyard. The second floor features bedrooms, laundry & spacious primary bedroom w/ensuite bathroom & walk-in closet. Quality finishes include white cabinetry, stainless steel appliances, quartz counters, heat pump (providing A/C), garage door opener with remote and more! This floorplan lives large! Site Registration Policy – Buyers must register Broker on first visit & Broker to attend future visits.

Contact an agent

contact an agent

Yes, I would like more information. Please use and/or share my information with an ERA®  affiliated agent to contact me about my real estate needs. By clicking Send message, I request to be contacted by phone or text message and consent to being contacted by automated means. I understand that my consent to receive calls or texts is not a condition of purchasing any property, goods, or services. Alternatively, I understand that I can access real estate services by email or I can contact the agent myself.

If an ERA®  affiliated agent is not available in the area where I need assistance, I agree to be contacted by a real estate agent affiliated with another brand owned or licensed by Anywhere Real Estate (BHGRE® , CENTURY 21® , Coldwell Banker® , Corcoran® , Sotheby's International Realty® ).
 I acknowledge that I have read and agree to theTerms of useandPrivacy notice

Home facts

  • Year built:2025
  • Listing ID #:2470644
  • Updated:May 15, 2026 at 05:43 PM

Rooms and interior

  • Bedrooms:4
  • Total bathrooms:3
  • Full bathrooms:2
  • Half bathrooms:1
  • Flooring:Carpet, Ceramic Tile Floor, Vinyl Floor, Vinyl Plank
  • Kitchen Description:Disposal
  • Bedroom Description:Upper Level Bedrooms : 4
  • Basement:Yes
  • Living area:2,123 sq. ft.

Heating and cooling

  • Heating:Forced Air, HRV/ERV System, Heat Pump

Structure and exterior

  • Roof:Composition
  • Year built:2025
  • Building area:2,123 sq. ft.
  • Lot area:0.09 Acres
  • Architectural Style:Northwest Contemporary
  • Construction Materials:Stone Exterior Finish, Wood Products Exterior Finish
  • Exterior Features:Fenced-Fully, Patio
  • Foundation Description:None
  • Levels:2 Story

Schools

  • High school:Buyer To Verify
  • Middle school:Buyer To Verify
  • Elementary school:Buyer To Verify

Utilities

  • Water:Public
  • Sewer:Sewer Connected

Finances and disclosures

  • Price:$649,950
  • Price per sq. ft.:$306.15

Features and amenities

  • Amenities:Double Pane/Storm Window, Gas Available, High Speed Internet, Walk-In Closet(s), Walk-In Pantry, Water Heater

Parking

  • Total parking spaces:2
  • Parking description:Attached Garage
  • Garage:Yes
MLS LogoListings courtesy of Northwest MLS as distributed by MLS GRID. Based on information submitted to the MLS GRID as of May 16, 2026. All data is obtained from various sources and may not have been verified by broker or MLS GRID. Supplied Open House Information is subject to change without notice. All information should be independently reviewed and verified for accuracy. Properties may or may not be listed by the office/agent presenting the information. Listing information is provided for consumers' personal, non-commercial use, solely to identify prospective properties for potential purchase; all other use is strictly prohibited and may violate relevant federal and state law. Information deemed reliable but not guaranteed. Copyright © 2026 MLS GRID. All Rights Reserved.