- ERA
- Washington
- Richland
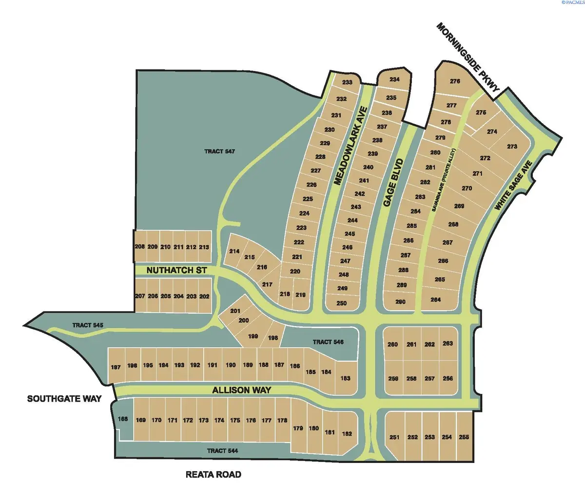
- 3467 Allison Way Lot 181
3467 Allison Way Lot 181, Richland, WA 99352
Local realty services provided by:ERA Skyview Realty
3467 Allison Way Lot 181,Richland, WA 99352
$142,000
- 0.19 Acres
- Lots / Land
- Active
Listed by: jenna roark
Office: re/max, the collective
MLS#:282893
Source:WA_PRMLS
Price summary
- Price:$142,000
About this home
MLS# 282893 Welcome to your future investment opportunity in the heart of South Orchard, Badger Mountain South! This single-family residential lot is nestled within a master-planned community designed to offer the perfect balance of convenience and tranquility. With its prime location, this land is an ideal spot for building your dream home amidst a vibrant and walkable neighborhood. Imagine living steps away from paved walking trails that connect you to scenic community parks, where relaxation and outdoor activities await. The proximity to schools ensures an easy daily commute for families, while a newly constructed fire station adds an extra layer of safety and peace of mind. This lot represents more than just land; it offers the promise of a thriving community experience for families of all ages. Don’t miss the chance to create a home that’s part of a sought-after neighborhood, rich with amenities and designed for the best quality of life. Act now to secure this exceptional property and start planning the home of your dreams!
Contact an agent
Home facts
- Listing ID #:282893
- Added:107 day(s) ago
- Updated:January 10, 2026 at 03:46 PM
Structure and exterior
- Lot area:0.19 Acres
Utilities
- Water:Public Water, Water to Property Line
- Sewer:Public Sewer Available, Sewer to Property Line
Finances and disclosures
- Price:$142,000
New listings near 3467 Allison Way Lot 181
- Open Sat, 12 to 2pmNew
$699,000Active4 beds 4 baths2,888 sq. ft.176 Andrea Lane, Richland, WA 99352
MLS# 290156Listed by: AMPLIFY REAL ESTATE SERVICES - Open Sat, 2 to 4pmNew
$549,000Active4 beds 3 baths2,367 sq. ft.119 Willowbrook Pl, Richland, WA 99352
MLS# 290150Listed by: EXP REALTY, LLC TRI CITIES - New
$439,990Active3 beds 2 baths1,408 sq. ft.3662 Stonecap St., Richland, WA 99352
MLS# 290145Listed by: NEW HOME STAR WASHINGTON LLC - Open Sat, 1 to 3pmNew
$315,000Active2 beds 2 baths1,258 sq. ft.2213 Duportail St, Richland, WA 99352
MLS# 290130Listed by: WINDERMERE GROUP ONE/TRI-CITIES - Open Sat, 10am to 12pmNew
$479,000Active3 beds 2 baths1,438 sq. ft.3902 Barbera St, Richland, WA 99352
MLS# 290128Listed by: COLDWELL BANKER TOMLINSON - Open Sat, 9 to 11amNew
$349,000Active3 beds 2 baths1,539 sq. ft.529 Wisteria St, Richland, WA 99352
MLS# 290129Listed by: RE/MAX NORTHWEST REALTORS - New
$427,990Active3 beds 3 baths1,573 sq. ft.613 Snowking Street, Richland, WA 99352
MLS# 290123Listed by: NEW HOME STAR WASHINGTON LLC
$125,000Pending0.18 Acres2922 Gage Blvd Lot 278, Richland, WA 99352
MLS# 283740Listed by: RE/MAX, THE COLLECTIVE- New
$584,500Active3 beds 3 baths1,929 sq. ft.2919 Meadowlark Ave, Richland, WA 99352
MLS# 290119Listed by: COLDWELL BANKER TOMLINSON - New
$580,500Active3 beds 3 baths1,917 sq. ft.2912 Meadowlark Ave, Richland, WA 99352
MLS# 290120Listed by: COLDWELL BANKER TOMLINSON