3103 NE 141st Ave, Vancouver, WA 98682

Local realty services provided by:ERA Freeman & Associates, Realtors
3103 NE 141st Ave,Vancouver, WA 98682
$969,900
  • - Beds
  • - Baths
  • - sq. ft.
  • Multi-family
  • Active
Listed by: terry wollam, ala malyakin
Office: re/max equity group360-882-6000
MLS#:237255139
Source:PORTLAND

Price summary

  • Price:$969,900

About this home

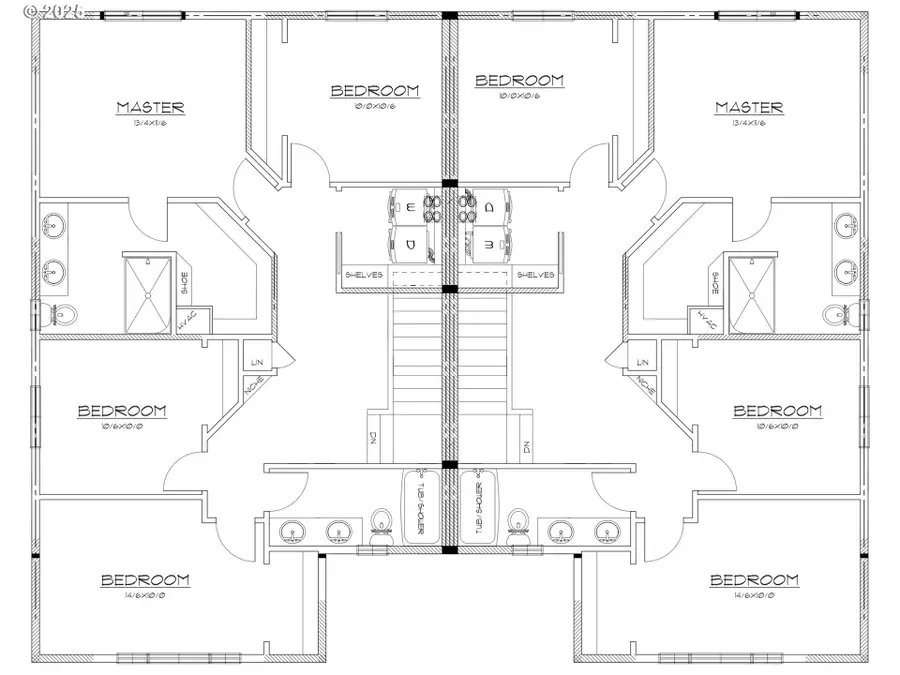
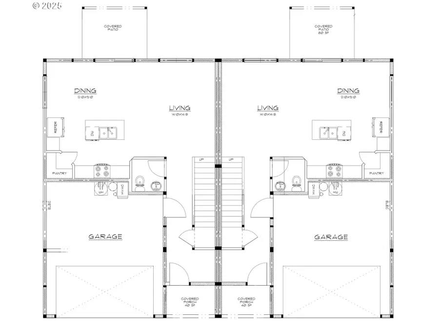
This beautiful craftsman home features 2 large units, each with 4-bedrooms and 2.5 baths along with a spacious open concept living room and kitchen. The great room offers high ceilings, and a bright dining nook. The kitchen is designed for everyday convenience with stainless steel appliances, quartz countertops, custom cabinetry, an island, pantry, and built-in microwave, freestanding range, and dishwasher. Upstairs, the primary suite includes a walk-in shower, double sinks and a generous walk-in closet. Enjoy the outdoors year-round on the covered living area, surrounded by natural scenery in a large fenced in backyard. Additional highlights include laminate flooring, double-pane windows, and easy access to 164th Ave and Highway 14 for convenient commuting. Each unit has a parking space in the front driveway and an attached one car garage. Great investment opportunity!

Contact an agent

contact an agent

Yes, I would like more information. Please use and/or share my information with an ERA®  affiliated agent to contact me about my real estate needs. By clicking Send message, I request to be contacted by phone or text message and consent to being contacted by automated means. I understand that my consent to receive calls or texts is not a condition of purchasing any property, goods, or services. Alternatively, I understand that I can access real estate services by email or I can contact the agent myself.

If an ERA®  affiliated agent is not available in the area where I need assistance, I agree to be contacted by a real estate agent affiliated with another brand owned or licensed by Anywhere Real Estate (BHGRE® , CENTURY 21® , Coldwell Banker® , Corcoran® , Sotheby's International Realty® ).
 I acknowledge that I have read and agree to theTerms of useandPrivacy notice

Home facts

  • Year built:2026
  • Listing ID #:237255139
  • Added:160 day(s) ago
  • Updated:May 15, 2026 at 11:15 AM

Rooms and interior

  • Basement Description:Crawl Space

Heating and cooling

  • Cooling:Heat Pump
  • Heating:Heat Pump

Structure and exterior

  • Roof:Composition
  • Year built:2026
  • Lot Features:Level
  • Foundation Description:Concrete Perimeter
  • Levels:2 Stories

Schools

  • High school:Evergreen
  • Middle school:Cascade
  • Elementary school:Burton

Utilities

  • Water:Public Water
  • Sewer:Public Sewer

Finances and disclosures

  • Price:$969,900
  • Tax amount:$1,721

Parking

  • Total parking spaces:4
  • Parking description:Garage
  • Garage spaces:4
MLS LogoAll information provided is deemed reliable but is not guaranteed and should be independently verified. The content relating to real estate for sale on this web site comes in part from the IDX program of the RMLS of Portland Oregon. Real estate listings held by brokerage firms other than ERA Freeman & Associates, Realtors are marked with the RMLS logo and detailed information about these properties includes the names of the listing brokers. Copyright 2026 RMLS, Portland, Oregon. Last updated: May 15, 2026