N118W14940 Mistletoe ROAD, Germantown, WI 53022
Local realty services provided by:ERA MyPro Realty
Listed by: erin russell
Office: tim o'brien homes
MLS#:1943484
Source:Metro MLS
N118W14940 Mistletoe ROAD,Germantown, WI 53022
$624,900
- 4 Beds
- 3 Baths
- 2,203 sq. ft.
- Single family
- Active
Price summary
- Price:$624,900
- Price per sq. ft.:$283.66
About this home
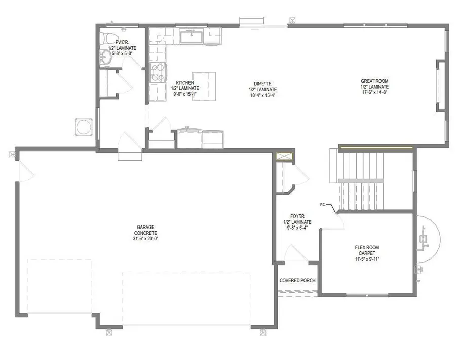
The Lily is a thoughtfully designed two-story floor plan that combines functionality and comfort for modern living. Located in Germantown's Wrenwood North community. Kitchen features soft close stained cabinets, quartz countertops, & exterior vented range hood. Kitchen sink overlooks backyard. Dinette connects kitchen & GR. Great room includes a cozy electric fireplace with stone detail. Flex room w/ door off foyer makes a great office or playroom. 2nd floor features primary suite, 3 secondary bedrooms, hall bath & laundry room. Primary includes a box tray ceiling, spacious WIC, tiled shower & double sinks. LL level has egress window, full bath rough-in & space for future finishing. Home is currently under construction, estimated completion April/May 2026.
Contact an agent
Home facts
- Year built:2025
- Listing ID #:1943484
- Added:105 day(s) ago
- Updated:March 06, 2026 at 04:14 PM
Rooms and interior
- Bedrooms:4
- Total bathrooms:3
- Full bathrooms:2
- Bathrooms Description:Ceramic Tile, Master Bedroom Bath, Shower Over Tub, Stubbed For Bathroom on Lower, Tub Only
- Kitchen Description:Dishwasher, Disposal, Microwave, On Main Level
- Bedroom Description:Master Bedroom On Upper Level, Walk-In Closet(s)
- Basement Description:Full, Radon Mitigation System, Sump Pump
- Living area:2,203 sq. ft.
Heating and cooling
- Cooling:Central Air, Forced Air, Whole House Fan
- Heating:Forced Air, Natural Gas
Structure and exterior
- Year built:2025
- Building area:2,203 sq. ft.
- Lot area:0.34 Acres
- Architectural Style:Farmhouse/National Folk
- Construction Materials:Aluminum Trim, Brick/Stone, Fiber Cement, Stone
- Foundation Description:Poured Concrete
- Levels:2 Story
Schools
- High school:Germantown
- Middle school:Kennedy
Utilities
- Water:Municipal Water
- Sewer:Municipal Sewer
Finances and disclosures
- Price:$624,900
- Price per sq. ft.:$283.66
Features and amenities
- Appliances:Dishwasher, Disposal, Microwave
- Amenities:Cable/Satellite Available, High Speed Internet, Pantry
New listings near N118W14940 Mistletoe ROAD
$465,000Active4 beds 3 baths2,328 sq. ft.W158N10768 Catskill LANE, Germantown, WI 53022
MLS# 1952548Listed by: SHOREWEST REALTORS, INC.- New
$499,900Active2 beds 2 baths1,979 sq. ft.W142N11263 Wrenwood PASS, Germantown, WI 53022
MLS# 1952248Listed by: HARBOR HOMES INC
$499,900Active2 beds 2 baths1,979 sq. ft.W142N11267 Wrenwood PASS, Germantown, WI 53022
MLS# 1952251Listed by: HARBOR HOMES INC
$499,900Pending2 beds 2 baths1,863 sq. ft.W142N11269 Wrenwood PASS, Germantown, WI 53022
MLS# 1952254Listed by: HARBOR HOMES INC- New
$499,900Active2 beds 2 baths1,979 sq. ft.W142N11265 Wrenwood PASS, Germantown, WI 53022
MLS# 1952242Listed by: HARBOR HOMES INC
$350,000Active2 beds 2 baths1,272 sq. ft.N96W14204 Knollcrest COURT, Germantown, WI 53022
MLS# 1952105Listed by: FIRST WEBER INC - MENOMONEE FALLS
$393,000Pending3 beds 2 baths2,423 sq. ft.W166N10436 Surrey DRIVE, Germantown, WI 53022
MLS# 1951848Listed by: LANNON STONE REALTY LLC
$574,900Pending3 beds 3 baths2,492 sq. ft.N105W14697 Lincoln DRIVE, Germantown, WI 53022
MLS# 1951417Listed by: FIREFLY REAL ESTATE, LLC
$639,900Pending3 beds 3 baths2,086 sq. ft.W149N11959 Red Holly DRIVE, Germantown, WI 53022
MLS# 1950906Listed by: TIM O'BRIEN HOMES
$224,900Pending3 beds 2 baths1,250 sq. ft.W163N11527 Windsor COURT #3, Germantown, WI 53022
MLS# 1950914Listed by: REDEFINED REALTY ADVISORS LLC