725 Brookview COURT, Racine, WI 53402

Local realty services provided by:ERA MyPro Realty
Listed by: kimberly hood
Office: re/max newport
MLS#:1944210
Source:Metro MLS
725 Brookview COURT,Racine, WI 53402
$683,900
  • 3 Beds
  • 1 Baths
  • - sq. ft.
  • Single family
  • Sold

Sorry, we are unable to map this address


Price summary

  • Price:$683,900
  • Monthly HOA dues:$16.67

About this home

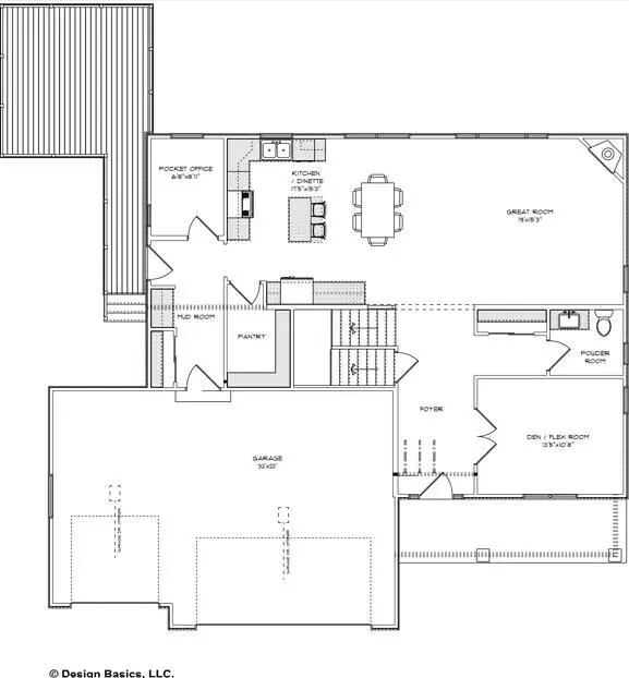
Beautiful new construction two story home with a look out basement in progress in Creekview Estates in Caledonia! The Baylee 2 story is a 3 bed, 2.5 bath and 3 car garage home plan. Upon entering the home, there is a convenient flex room/den just off of the foyer. Open concept great room, dinette and kitchen. Kitchen features maple cabinets, and a huge walk-in pantry. Off the kitchen is a pocket office, a terrific place to use as a home office! Upstairs there are three bedrooms and two full baths. The master suite features a HUGE walk-in closet and a bath with stunning ceramic tile shower. 2nd floor laundry room.

Contact an agent

contact an agent

Yes, I would like more information. Please use and/or share my information with an ERA®  affiliated agent to contact me about my real estate needs. By clicking Send message, I request to be contacted by phone or text message and consent to being contacted by automated means. I understand that my consent to receive calls or texts is not a condition of purchasing any property, goods, or services. Alternatively, I understand that I can access real estate services by email or I can contact the agent myself.

If an ERA®  affiliated agent is not available in the area where I need assistance, I agree to be contacted by a real estate agent affiliated with another brand owned or licensed by Anywhere Real Estate (BHGRE® , CENTURY 21® , Coldwell Banker® , Corcoran® , Sotheby's International Realty® ).
 I acknowledge that I have read and agree to theTerms of useandPrivacy notice

Home facts

  • Year built:2025
  • Listing ID #:1944210
  • Added:119 day(s) ago
  • Updated:March 31, 2026 at 03:58 AM

Rooms and interior

  • Bedrooms:3
  • Total bathrooms:1
  • Bathrooms Description:Ceramic Tile, Master Bedroom Bath, Shower Over Tub, Shower Stall, Stubbed For Bathroom on Lower, Tub Only
  • Kitchen Description:Dishwasher, Disposal, Microwave, On Main Level, Range, Refrigerator
  • Bedroom Description:Master Bedroom On Upper Level
  • Basement Description:8'+ Ceiling, Exposed, Full, Sump Pump

Heating and cooling

  • Cooling:Central Air, Forced Air
  • Heating:Forced Air, Natural Gas

Structure and exterior

  • Year built:2025
  • Architectural Style:Contemporary
  • Construction Materials:Brick/Stone, Masonite/PressBoard, Stone
  • Foundation Description:Poured Concrete
  • Levels:2 Story

Schools

  • High school:Horlick
  • Middle school:Jerstad-Agerholm
  • Elementary school:O Brown

Utilities

  • Water:Municipal Water
  • Sewer:Municipal Sewer

Finances and disclosures

  • Price:$683,900
  • Tax amount:$1,494 (2024)

Features and amenities

  • Appliances:Dishwasher, Disposal, Microwave, Range, Refrigerator
  • Amenities:Cable/Satellite Available, Pantry

Parking

  • Parking description:3 Car Garage, Garage - Attached, Garage Opener Included
  • Garage spaces:3
The information being provided by Wisconsin Real Estate Exchange is for the consumer’s personal, non-commercial use and may not be used for any purpose other than to identify prospective properties consumers may be interested in purchasing. Information is supplied by seller and other third parties and has not been verified. 2026 Wisconsin Real Estate Exchange All rights reserved.