2491 Boulder DRIVE, Slinger, WI 53086

Local realty services provided by:ERA MyPro Realty
Listed by: erin russell
Office: tim o'brien homes
MLS#:1945531
Source:Metro MLS
2491 Boulder DRIVE,Slinger, WI 53086
$589,900
  • 4 Beds
  • 3 Baths
  • 2,333 sq. ft.
  • Single family
  • Pending

Price summary

  • Price:$589,900
  • Price per sq. ft.:$252.85

About this home

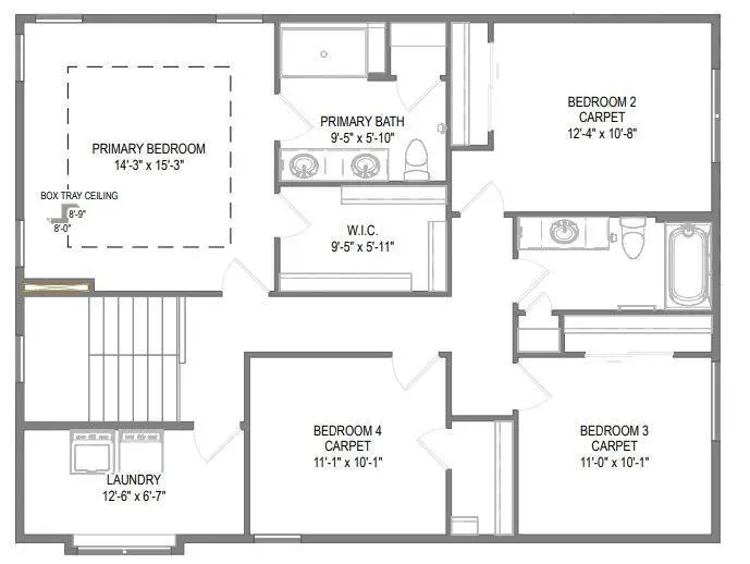
Start the new year in a new construction home in the village of Slinger! Driveway & seeded yard included! The Lily is a thoughtfully designed 2-story floor plan that combines functionality and comfort for modern living. Kitchen features soft close cabinets, quartz countertops, exterior vented range hood & island overhang for seating. Sunroom off kitchen/dinette features a cathedral ceiling & lets in tons of natural light. Great room is complete with an electric fireplace with cultured stone. Flex room off front foyer makes a great office or playroom. 2nd floor features primary suite, 3 secondary bedrooms, hall bathroom & laundry room. Primary suite has box tray ceiling detail, double sinks, tiled shower & WIC. Lower Level has egress window, full bath rough-in & space for future finishing.

Contact an agent

contact an agent

Yes, I would like more information. Please use and/or share my information with an ERA®  affiliated agent to contact me about my real estate needs. By clicking Send message, I request to be contacted by phone or text message and consent to being contacted by automated means. I understand that my consent to receive calls or texts is not a condition of purchasing any property, goods, or services. Alternatively, I understand that I can access real estate services by email or I can contact the agent myself.

If an ERA®  affiliated agent is not available in the area where I need assistance, I agree to be contacted by a real estate agent affiliated with another brand owned or licensed by Anywhere Real Estate (BHGRE® , CENTURY 21® , Coldwell Banker® , Corcoran® , Sotheby's International Realty® ).
 I acknowledge that I have read and agree to theTerms of useandPrivacy notice

Home facts

  • Year built:2025
  • Listing ID #:1945531
  • Added:148 day(s) ago
  • Updated:March 05, 2026 at 08:42 AM

Rooms and interior

  • Bedrooms:4
  • Total bathrooms:3
  • Full bathrooms:2
  • Bathrooms Description:Ceramic Tile, Master Bedroom Bath, Shower Over Tub, Stubbed For Bathroom on Lower, Tub Only
  • Kitchen Description:Dishwasher, Disposal, Microwave, On Main Level
  • Bedroom Description:Master Bedroom On Upper Level, Walk-In Closet(s)
  • Basement Description:Full, Radon Mitigation System, Sump Pump
  • Living area:2,333 sq. ft.

Heating and cooling

  • Cooling:Central Air, Forced Air, Whole House Fan
  • Heating:Forced Air, Natural Gas

Structure and exterior

  • Year built:2025
  • Building area:2,333 sq. ft.
  • Lot area:0.32 Acres
  • Architectural Style:Farmhouse/National Folk
  • Construction Materials:Aluminum Trim, Brick/Stone, Fiber Cement, Stone
  • Foundation Description:Poured Concrete
  • Levels:2 Story

Schools

  • High school:Slinger
  • Middle school:Slinger

Utilities

  • Water:Municipal Water
  • Sewer:Municipal Sewer

Finances and disclosures

  • Price:$589,900
  • Price per sq. ft.:$252.85

Features and amenities

  • Appliances:Dishwasher, Disposal, Microwave
  • Amenities:Cable/Satellite Available, Cathedral/Vaulted Ceiling, High Speed Internet, Pantry
The information being provided by Wisconsin Real Estate Exchange is for the consumer’s personal, non-commercial use and may not be used for any purpose other than to identify prospective properties consumers may be interested in purchasing. Information is supplied by seller and other third parties and has not been verified. 2026 Wisconsin Real Estate Exchange All rights reserved.