30 Oniatara Lane, Cherokee Village, AR 72529
Local realty services provided by:ERA TEAM Real Estate
30 Oniatara Lane,Cherokee Village, AR 72529
$360,000
- 3 Beds
- 3 Baths
- 2,681 sq. ft.
- Single family
- Active
Listed by: crystal bliss, dick sackett
Office: ozark gateway realty ogw llc.
MLS#:25049191
Source:AR_CARMLS
Price summary
- Price:$360,000
- Price per sq. ft.:$134.28
About this home
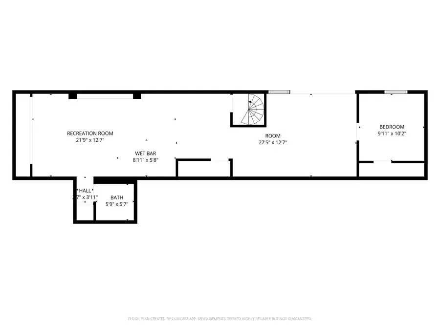
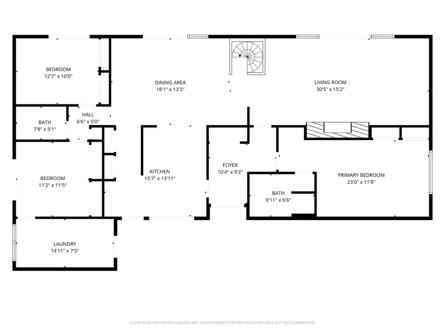
This charming 3-bedroom, 2.5-bath home sits on Lake Omaha in Cherokee Village, just minutes from the Omaha Center, where you can enjoy indoor games, a workout room, or miniature golf. For golf enthusiasts, there are also two 18-hole courses nearby. This home sets on a beautiful lot, gently sloping to the lake. Lots of room for additional landscaping or a garden. The home features a new architectural shingle roof in 2025 and an attached 520 sq ft two-car carport with plenty of storage. The kitchen is equipped with a new side-by-side refrigerator, dishwasher, electric stovetop, and two built-in ovens. Enjoy lake views from every room! The living room boasts a large brick wood-burning fireplace vented to the bedroom behind it, plus there’s an attic fan for added comfort. Storage is abundant with built-in cabinets and shelves. A spiral staircase leads to a spacious basement (672 sqft) with a wet bar, half bath, and enough room for a pool table, extra beds, or another living space. Patio doors open to the backyard and covered boat dock. A true gem waiting to be discovered! Owner Financing also Available....
Contact an agent
Home facts
- Year built:1993
- Listing ID #:25049191
- Added:150 day(s) ago
- Updated:May 16, 2026 at 02:24 PM
Rooms and interior
- Bedrooms:3
- Total bathrooms:3
- Full bathrooms:2
- Half bathrooms:1
- Flooring:Carpet, Vinyl
- Dining Description:Separate Dining Room
- Kitchen Description:Built-In Stove, Double Oven, Refrigerator-Stays
- Bedroom Description:3 Bedrooms Same Level
- Basement Description:Basement, Finished, Inside Access, Outside Access/Walk-Out
- Living area:2,681 sq. ft.
Heating and cooling
- Cooling:Attic Fan, Central Cool-Electric
- Heating:Central Heat-Electric, Heat Pump
Structure and exterior
- Roof:Architectural Shingle
- Year built:1993
- Building area:2,681 sq. ft.
- Lot area:0.21 Acres
- Lot Features:Cul-de-sac, In Subdivision, River/Lake Area, Sloped
- Architectural Style:Traditional
- Construction Materials:Rock & Frame
- Exterior Features:Boat Dock, Deck, Patio
- Foundation Description:Slab
- Levels:1 Story
Schools
- High school:Highland
- Middle school:Highland
- Elementary school:Cherokee
Utilities
- Water:Water Heater-Electric, Water-Public
- Sewer:Septic
Finances and disclosures
- Price:$360,000
- Price per sq. ft.:$134.28
- Tax amount:$1,364 (2024)
Features and amenities
- Appliances:Built-In Stove
- Laundry features:Dryer Connection-Electric, Dryer-Stays, Washer Connection, Washer-Stays
- Amenities:Fitness/Bike Trail, Golf Course, Marina, Paneling, Party Room, Picnic Area, Playground, Sheet Rock, Sheet Rock Ceiling, Tennis Court(s), Walk-in Shower, Wet Bar
- Pool features:Swimming Pool(s)
Parking
- Parking description:Two Car
New listings near 30 Oniatara Lane
- New
$487,500Active4 beds 3 baths2,901 sq. ft.176 E Lakeshore Drive, Cherokee Village, AR 72529
MLS# 26019652Listed by: CENTURY 21 PORTFOLIO - Open Sun, 2 to 4pmNew
$125,000Active2 beds 2 baths1,176 sq. ft.6 S Hileah Trce, Cherokee Village, AR 72529
MLS# 26019597Listed by: COMPASS ROSE REALTY - New
$749,000Active7 beds 4 baths5,320 sq. ft.2 Caxambas Dr, Cherokee Village, AR 72529
MLS# 26019541Listed by: FERGUSON REALTY GROUP - New
$42,500Active0.7 Acres42 Enid Drive, Cherokee Village, AR 72529
MLS# 26019161Listed by: KING-RHODES & ASSOCIATES, INC. - New
$6,350Active0.3 AcresTBD Spokane Drive, Cherokee Village, AR 72529
MLS# 26019340Listed by: KING-RHODES & ASSOCIATES, INC. - New
$1,200Active0.25 AcresLot 6 Matagamon Drive, Cherokee Village, AR 72529
MLS# 25037702Listed by: EXP REALTY - New
$339,000Active3 beds 2 baths1,616 sq. ft.14 W Lake Estates Circle, Cherokee Village, AR 72529
MLS# 26019244Listed by: OZARK GATEWAY REALTY OGW LLC - New
$42,000Active3 beds 2 baths1,360 sq. ft.8 Warpath Drive, Cherokee Village, AR 72529
MLS# 26019111Listed by: KING-RHODES & ASSOCIATES, INC. - New
$135,000Active3 beds 2 baths1,044 sq. ft.13 Iowa Drive, Cherokee Village, AR 72529
MLS# 26019147Listed by: KING-RHODES & ASSOCIATES, INC. - New
$59,000Active2 beds 2 baths1,088 sq. ft.45 Monongahela Drive, Cherokee Village, AR 72529
MLS# 26018914Listed by: BAXTER REAL ESTATE COMPANY