1040 S Cherokee Drive, Show Low, AZ 85901
Local realty services provided by:ERA Young Realty & Investment
Listed by: crystal white
Office: realty executives az territory - show low
MLS#:260517
Source:AZ_WMAR
Price summary
- Price:$524,900
- Price per sq. ft.:$230.22
- Monthly HOA dues:$130
About this home
Don't miss this rare opportunity-fresh on the market and COMPLETELY FURNISHED! This fully remodeled home showcases true pride of private ownership both inside and out. Nestled on a desirable corner lot spanning two spacious parcels totaling apx 0.39 acres. The property is surrounded by towering pine trees, offering unmatched serenity, privacy, and a peaceful forest retreat.
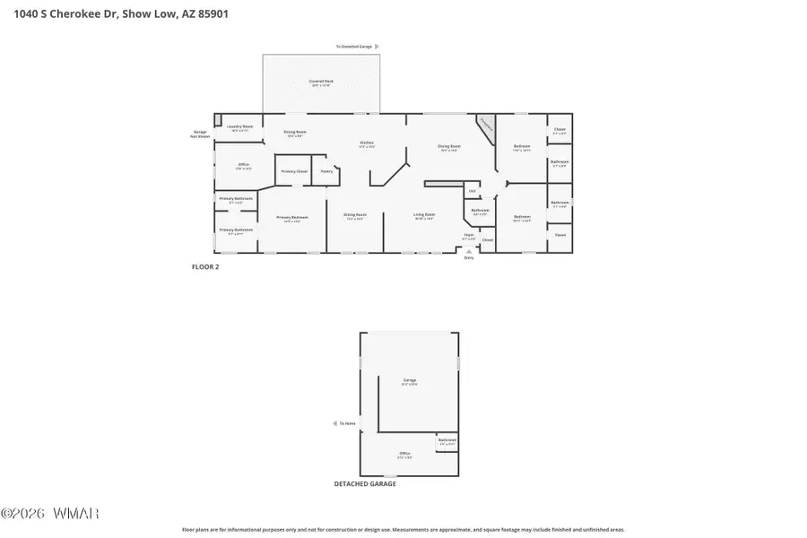
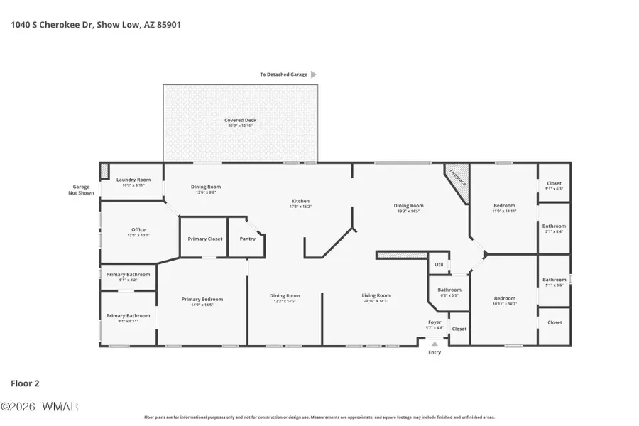
Enjoy approximately 1,000 sq. ft. of expansive decking, perfect for taking in the beautiful natural landscape and extending your living and entertaining space outdoors. Inside, the thoughtfully designed split floor plan features 2,280 sq. ft. of luxurious living space, including a generous primary suite and two guest bedrooms--each with its own en suite bath and walk-in closet. The primary bath offers both a separat soaking tub and walk-in shower, while an additional half bath is conveniently located off the family room.
The home's living areas are designed for both comfort and functionality, featuring a cozy family room with a gas fireplace, formal dining room, breakfast nook, and dedicated office space. The gourmet kitchen is a chef's dream, complete with ample counter space, abundant storage, a walk-in pantry, center island, and gas stove. Additional highlights include a laundry room with built-in utility sink and a tankless water heater.
Car enthusiasts and hobbyists will appreciate the oversized two-car garage, outfitted with rollaway storage, a built-in workbench, and a fully enclosed 200 sq. ft. workshop/office. This bonus space includes custom wood cabinetry, counter space, a half bath with utility sink, and mini-split heating and cooling for year-round comfort--square footage not included in the main home.
The backyard also features an oversized storage shed, ideal for additional storage, an art studio, or flex space to suit your needs.
Located in the highly sought-after 55+ gated community of Hacienda Pines in the beautiful White Mountains of Arizona at approximately 6,200 feet elevation, this home offers mild summers, four distinct seasons, and a lifestyle of comfort, beauty, and tranquility.
Situated on a corner lot with a quiet cul-de-sac street behind and offered fully furnished, this exceptional property is truly move-in ready. Homes like this don't come along often--schedule your showing today before it's gone!...
Contact an agent
Home facts
- Year built:2001
- Listing ID #:260517
- Added:1 day(s) ago
- Updated:April 10, 2026 at 04:46 PM
Rooms and interior
- Bedrooms:3
- Total bathrooms:4
- Full bathrooms:4
- Flooring:Laminate
- Bedroom Description:Split Bedroom
- Living area:2,280 sq. ft.
Heating and cooling
- Cooling:Central Air
- Heating:Forced Air, Heating, Natural Gas
- Central air:Yes
Structure and exterior
- Year built:2001
- Building area:2,280 sq. ft.
- Lot area:0.39 Acres
- Lot Features:Landscaped, Tall Pines On Lot, Wooded
- Exterior Features:Rain Gutters
Utilities
- Water:Metered Water Provider, Water Connected
- Sewer:Sewer Available
Finances and disclosures
- Price:$524,900
- Price per sq. ft.:$230.22
- Tax amount:$1,750
Features and amenities
- Amenities:Pantry, Shower, Vaulted Ceiling(s)
Parking
- Parking description:Garage Door Opener
- Garage:Yes
New listings near 1040 S Cherokee Drive
- New
$289,900Active3 beds 2 baths1,232 sq. ft.945 S 8th Drive, Show Low, AZ 85901
MLS# 260520Listed by: GRADY HILLIS REALTY - New
$439,900Active2 beds 2 baths1,160 sq. ft.2471 W Lodgepole Lane, Show Low, AZ 85901
MLS# 7011873Listed by: HOMESMART - New
$189,000Active3 beds 1 baths220 sq. ft.2500 W Savage --, Show Low, AZ 85901
MLS# 7011721Listed by: EXP REALTY - New
$530,000Active3 beds 2 baths1,983 sq. ft.261 N Fox Run, Show Low, AZ 85901
MLS# 7011529Listed by: MOUNTAIN RETREAT REALTY EXPERT - New
$229,900Active1 beds 1 baths374 sq. ft.2340 E Elizabeth Avenue, Show Low, AZ 85901
MLS# 260510Listed by: MOUNTAIN RETREAT REALTY EXPERTS, LLC - LAKESIDE - New
$650,000Active3 beds 2 baths1,984 sq. ft.1139 Sapphire Lane, Show Low, AZ 85901
MLS# 260512Listed by: KELLER WILLIAMS ARIZONA REALTY - PINETOP - New
$746,900Active3 beds 3 baths2,060 sq. ft.1260 S Lakeside Trail, Show Low, AZ 85901
MLS# 7011327Listed by: WEST USA REALTY - New
$459,900Active2 beds 2 baths1,160 sq. ft.3170 W Lodgepole Lane, Show Low, AZ 85901
MLS# 7011347Listed by: LONG REALTY COVEY LUXURY PROPERTIES - New
$147,900Active0.15 Acres3810 S Mule Skinner Loop, Show Low, AZ 85901
MLS# 260497Listed by: REALTY EXECUTIVES AZ TERRITORY - SHOW LOW