35295 Camino Capistrano, Dana Point, CA 92624

Local realty services provided by:ERA North Orange County Real Estate
35295 Camino Capistrano,Dana Point, CA 92624
$2,680,000
  • 0 Acres
  • Lots / Land
  • Active
Listed by: eric lin, jiali li
Office: jc pacific corp
MLS#:OC26038167
Source:San Diego MLS via CRMLS

Price summary

  • Price:$2,680,000

About this home

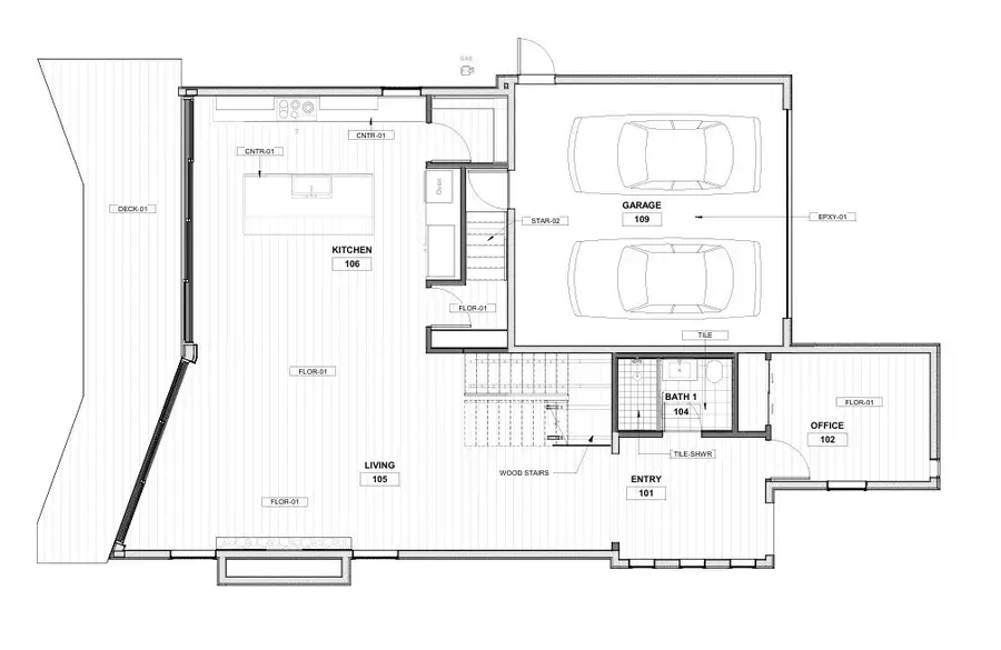
~~~READY TO BUILD!!! GRADING PERMIT IN HAND~~~ PANORAMICALLY PERCHED ABOVE THE PACIFIC! Ocean and sunset views of Catalina and San Clemente Islands and directly on the bluff. Build your dream home and live like oceanfront. The plan 3557 sqft two story house includes a 2-car garage, 5 bedrooms, 5 bathrooms, an upper and lower deck. This plan features 11' ceilings in the entry, living, and dining room and skylights above the open staircase leading to a loft on the second story. Here's a rare blufftop opportunity with unobstructed ocean-view frontage a few hundred feet from Capo Beach. Located near every convenience, new Lantern District, and soon-to-be-new Dana Point Harbor.

Contact an agent

contact an agent

Yes, I would like more information. Please use and/or share my information with an ERA®  affiliated agent to contact me about my real estate needs. By clicking Send message, I request to be contacted by phone or text message and consent to being contacted by automated means. I understand that my consent to receive calls or texts is not a condition of purchasing any property, goods, or services. Alternatively, I understand that I can access real estate services by email or I can contact the agent myself.

If an ERA®  affiliated agent is not available in the area where I need assistance, I agree to be contacted by a real estate agent affiliated with another brand owned or licensed by Anywhere Real Estate (BHGRE® , CENTURY 21® , Coldwell Banker® , Corcoran® , Sotheby's International Realty® ).
 I acknowledge that I have read and agree to theTerms of useandPrivacy notice

Home facts

  • Listing ID #:OC26038167
  • Added:48 day(s) ago
  • Updated:April 10, 2026 at 02:04 PM

Finances and disclosures

  • Price:$2,680,000
MLS LogoThis information is deemed reliable but not guaranteed. You should rely on this information only to decide whether or not to further investigate a particular property. BEFORE MAKING ANY OTHER DECISION, YOU SHOULD PERSONALLY INVESTIGATE THE FACTS (e.g. square footage and lot size) with the assistance of an appropriate professional. You may use this information only to identify properties you may be interested in investigating further. All uses except for personal, non-commercial use in accordance with the foregoing purpose are prohibited. Redistribution or copying of this information, any photographs or video tours is strictly prohibited. This information is derived from the Internet Data Exchange (IDX) service provided by San Diego MLS®. Displayed property listings may be held by a brokerage firm other than the broker and/or agent responsible for this display. The information and any photographs and video tours and the compilation from which they are derived is protected by copyright. Compilation © 2020 San Diego MLS®, Inc.