1967 S Vivani Street, Mountain House, CA 95391
Local realty services provided by:ERA Carlile Realty Group
1967 S Vivani Street,Mountain House, CA 95391
$988,990
- 5 Beds
- 4 Baths
- 2,694 sq. ft.
- Single family
- Active
Listed by: lisa celestino
Office: kb home sales-northern california inc
MLS#:226008377
Source:MFMLS
Price summary
- Price:$988,990
- Price per sq. ft.:$367.11
About this home
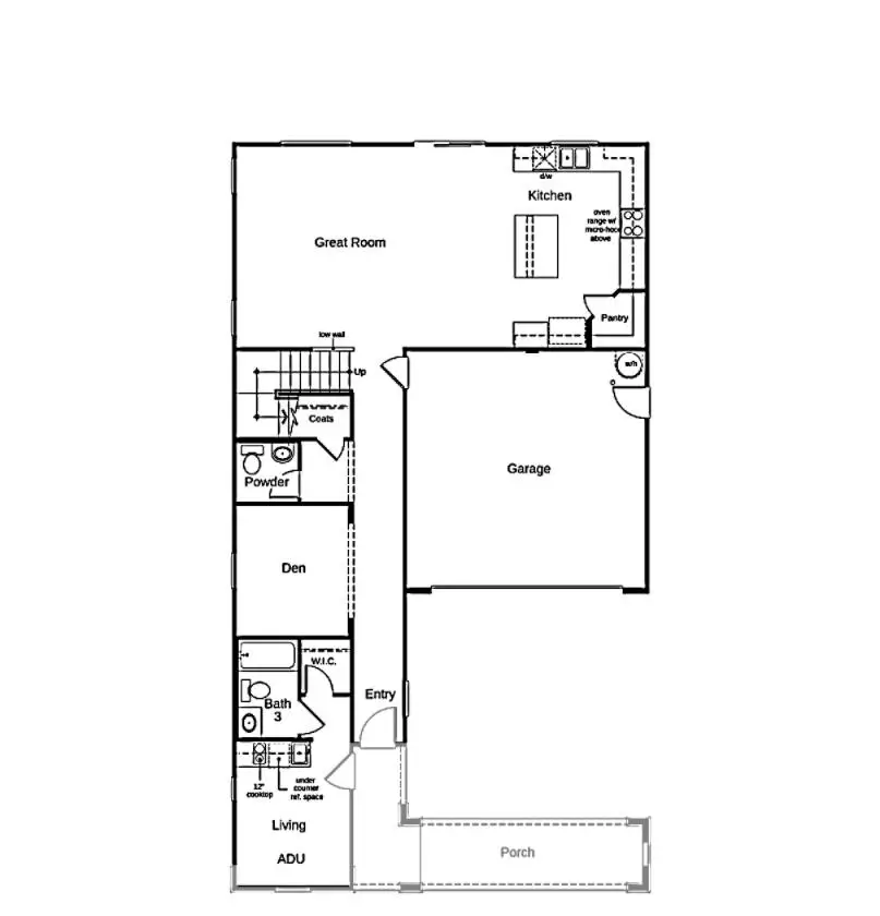
Build-to-Order / Under Construction, this European cottage-style two-story home features a well-designed layout with an attached ADU, offering flexible space ideal for extended family, guests, or a private office. The main residence will include 9-ft. ceilings, a den, powder room, and an open, spacious great room. The kitchen is designed with a central island for added prep space and casual dining, along with a walk-in pantry. Upstairs, a generous loft provides additional living space, while the primary suite will include a large walk-in closet and a linen closet for added storage. Energy-efficient features include WaterSense® fixtures, low-E windows, a smart thermostat, and a stainless steel Whirlpool® appliance package. While construction is underway, work with our interior designer to personalize your home by selecting cabinets, countertops, flooring, bath options, and more. Located in the brand-new Altamira community within the College Park master-planned neighborhood, future amenities are planned to include an on-site elementary school and neighborhood parks. The community is adjacent to a future public park and offers convenient access to I-580, with nearby shopping, dining, and outdoor recreation at Bethany Reservoir, Altamont Park, and Legacy Fields Sports Complex....
Contact an agent
Home facts
- Listing ID #:226008377
- Added:99 day(s) ago
- Updated:May 03, 2026 at 02:41 PM
Rooms and interior
- Bedrooms:5
- Total bathrooms:4
- Full bathrooms:3
- Living area:2,694 sq. ft.
Heating and cooling
- Cooling:Central
- Heating:Central
Structure and exterior
- Roof:Tile
- Building area:2,694 sq. ft.
- Lot area:0.09 Acres
- Construction Materials:Stucco, Wood
- Foundation Description:Concrete, Slab
- Levels:2 Story
Utilities
- Sewer:Public Sewer
Finances and disclosures
- Price:$988,990
- Price per sq. ft.:$367.11
Features and amenities
- Laundry features:Inside Laundry Room
Parking
- Garage spaces:2
New listings near 1967 S Vivani Street
- New
$779,900Active3 beds 3 baths2,037 sq. ft.113 S Pacifico Street, Mountain House, CA 95391
MLS# 226054848Listed by: COMPASS - Open Sun, 1 to 4pmNew
$999,000Active4 beds 3 baths2,794 sq. ft.1344 S Cow Court, Tracy, CA 95391
MLS# ML82045388Listed by: MERCHIA REALTY - Open Sun, 2 to 5pmNew
$988,500Active4 beds 3 baths2,929 sq. ft.456 N Sierra Madre Street, Mountain House, CA 95391
MLS# 226054273Listed by: REFINED REAL ESTATE - Open Sun, 2 to 4pmNew
$839,000Active4 beds 3 baths2,324 sq. ft.80 E Cortona Court, Tracy, CA 95391
MLS# 226053235Listed by: TRUENORTH REALTY - Open Sun, 2 to 5pmNew
$885,000Active4 beds 3 baths2,567 sq. ft.1120 S Shields Avenue, Mountain House, CA 95391
MLS# 226054151Listed by: GO2REALTY PROS, INC. - New
$1,700,000Active4 beds 2 baths2,543 sq. ft.19814 W Grant Line Road, Tracy, CA 95391
MLS# 226053188Listed by: EXIT REALTY CONSULTANTS - Open Thu, 10:30am to 12:30pmNew
$885,000Active4 beds 3 baths2,020 sq. ft.49 E Funderburg Blvd., Mountain House, CA 95391
MLS# 41132592Listed by: BAY BROKERS - New
$895,900Active5 beds 4 baths2,486 sq. ft.510 Albertina Ave, MOUNTAIN HOUSE, CA 95391
MLS# 41132334Listed by: REDFIN - Open Sun, 12:30 to 3:30pmNew
$750,000Active3 beds 3 baths1,859 sq. ft.464 E Yarrow Pl, Mountain House, CA 95391
MLS# 41132214Listed by: A.C. GOLDT REALTY - Open Sun, 1 to 4pmNew
$1,299,888Active5 beds 4 baths3,975 sq. ft.763 Adam Street, Mountain House, CA 95391
MLS# ML82044005Listed by: KINETIC REAL ESTATE