518 Dreamers Cir, Salida, CO 81201
Local realty services provided by:ERA Shields Real Estate
518 Dreamers Cir,Salida, CO 81201
$790,000
- 4 Beds
- 4 Baths
- 2,429 sq. ft.
- Townhouse
- Active
Listed by: kim wilcoxsonKim@yourrealestatehub.com,719-221-4997
Office: homesmart preferred realty
MLS#:6762925
Source:ML
Price summary
- Price:$790,000
- Price per sq. ft.:$325.24
- Monthly HOA dues:$25
About this home
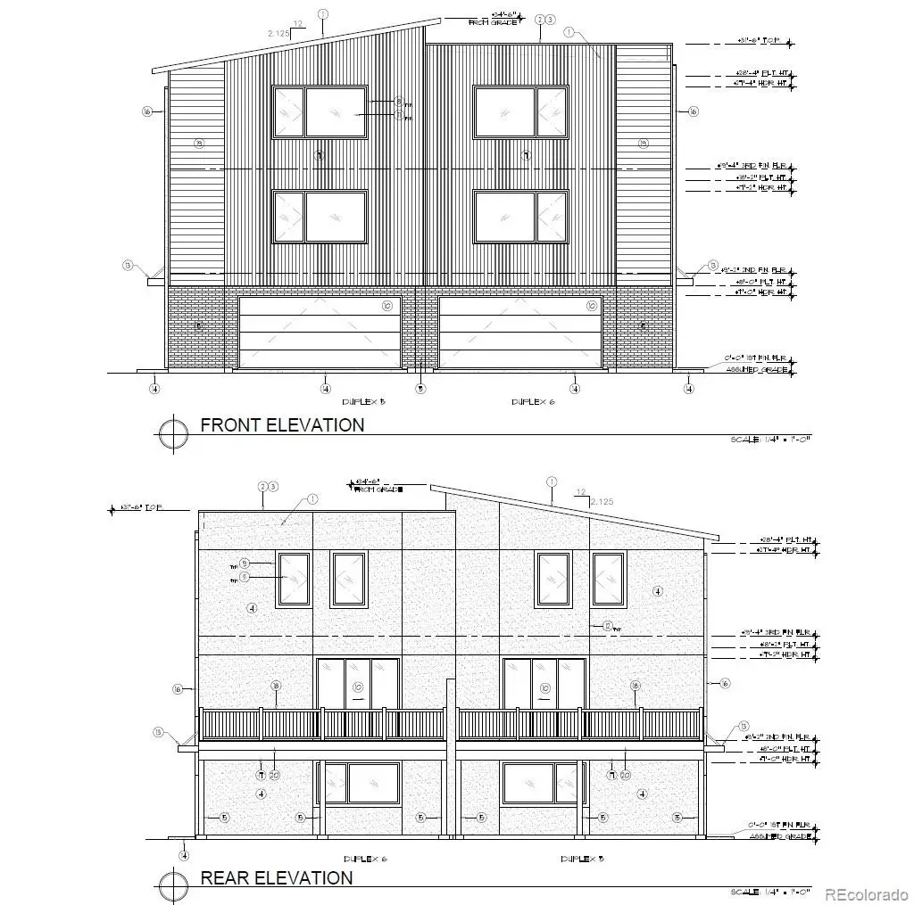
New construction townhome within walking distance to downtown Salida, trails, restaurants, and everyday essentials. Located on a cul-de-sac, this home offers modern design, flexible living space, and an easy connection to everything that makes Salida such a desirable mountain town.
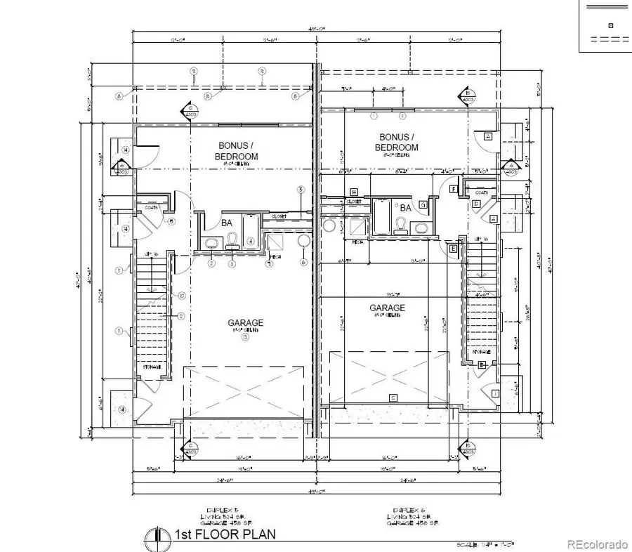
The main living area is located on the second level and is designed to capture abundant natural light. This level features an open kitchen, dining, and living space with wide plank flooring and contemporary finishes that create a bright, welcoming atmosphere. The kitchen includes quartz countertops, stainless steel appliances, generous cabinetry, and a large central island. A private deck off the living room extends the living space outdoors, perfect for enjoying fresh air throughout the day.
The home offers 4 bedrooms and 3.5 bathrooms, with ensuite bathrooms, providing comfort and privacy for residents and guests. The lower-level bedroom functions as a lock-off space and may offer potential for conversion to an accessory dwelling unit. Kitchen installation and appliances would be an additional cost and are not included in the sales price. Conversion is subject to City of Salida approval and applicable ADU fees.
Additional features include a two car attached garage with extra storage space, modern lighting, ceiling fans, and quality new construction finishes throughout. The front yard is xeriscaped with a drip irrigation system, and the backyard may be fenced for added privacy.
Enjoy a lifestyle where you can walk or bike into downtown Salida, explore nearby trails, spend time along the river, or take part in the town’s vibrant arts, music, and outdoor culture. This is low maintenance living with flexibility, designed for those who want to live close to it all while still having room to make the space their own....
Contact an agent
Home facts
- Year built:2026
- Listing ID #:6762925
Rooms and interior
- Bedrooms:4
- Total bathrooms:4
- Full bathrooms:3
- Half bathrooms:1
- Flooring:Tile, Vinyl
- Bathrooms Description:Five Piece Bath
- Kitchen Description:Dishwasher, Kitchen Island, Microwave, Oven, Range, Refrigerator
- Living area:2,429 sq. ft.
Heating and cooling
- Cooling:Central Air
- Heating:Forced Air
- Central air:Yes
Structure and exterior
- Roof:Metal
- Year built:2026
- Building area:2,429 sq. ft.
- Lot area:0.06 Acres
- Lot Features:Cul-De-Sac, Master Planned
- Architectural Style:Urban Contemporary
- Construction Materials:Frame, Stucco
- Exterior Features:Balcony, Covered, Deck, Patio
- Foundation Description:Concrete Perimeter
- Levels:3 or More Stories
Schools
- High school:Salida
- Middle school:Salida
- Elementary school:Longfellow
Utilities
- Water:Public
- Sewer:Public Sewer
Finances and disclosures
- Price:$790,000
- Price per sq. ft.:$325.24
- Tax amount:$675 (2025)
Features and amenities
- Laundry features:Laundry Closet
- Amenities:Smoke Detector(s)
Parking
- Total parking spaces:2
- Parking description:Concrete Driveway
- Garage:Yes
- Garage spaces:2
New listings near 518 Dreamers Cir
- New
$635,000Active2 beds 2 baths954 sq. ft.116 Old Stage Road #D, Salida, CO 81201
MLS# 4368150Listed by: FULL CIRCLE REAL ESTATE GROUP - New
$1,220,000Active4 beds 3 baths2,742 sq. ft.8504 Chaparral Way, Salida, CO 81201
MLS# 6203018Listed by: HOMESMART PREFERRED REALTY - New
$659,000Active3 beds 3 baths1,748 sq. ft.28 Trailside Court #A, Salida, CO 81201
MLS# 9195832Listed by: PINON REAL ESTATE GROUP LLC - New
$760,000Active2 beds 2 baths1,244 sq. ft.2 Trailside Circle, Salida, CO 81201
MLS# 1604210Listed by: PINON REAL ESTATE GROUP LLC
$149,000Pending0.12 Acres210 Tenderfoot Road, Salida, CO 81201
MLS# 2797067Listed by: HARDER REAL ESTATE AND DEVELOPMENT, LLC- New
$849,000Active3 beds 2 baths1,979 sq. ft.541 W 7th Street, Salida, CO 81201
MLS# 2015928Listed by: CENTURY 21 COMMUNITY FIRST - New
$699,000Active3 beds 2 baths1,498 sq. ft.515 Palmer Street, Salida, CO 81201
MLS# 8084699Listed by: PINON REAL ESTATE GROUP LLC - New
$89,000Active2 beds 2 baths784 sq. ft.910 J Street #C7, Salida, CO 81201
MLS# 6259721Listed by: CENTURY 21 COMMUNITY FIRST - New
$578,000Active3 beds 3 baths1,306 sq. ft.601 Scott Street #A, Salida, CO 81201
MLS# 4486784Listed by: PINON REAL ESTATE GROUP LLC - New
$839,000Active3 beds 2 baths3,094 sq. ft.8965 County Road 126, Salida, CO 81201
MLS# 6425360Listed by: CENTURY 21 COMMUNITY FIRST