7570 Sea Oak Court, Parrish, FL 34219

Local realty services provided by:ERA Advantage Realty, Inc.
7570 Sea Oak Court,Parrish, FL 34219
$375,937
  • 3 Beds
  • 3 Baths
  • 2,043 sq. ft.
  • Townhouse
  • Active
Upcoming open houses
  • Sat, Apr 11
    01:00 pm - 04:00 pm
  • Sun, Apr 12
    01:00 pm - 04:00 pm
Listed by: nancy pruitt, pa
Office: olympus executive realty inc
MLS#:G5108183
Source:MFRMLS

Price summary

  • Price:$375,937
  • Price per sq. ft.:$144.76
  • Monthly HOA dues:$250

About this home

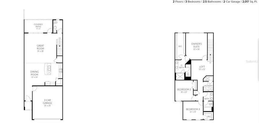
Sample Images of the Coral Townhome have an open-concept living. Design Included!!! The Standard features include 9'4 Ceilings, 8' Entry Door, Ceramic Tile flooring in the Kitchen, Baths, Foyer, Cafe, and Laundry. In the Kitchen, you also get Quartz countertops, Whirlpool Stainless Steel Dishwasher, Range, and Microwave vented to the exterior, 42" Upper Cabinets, and under Sink Garbage Disposal. More features are the R-38 Energy Saving Attic Insulation, Wifi ready Garage Door Opener, and 50 Gallon Hot Water Heater, Smoke, and Carbon Monoxide Detectors. Stop in to get the full list, too many to mention. The community Seaire has a 4.5-acre Lagoon, which is the heart of this community, offering beach areas, private cabanas, water obstacle courses, a Water slide, Covered Shady areas to relax with the family, and a Full-service Bar to get your favorite beverage. You have quick access to I-75 and 275 for trips to the area beaches, attractions, and restaurants.

Contact an agent

contact an agent

Yes, I would like more information. Please use and/or share my information with an ERA®  affiliated agent to contact me about my real estate needs. By clicking Send message, I request to be contacted by phone or text message and consent to being contacted by automated means. I understand that my consent to receive calls or texts is not a condition of purchasing any property, goods, or services. Alternatively, I understand that I can access real estate services by email or I can contact the agent myself.

If an ERA®  affiliated agent is not available in the area where I need assistance, I agree to be contacted by a real estate agent affiliated with another brand owned or licensed by Anywhere Real Estate (BHGRE® , CENTURY 21® , Coldwell Banker® , Corcoran® , Sotheby's International Realty® ).
 I acknowledge that I have read and agree to theTerms of useandPrivacy notice

Home facts

  • Year built:2026
  • Listing ID #:G5108183
  • Added:54 day(s) ago
  • Updated:April 09, 2026 at 12:34 PM

Rooms and interior

  • Bedrooms:3
  • Total bathrooms:3
  • Full bathrooms:2
  • Half bathrooms:1
  • Flooring:Carpet, Tile
  • Kitchen Description:Dishwasher, Disposal, Microwave, Range, Stone Counters
  • Bedroom Description:Primary Bedroom Upstairs, Split Bedroom
  • Living area:2,043 sq. ft.

Heating and cooling

  • Cooling:Central Air
  • Heating:Central, Heat Pump
  • Central air:Yes

Structure and exterior

  • Roof:Shingle
  • Year built:2026
  • Building area:2,043 sq. ft.
  • Lot area:0.06 Acres
  • Lot Features:Cleared, Level, Paved, Sidewalk
  • Architectural Style:Traditional
  • Construction Materials:Frame
  • Exterior Features:Covered Porch/Patio, Patio, Sidewalk
  • Foundation Description:Slab
  • Levels:2 Story

Schools

  • High school:Palmetto High
  • Middle school:Buffalo Creek Middle
  • Elementary school:Barbara A. Harvey Elementary

Utilities

  • Water:Public
  • Sewer:Public, Public Sewer

Finances and disclosures

  • Price:$375,937
  • Price per sq. ft.:$144.76

Features and amenities

  • Appliances:Dishwasher, Disposal, Microwave, Range
  • Laundry features:Inside, Laundry Closet, Laundry Upper Level
  • Amenities:BB/HS Internet Available, Cable Available, Electricity Available, Fence Restrictions, Natural Gas Available, Open Floorplan, Playground, Primary Bedroom Upstairs, Split Bedroom, Stone Counters, Thermostat
  • Pool features:In Ground, Public Pool

Parking

  • Parking description:Attached Garage, Driveway, Garage Door Opener
  • Garage:Yes
  • Garage spaces:2
MLS LogoThe information being provided by Stellar Mls is for the consumer's personal, non-commercial use and may not be used for any purpose other than to identify prospective properties consumer may be interested in purchasing. Any information relating to real estate for sale referenced on this web site comes from the Internet Data Exchange (IDX) program of the Stellar Mls. ERA Advantage Realty, Inc. is not a Multiple Listing Service (MLS), nor does it offer MLS access. This website is a service of ERA Advantage Realty, Inc., a broker participant of Stellar Mls. This web site may reference real estate listing(s) held by a brokerage firm other than the broker and/or agent who owns this web site. The accuracy of all information, regardless of source, including but not limited to open house information, square footages and lot sizes, is deemed reliable but not guaranteed and should be personally verified through personal inspection by and/or with the appropriate professionals. The data contained herein is copyrighted by Stellar Mls and is protected by all applicable copyright laws. Any unauthorized dissemination of this information is in violation of copyright laws and is strictly prohibited. Properties in listings may have been sold or may no longer be available. Copyright 2026 Stellar Mls. All rights reserved.