344 Chateau Ln, Port Saint Joe, FL 32456
Local realty services provided by:ERA Neubauer Real Estate, Inc.
Listed by: mark miles
Office: dr horton realty of emerald coast, llc.
MLS#:324973
Source:FL_RAFGC
Price summary
- Price:$264,900
- Price per sq. ft.:$143.19
- Monthly HOA dues:$197.33
About this home
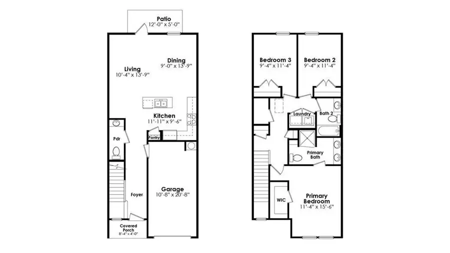
Introducing Chateau Nemours, the newest and most talked about development in Port St Joe. The centerpiece of this blooming community is the Chateau building, a historic building that was relocated from another part of town and is being remodeled into a unique restaurant that Port Saint Joe will be buzzing about. This is a 3 bedroom, 2.5-bathroom townhome. On the outside of these units, you will see quality Color-Plus Vinyl exteriors, complemented by prairie-style doors and 30-year dimensional shingles. Convenience meets security with steel garage doors equipped with openers, weatherproof outlets, hose bibs, and Kwikset deadbolts on all exterior doors. As you enter inside, you will feel right at home with beautiful EVP flooring at your feet, leading you to the open living room and kitchen or the spacious upstairs with cozy carpet on your feet. In the kitchen and bathroom, you will find gorgeous granite countertops, white cabinets with brushed nickel hardware, and stainless-steel appliances in the kitchen. Stay cool indoors with energy-efficient cooling and heating systems, Low-E insulated windows with screens, and water-saving elongated commodes. For added security, every home comes equipped with a Safe Haven Surveillance system, Skybell doorbell, Honeywell thermostat, and DEAKO Smart Switches. Rest assured with a one-year builder's warranty and a ten-year structural warranty. Our Chateau Nemours community features underground utilities making it less susceptible to damage from severe weather leading to fewer outages and more reliable service. Residents of Chateau Nemours can enjoy exclusive access to an amenity center complete with a pool and playground for all to enjoy. Whatever home you're looking for, you will find one at Chateau Nemours. Stop by the model home or schedule a tour online today!...
Contact an agent
Home facts
- Year built:2026
- Listing ID #:324973
- Added:58 day(s) ago
- Updated:February 10, 2026 at 04:34 PM
Rooms and interior
- Bedrooms:3
- Total bathrooms:3
- Full bathrooms:2
- Half bathrooms:1
- Flooring:Carpet, Engineered, Vinyl
- Bathrooms Description:Double Vanity
- Kitchen Description:Dishwasher, Disposal, Kitchen Island, Microwave, Pantry
- Living area:1,460 sq. ft.
Heating and cooling
- Central air:Yes
Structure and exterior
- Roof:Shingle
- Year built:2026
- Building area:1,460 sq. ft.
- Lot area:0.04 Acres
- Lot Features:Covenants/Restrictions, Curb and Gutters, Dead End, Easements, Recorded Subdivision, Sidewalks, Storm Sewer
- Architectural Style:2+ Story, Craftsman, Townhouse
- Construction Materials:Vinyl Siding
- Foundation Description:Slab
- Levels:2 Story
Utilities
- Water:Public, Water Connected
- Sewer:Public Sewer, Sewer Connected
Finances and disclosures
- Price:$264,900
- Price per sq. ft.:$143.19
Features and amenities
- Laundry features:Washer/Dryer Hookup
- Amenities:Carbon Monoxide Detector, Pantry, Smoke Detector, Washer/Dryer Hookup
Parking
- Total parking spaces:2
- Parking description:Driveway, Garage Attached
New listings near 344 Chateau Ln
- New
$300,000Active3 beds 1 baths1,200 sq. ft.1214 Long Avenue, Port St. Joe, FL 32456
MLS# 997756Listed by: CHEVON MARIE EATON - New
$450,000Active4 beds 3 baths2,454 sq. ft.2021 Marvin Ave, Port St. Joe, FL 32456
MLS# 327705Listed by: CAPE SAN BLAS REALTY, INC. - New
$600,000Active2 beds 2 baths1,000 sq. ft.215 S Neptune St, Port St. Joe, FL 32456
MLS# 327701Listed by: WAVES & WOODS REALTY, LLC - New
$449,000Active3 beds 2 baths1,410 sq. ft.2018 Garrison Ave, Port St. Joe, FL 32456
MLS# 327702Listed by: CAPE SAN BLAS REALTY, INC.
$120,000Active0.38 Acres309 Sea Haven Dr, Port St. Joe, FL 32456
MLS# 317241Listed by: BEACH PROPERTIES REAL ESTATE GROUP- New
$699,000Active3 beds 2 baths1,517 sq. ft.324 Long Ave, Port St. Joe, FL 32456
MLS# 327687Listed by: KELLER WILLIAMS SUCCESS REALTY - New
$619,000Active3 beds 2 baths2,001 sq. ft.110 Sleeping Dog Way, Port St Joe, FL 32456
MLS# 786579Listed by: BEMAJOR GULF COAST REALTY LLC - New
$4,099,000Active6 beds 7 baths4,875 sq. ft.7179 Windward Street, Port St Joe, FL 32456
MLS# 786554Listed by: BEMAJOR GULF COAST REALTY LLC - Open Sat, 11am to 2pmNew
$750,000Active3 beds 4 baths2,496 sq. ft.8106 Americus Ave, Port St. Joe, FL 32456
MLS# 327673Listed by: WAVES & WOODS REALTY, LLC - New
$535,000Active4 beds 3 baths2,021 sq. ft.769 Backwater Rd, Port St. Joe, FL 32456
MLS# 327672Listed by: SCENIC SOTHEBY'S INTERNATIONAL REALTY