565 Groover Street, Ball Ground, GA 30107
Local realty services provided by:ERA Towne Square Realty, Inc.
565 Groover Street,Ball Ground, GA 30107
$859,900
- 4 Beds
- 5 Baths
- 3,472 sq. ft.
- Townhouse
- Pending
Listed by: kristin sheehan
Office: ansley re|christie's int'l re
MLS#:10689704
Source:METROMLS
Price summary
- Price:$859,900
- Price per sq. ft.:$247.67
- Monthly HOA dues:$350
About this home
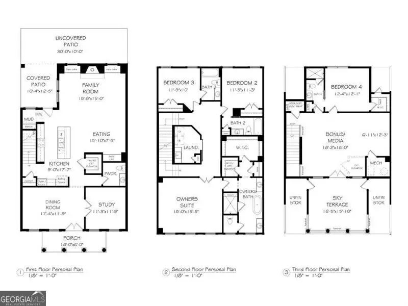
LOT #2!! **Ask about our Winter Incentive!!**. Stratford 4/4/1 plan elevator-capable floor plans and sky terrace with option for a fireplace while enjoying views of the North GA mountains! Lot 2, our Stratford plan, is an absolutely stunning build with a 3-car garage, by JW Collection, founded by John Wieland. The Heritage at Farmer's Crossing is an exclusive, walkable enclave of 16 luxury three-story townhomes designed to honor the historic character and natural beauty of the area. This exquisite JWC designer plan has a wonderful living space for all your entertaining needs, with an abundance of windows and natural light. As you enter the home, you will find soaring 10ft ceilings throughout the main level. You will be pleased to discover many upgraded features throughout, including quartz countertops, beautiful soft-close cabinetry that extends to the ceiling in the kitchen, a large kitchen island equipped with a double trash pullout, sink, and dishwasher. The kitchen also boasts built-in KitchenAid stainless steel appliances with tile to the ceiling behind your designer wood hood. Enjoy the wood shelving in your walk-in pantry. Designer hardwood flooring is on the entire main level and all stairs. Step into the bright and warm Great Room, which features a custom-trimmed, detailed fireplace with gas logs, built-in cabinetry, and a stained cedar mantle. Upstairs, the owner's suite is its own private retreat to relax at the end of a long day. The owner's bath is a spa experience with a free-standing soaking tub, large walk-in shower with a bench, shampoo niche, frameless door, and tile all the way to the ceiling. Attached to the spa bath you will find separate Owners closets with custom built-in shelving. Two additional secondary guest bedrooms include private baths with quartz countertops, designer tile to the ceiling in all showers/bath. As you approach the top floor, be ready to be amazed with the surrounding views of the North Georgia Mountains from your sky terrace. You can spend mornings watching the sunrise with a cup of coffee or evenings by the fireplace with a breathtaking sunset from your sky terrace. One of the bonus features of this home is a detached 3 CAR GARAGE with separate entrance and approximately 600 sq. ft of unfinished storage that can be converted to a game room, climate-controlled storage, or an office suite suited to your needs. Also, enjoy your evenings on the oversized covered rear patio. This home has it all! Just steps to vibrant Downtown Ball Ground with the perfect blend of luxury and small-town charm. Adjacent to Calvin Farmer Park, and walking distance to Ball Ground shops, dining, Botanical Garden, and sporting activities. Easy access to Cumming, Canton, Alpharetta, Woodstock, Jasper and the North Georgia Mountains, this location is unbeatable. Do not wait, as there are limited opportunities! Call us today for details or to schedule a tour. ***Please note the JW Collection Office is up at the corner of Groover Street before the new home construction! Photos are a representation of the property taken from Lot 5 at the Heritage at Farmer's Crossing!...
Contact an agent
Home facts
- Year built:2005
- Listing ID #:10689704
- Updated:May 14, 2026 at 10:26 AM
Rooms and interior
- Bedrooms:4
- Total bathrooms:5
- Full bathrooms:4
- Half bathrooms:1
- Flooring:Hardwood
- Dining Description:Separate Room
- Bathrooms Description:Separate Shower
- Kitchen Description:Dishwasher, Disposal
- Bedroom Description:Walk-In Closet(s)
- Living area:3,472 sq. ft.
Heating and cooling
- Cooling:Ceiling Fan(s), Central Air
- Heating:Forced Air, Zoned
- Central air:Yes
Structure and exterior
- Roof:Composition
- Year built:2005
- Building area:3,472 sq. ft.
- Lot Features:Level
- Architectural Style:Traditional
- Exterior Features:Balcony, Deck/Patio, Sprinkler System
- Foundation Description:Slab
- Levels:3+ Story
Schools
- High school:Creekview
- Middle school:Creekland
- Elementary school:Ball Ground
Utilities
- Water:Public, Water Available
- Sewer:Public Sewer, Sewer Available
Finances and disclosures
- Price:$859,900
- Price per sq. ft.:$247.67
Features and amenities
- Appliances:Dishwasher, Disposal
- Amenities:Double Pane Windows, Smoke Detector(s), Tray Ceiling(s)
Parking
- Parking description:Detached Parking, Garage
- Garage:Yes
New listings near 565 Groover Street
- New
Listed by ERA$461,250Active6.15 Acres2025 Soap Creek Road, Ball Ground, GA 30107
MLS# 10763630Listed by: ERA Sunrise Realty - New
$350,000Active3 beds 3 baths1,680 sq. ft.119 Covington Drive, Ball Ground, GA 30107
MLS# 7769682Listed by: ATLANTA COMMUNITIES - New
$1,600,000Active4 beds 3 baths4,576 sq. ft.399 Smith Road, Ball Ground, GA 30107
MLS# 7755150Listed by: RE/MAX TOWN AND COUNTRY - New
$445,000Active5 beds 3 baths2,624 sq. ft.174 Renford Road, Ball Ground, GA 30107
MLS# 7768517Listed by: ATLANTA FINE HOMES SOTHEBY'S INTERNATIONAL - New
$835,000Active2 beds 2 baths1,976 sq. ft.580 Eagles Perch Road, Ball Ground, GA 30107
MLS# 7767135Listed by: CENTURY 21 LINDSEY AND PAULEY - New
$1,375,000Active5 beds 5 baths1010 Darby Ford Lane, Ball Ground, GA 30107
MLS# 10760412Listed by: Atlanta Communities - New
$795,000Active6 beds 4 baths4,422 sq. ft.8670 Gilmer Fort, Ball Ground, GA 30107
MLS# 7760810Listed by: CENTURY 21 CONNECT REALTY - New
$525,900Active3 beds 2 baths1,699 sq. ft.1828 Four Mile Church Road, Ball Ground, GA 30107
MLS# 10759944Listed by: RE/MAX Town & Country Jasper - New
$734,900Active3 beds 4 baths2,765 sq. ft.557 Groover Street, Ball Ground, GA 30107
MLS# 10759180Listed by: Ansley RE|Christie's Int'l RE - New
$744,900Active4 beds 5 baths3,104 sq. ft.533 Groover Street, Ball Ground, GA 30107
MLS# 10759184Listed by: Ansley RE|Christie's Int'l RE