1229 Morgans Run, Monroe, GA 30656
Local realty services provided by:ERA Sunrise Realty
1229 Morgans Run,Monroe, GA 30656
$510,000
- 3 Beds
- 2 Baths
- 3,146 sq. ft.
- Single family
- Active
Listed by: nicole floyd
Office: keller williams greater athens
MLS#:10677952
Source:METROMLS
Price summary
- Price:$510,000
- Price per sq. ft.:$162.11
About this home
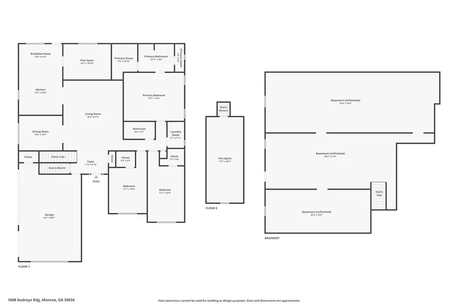
New construction home just minutes from downtown Monroe's shops and restaurants! The Audrey plan offers a thoughtfully designed ranch home on a basement, featuring three bedrooms, two bathrooms, and a bonus room over the two-car garage. Step into the foyer and be welcomed by an oversized family room featuring soaring 12-foot ceilings, and a dedicated home office or flex space to suit your lifestyle. The eat-in kitchen boasts an abundance of custom cabinetry, tiled backsplash, granite countertops, and stainless-steel appliances with a large separate dining room adjacent to. All bedrooms are situated on the main floor, including two generously sized secondary bedrooms, each featuring walk-in closets. The spacious owner's suite boasts tray ceilings, a double vanity with premium granite countertops, a large tiled shower with a glass enclosure, and a massive walk-in closet. The upstairs offers a versatile bonus room, while the basement offers an additional 2,800 +/- square feet, perfect for your storage needs or to customize extra living space. The secluded and spacious back yard includes a deck off the kitchen, along with a patio just off the basement. Mature trees along with a new landscaping package, including a sodded front and side yard, makes this house have great curb appeal. Located in a desirable neighborhood with great amenities and a convenient location, this property offers both comfort and accessibility. Schedule your private tour today! *Ask about the option to have a fireplace installed at no additional cost! Photos with fireplace and furniture are virtually staged images to show the rooms potential* (Also see other new construction in neighborhood by builder at 1235 Morgans run)...
Contact an agent
Home facts
- Year built:2026
- Listing ID #:10677952
- Updated:May 15, 2026 at 10:47 AM
Rooms and interior
- Bedrooms:3
- Total bathrooms:2
- Full bathrooms:2
- Flooring:Tile, Vinyl
- Dining Description:Separate Room
- Bathrooms Description:Double Vanity, Separate Shower, Tile Bath
- Kitchen Description:Dishwasher, Microwave, Oven/Range (Combo), Stainless Steel Appliance(s)
- Bedroom Description:Master On Main Level, Walk-In Closet(s)
- Basement Description:Bath/Stubbed, Concrete, Daylight, Exterior Entry, Interior Entry
- Living area:3,146 sq. ft.
Heating and cooling
- Cooling:Central Air
- Heating:Central, Electric
- Central air:Yes
Structure and exterior
- Roof:Composition
- Year built:2026
- Building area:3,146 sq. ft.
- Lot area:0.61 Acres
- Lot Features:Open Lot, Sloped
- Architectural Style:Brick Front, Traditional
- Construction Materials:Brick, Vinyl Siding
- Levels:2 Story
Schools
- High school:Monroe Area
- Middle school:Carver
- Elementary school:Walker Park
Utilities
- Water:Public
- Sewer:Septic Tank
Finances and disclosures
- Price:$510,000
- Price per sq. ft.:$162.11
- Tax amount:$849 (2024)
Features and amenities
- Appliances:Dishwasher, Electric Water Heater, Microwave, Oven/Range (Combo), Stainless Steel Appliance(s)
- Laundry features:Laundry
- Amenities:Electric Water Heater, High Ceilings
Parking
- Parking description:Attached, Garage, Garage Door Opener
- Garage:Yes
New listings near 1229 Morgans Run
- New
$465,000Active3 beds 2 baths2,268 sq. ft.1264 Pine View Trail, Monroe, GA 30656
MLS# 10764747Listed by: Ansley RE|Christie's Int'l RE - New
$466,200Active3 beds 3 baths2,168 sq. ft.2028 Windfield Drive, Monroe, GA 30655
MLS# 10764702Listed by: Bramlett Realty Group - Coming Soon
$589,000Coming Soon4 beds 3 baths3640 Eagle View Way, Monroe, GA 30655
MLS# 7768676Listed by: THE REZERVE, LLC - New
$325,000Active3 beds 2 baths1,409 sq. ft.205 Richmond Hill Road, Monroe, GA 30655
MLS# 7770827Listed by: BERKSHIRE HATHAWAY HOMESERVICES GEORGIA PROPERTIES - Coming Soon
$589,000Coming Soon4 beds 3 baths3640 Eagle View Way, Monroe, GA 30655
MLS# 10764360Listed by: The Rezerve - Open Sat, 11am to 1pmNew
$1,250,000Active6 beds 7 baths4,953 sq. ft.7128 Hwy 81, Monroe, GA 30656
MLS# 10764561Listed by: eXp Realty - New
$920,750Active36.83 Acres4835 Snows Mill Road, Monroe, GA 30655
MLS# 10764600Listed by: Cranford & Co. Realty, Inc. - New
$600,000Active4 beds 4 baths941 Providence Lane, Monroe, GA 30656
MLS# 10764071Listed by: Keller Williams Realty Atl. Partners - New
$259,900Active3 beds 2 baths1,512 sq. ft.407 Wall Street, Monroe, GA 30655
MLS# 10763355Listed by: The HomeStore - Open Fri, 9am to 7pmNew
$335,000Active3 beds 3 baths2,060 sq. ft.525 Michael Circle, Monroe, GA 30655
MLS# 10763030Listed by: Opendoor Brokerage