14552 W Concord Court, Wadsworth, IL 60083
Local realty services provided by:Results Realty ERA Powered
14552 W Concord Court,Wadsworth, IL 60083
$879,900
- 4 Beds
- 4 Baths
- 3,100 sq. ft.
- Single family
- Active
Listed by: lynn fairfield
Office: re/max suburban
MLS#:12625736
Source:MLSNI
Price summary
- Price:$879,900
- Price per sq. ft.:$283.84
About this home
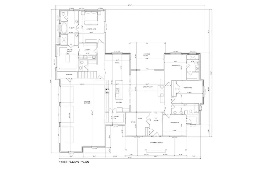
Proposed new construction home ! Custom home builder can make your dream home a reality. This plan is a 4 bedroom plus an office ranch home plan with a basement. Featured are custom cabinets, quartz counters, high-end appliances, oversized moldings and trim, and beautiful doors. Master suite will please with a luxury spa bath and huge walk-in closet. There is a princess suite with its own bath, and the other two bedrooms have a jack-n-jill bath. Plus the living space has a half bath. The kitchen features a center island, quartz counters, stainless high end appliances and a large walk-in pantry. You will love the large living room that opens to the dining room for entertaining family or friends. There is a work from home office or study and a main floor laundry.This home has everything you are looking for plus a three car garage ! Call today to schedule a meeting with the builder.
Contact an agent
Home facts
- Year built:2026
- Listing ID #:12625736
- Updated:April 23, 2026 at 11:02 AM
Rooms and interior
- Bedrooms:4
- Total bathrooms:4
- Full bathrooms:3
- Half bathrooms:1
- Rooms Total:8
- Dining Description:Separate Dining Room
- Bathrooms Description:Garden Tub, Separate Shower
- Kitchen Description:Dishwasher, Double Oven, Microwave, Refrigerator, Stainless Steel Appliance(s)
- Basement:Yes
- Basement Description:Partial, Unfinished
- Living area:3,100 sq. ft.
Heating and cooling
- Cooling:Central Air
- Heating:Forced Air, Natural Gas
- Central air:Yes
Structure and exterior
- Roof:Asphalt
- Year built:2026
- Building area:3,100 sq. ft.
- Lot area:0.9 Acres
- Architectural Style:Ranch
- Foundation Description:Concrete Perimeter
- Levels:1 Story
Schools
- High school:Warren Township High School
Finances and disclosures
- Price:$879,900
- Price per sq. ft.:$283.84
- Tax amount:$1,847 (2025)
Parking
- Total parking spaces:3
- Parking description:Asphalt, Attached Garage, Concrete, Garage
- Garage:Yes
- Garage spaces:3
New listings near 14552 W Concord Court
- New
$925,000Active4 beds 3 baths2,790 sq. ft.41604 N Hunt Club Road, Wadsworth, IL 60083
MLS# 12617879Listed by: @PROPERTIES CHRISTIE'S INTERNATIONAL REAL ESTATE
$435,000Pending4 beds 3 baths3,174 sq. ft.3240 Midlane Drive, Wadsworth, IL 60083
MLS# 12622053Listed by: KELLER WILLIAMS NORTH SHORE WEST
$239,500Pending2 beds 2 baths1,330 sq. ft.2967 Concord Lane #2967, Wadsworth, IL 60083
MLS# 12618595Listed by: @PROPERTIES CHRISTIE'S INTERNATIONAL REAL ESTATE- New
$57,500Active1 Acres16149 Scenic Court, Wadsworth, IL 60083
MLS# 12620036Listed by: RE/MAX PLAZA - New
$315,000Active2 beds 2 baths2,467 sq. ft.2778 N Augusta Drive, Wadsworth, IL 60083
MLS# 12617595Listed by: @PROPERTIES CHRISTIE'S INTERNATIONAL REAL ESTATE - Open Sun, 12 to 3pm
$849,000Active6 beds 4 baths6,023 sq. ft.39691 Orchard Bluff Lane, Wadsworth, IL 60083
MLS# 12560813Listed by: HOMESMART CONNECT LLC
$400,000Active5.2 Acres36641 Devon Court, Wadsworth, IL 60083
MLS# 12609705Listed by: @PROPERTIES CHRISTIE'S INTERNATIONAL REAL ESTATE
$399,900Pending3 beds 2 baths1,625 sq. ft.38679 N Pine Grove Avenue, Wadsworth, IL 60083
MLS# 12608108Listed by: PROWISE REALTY LLC
$80,000Active0.75 Acres38705 N Pine Grove Avenue, Wadsworth, IL 60083
MLS# 12608198Listed by: PROWISE REALTY LLC