552 Sun Vale Lane, Grandville, MI 49418
Local realty services provided by:ERA Greater North Properties
552 Sun Vale Lane,Grandville, MI 49418
$469,500
- 2 Beds
- 2 Baths
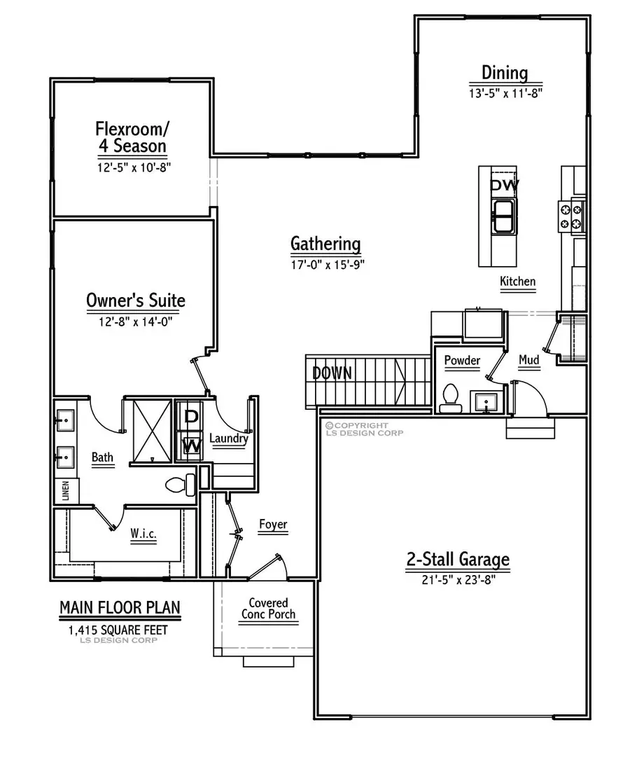
- 1,415 sq. ft.
- Condominium
- Active
Listed by: nathaniel r bialik
Office: bialik real estate llc.
MLS#:26007246
Source:MI_MICHRIC
Price summary
- Price:$469,500
- Price per sq. ft.:$331.8
- Monthly HOA dues:$300
About this home
Can be Built in appx 7 months. Photos are from a previous ''PATTERSON'' build in Summerset Villas East. This stand-alone executive ranch condominium by award-winning builder in Georgetown Twp includes the quality amenities you would hope for! We encourage customizations! We can change any floor plan to meet your dream! Interior designer included! Main level 2 bedroom (one is flex room) 1.5 bath. Open concept floor plan! Kitchen appliances included. Primary bedroom w/ en-suite full bath, duel vanity, & walk-in closet. Main floor laundry, UGS. Pets allowed. Option to finish lower level with 2 more bedrooms, 1 full bath and family room for a base build price of about $50k more! Build includes yard and landscaping too! Grandville Schools. Zero step entry and accessibility options. Built by YOUR HOMES LLC with 1 year builder warranty.
We can build or modify any of your custom ideas! See supplement/docs for more info. Call today! Built by YOUR HOMES LLC with 1 year builder warranty.
We can build any and all of your custom ideas/options!
Builder Base Standard Features
" All Quartz Countertops
" 5.5 inch baseboard & 3.5 casing trim
" Quality soft-close & dove tailed cabinets
" Low-E Argon Northstar windows/sliders
" Kitchen Appliances included (allowance)
" Landscaping/Lawn package with UGS
" Flooring with luxury vinyl plank flooring, premium laminate, and carpet
" Quiet belt driven wifi Garage openers & keypad
" Built to modern Energy Efficient standards
" Engineered Floor Joist (for even weight distribution)
Popular Options
" 2.5 stall garage site dependent
" Sun Room (4 season room)
" Finished Garage w/Water Hookup and heat
" Front Elevation style & color
" Additional Bedrooms & Bathrooms
" Extended Dining Area Square Footage
" Zoned Heating & Cooling or additional Insulation
" Fireplace and custom mantel with surround
" Interior Built-In Speaker System
" Tray or cathedral ceilings
" 9 Foot Ceilings lower level
" 0 step entry
" 36" doors for handicap access
" Staircase Railing & Banister
" Composite Deck with metal railing
" Stairs down from deck
" Walk-in tile shower
" Wet bar/kitchenette
" Even Floor Plan/Design Changes!
" Your Custom Ideas!
Community
"Do you like golf and the pool? Access to Sunnybrook CC in through Summerset South!
" Grandville Area convenience to M6 & 196 highways, mall, restaurant, and shopping amenities.
" Lower Georgetown Township property taxes compared to surrounding areas
" Stand-alone single-family condo homes for individual space and privacy.
" Monthly $300 Dues include water/sewer, trash, yard care, snow removal,(even shoveling walkway to front door) landscaping and exterior maintenance
" Pets allowed
" Your go-to Fashionable and High End Quality Condo Community in Grandville!...
Contact an agent
Home facts
- Year built:2026
- Listing ID #:26007246
- Added:77 day(s) ago
- Updated:May 15, 2026 at 03:12 PM
Rooms and interior
- Bedrooms:2
- Total bathrooms:2
- Full bathrooms:1
- Half bathrooms:1
- Rooms Total:7
- Kitchen Description:Dishwasher, Microwave, Range, Refrigerator
- Basement:Yes
- Basement Description:Daylight
- Living area:1,415 sq. ft.
Heating and cooling
- Heating:Forced Air
- Central air:Yes
Structure and exterior
- Year built:2026
- Building area:1,415 sq. ft.
- Lot Features:Cul-De-Sac
- Construction Materials:Vinyl Siding
Utilities
- Water:Public
Finances and disclosures
- Price:$469,500
- Price per sq. ft.:$331.8
- Tax amount:$215 (2025)
Features and amenities
- Amenities:Detached Unit
Parking
- Garage:Yes
- Garage spaces:2
New listings near 552 Sun Vale Lane
- New
$339,000Active2 beds 3 baths2,361 sq. ft.4207 Redbush Drive Sw, Grandville, MI 49418
MLS# 26022509Listed by: GREENRIDGE REALTY (HASTINGS) - Open Sat, 11am to 1pmNew
$249,900Active3 beds 1 baths1,231 sq. ft.3083 Barrett Avenue Sw, Grandville, MI 49418
MLS# 26022220Listed by: KELLER WILLIAMS PROFESSIONALS - New
$335,000Active3 beds 3 baths1,642 sq. ft.3788 Wilson Avenue Sw, Grandville, MI 49418
MLS# 26022027Listed by: BIALIK REAL ESTATE LLC - Open Sat, 12 to 2pmNew
$430,000Active4 beds 3 baths2,596 sq. ft.4105 44th Street Sw, Grandville, MI 49418
MLS# 26021729Listed by: GREENRIDGE REALTY (SUMMIT) - Open Sat, 1am to 3pmNew
$475,000Active3 beds 4 baths2,049 sq. ft.3704 Piute Drive Sw, Grandville, MI 49418
MLS# 26021286Listed by: REAL BROKER LLC
$310,000Pending3 beds 2 baths2,340 sq. ft.3261 Calvin Court Sw, Grandville, MI 49418
MLS# 26021156Listed by: GREENRIDGE REALTY (HASTINGS)- New
$1,039,900Active6 beds 5 baths3,821 sq. ft.5584 Stonebridge Drive, Grandville, MI 49418
MLS# 26021034Listed by: BELLABAY REALTY LLC
$275,000Pending4 beds 1 baths1,248 sq. ft.6518 8th Avenue Sw, Grandville, MI 49418
MLS# 26021063Listed by: FIVE STAR REAL ESTATE (JENISON)
$329,900Pending3 beds 1 baths1,672 sq. ft.4292 Billmar Street Sw, Grandville, MI 49418
MLS# 26020513Listed by: FIVE STAR REAL ESTATE (GRANDV)
$319,900Pending3 beds 2 baths1,840 sq. ft.3341 30th Street Sw, Grandville, MI 49418
MLS# 26020515Listed by: FIVE STAR REAL ESTATE (GRANDV)