1219 Honeysuckle Lane, Cambridge, MN 55008
Local realty services provided by:ERA Prospera Real Estate
Listed by: jon d. jondahl group
Office: exp realty
MLS#:6821346
Source:NSMLS
Price summary
- Price:$389,343
- Price per sq. ft.:$280.1
About this home
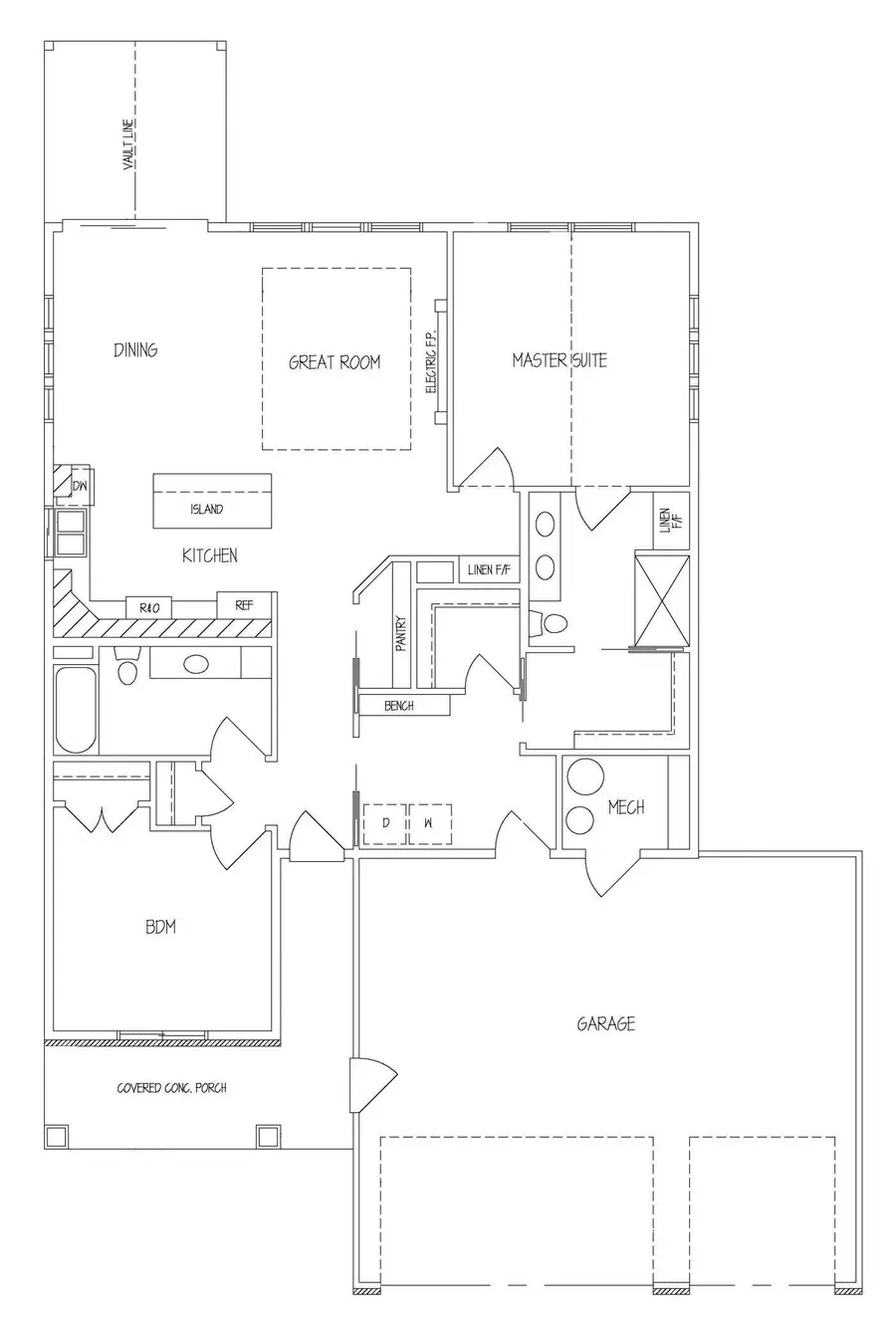
Welcome to Honeysuckle Villas, a beautiful new development in Cambridge offering brand-new one-level villas designed for comfort, simplicity, and style. These thoughtfully designed homes feature in-floor heat throughout, providing cozy warmth in every season, along with mini-split systems that offer both AC and a secondary heat source for year-round efficiency. Each villa offers an open-concept floor plan, 2 spacious bedrooms and 2 bathrooms, all with all living facilities on one level for easy, accessible living. Buyers can choose from three garage configurations to suit their lifestyle needs: a standard 2-car garage, a 3-car garage, or an oversized 3-car garage, ideal for additional storage, hobbies, or recreational vehicles. With no HOA association, you'll enjoy the freedom of homeownership without extra monthly fees or restrictions. Whether you're looking to downsize, simplify, or start fresh in a beautiful new community, Honeysuckle Villas offers the perfect place to call home. 3 BR layout also available. Don't miss your opportunity to build in this exciting new development. Let's start building your ideal home and easy-living lifestyle today!...
Contact an agent
Home facts
- Year built:2025
- Listing ID #:6821346
- Added:172 day(s) ago
- Updated:May 17, 2026 at 12:04 PM
Rooms and interior
- Bedrooms:2
- Total bathrooms:2
- Full bathrooms:1
- Dining Description:Breakfast Bar, Kitchen/Dining Room, Living/Dining Room
- Bathrooms Description:Main Floor Full Bath
- Kitchen Description:Dishwasher, Microwave, Range, Refrigerator
- Basement:Yes
- Living area:1,390 sq. ft.
Heating and cooling
- Cooling:Ductless Mini-Split
- Heating:Ductless Mini-Split, In-Floor Heating
Structure and exterior
- Roof:Age 8 Years or Less, Asphalt
- Year built:2025
- Building area:1,390 sq. ft.
- Construction Materials:Block
- Levels:1 Story
Utilities
- Water:City Water - Connected
- Sewer:City Sewer - Connected
Finances and disclosures
- Price:$389,343
- Price per sq. ft.:$280.1
Features and amenities
- Appliances:Microwave, Range, Refrigerator, Washer
- Laundry features:Dryer, Washer
- Amenities:Air-To-Air Exchanger
Parking
- Parking description:Attached Garage, Garage Door Opener
- Garage:Yes
- Garage spaces:3
New listings near 1219 Honeysuckle Lane
- New
$419,900Active4 beds 2 baths1,691 sq. ft.1397 309th Avenue Nw, Cambridge, MN 55008
MLS# 7048345Listed by: CENTURY 21 MOLINE REALTY INC - New
$314,900Active4 beds 3 baths2,260 sq. ft.2117 Cleveland Lane S, Cambridge, MN 55008
MLS# 7073301Listed by: SET APART REALTY - New
$300,000Active4 beds 2 baths1,957 sq. ft.847 Ashland Street S, Cambridge, MN 55008
MLS# 7065611Listed by: MY MOBILE AGENTS REALTY - New
$410,000Active3 beds 3 baths2,250 sq. ft.2130 357th Avenue Ne, Cambridge, MN 55008
MLS# 7071931Listed by: RE/MAX RESULTS - Open Sun, 12 to 2pmNew
$425,000Active3 beds 4 baths2,224 sq. ft.35448 Highway 47 Nw, Cambridge, MN 55008
MLS# 7002171Listed by: EDINA REALTY, INC. - New
$360,000Active4 beds 2 baths2,681 sq. ft.308 Cypress Street S, Cambridge, MN 55008
MLS# 7022761Listed by: CENTURY 21 MOLINE REALTY INC - New
$165,000Active2 beds 2 baths1,040 sq. ft.815 334th Avenue Ne, Cambridge, MN 55008
MLS# 7063889Listed by: EDINA REALTY, INC. - New
$285,000Active3 beds 2 baths1,450 sq. ft.1455 Adams Street S, Cambridge, MN 55008
MLS# 7070919Listed by: LPT REALTY, LLC - New
$335,000Active5 beds 3 baths2,090 sq. ft.1136 Pioneer Trail Se, Cambridge, MN 55008
MLS# 7006752Listed by: REALTY EXECUTIVES TOP RESULTS - New
$895,000Active4 beds 4 baths3,750 sq. ft.44154 Skogman Lake Road, Cambridge, MN 55008
MLS# 7041256Listed by: KELLER WILLIAMS CLASSIC RLTY NW