3525 Angier Avenue, Durham, NC 27703
Local realty services provided by:ERA Strother Real Estate
3525 Angier Avenue,Durham, NC 27703
$335,000
- 3 Beds
- 2 Baths
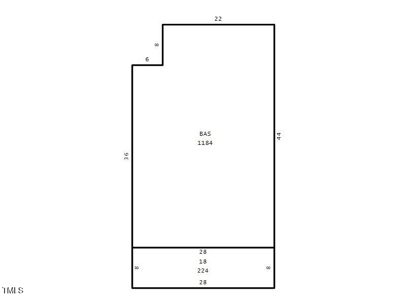
- 1,184 sq. ft.
- Single family
- Active
Upcoming open houses
- Sat, Oct 1112:00 pm - 02:00 pm
Listed by:ian kipp
Office:berkshire hathaway homeservice
MLS#:10116281
Source:RD
Price summary
- Price:$335,000
- Price per sq. ft.:$282.94
About this home
This newly renovated Craftsman Cottage sits on almost an Acre! The home has the scale & exterior of an older home PLUS today's requisite finishes, fixtures & amenities. Qualifies for lower interest rate & 3% Down option via Unique Advantage Community Lending Program. Enter the home from the adorable front porch. The ''classic'' four-gabled & railed front porch is 8' X 28'. The OPEN Living Room/Dining Room/Kitchen space on the home's right side. The paint, flooring, fixtures & Electrical system and box are new. Newer vinyl replacement windows. The home's 3 bedrooms & 2 bathrooms are stacked on the home's left side across from the OPEN living space. Bedroom #3 is at the front of the house. Bedroom #2 is in the middle and the Master Sanctuary at rear. The sleek Kitchen has a quartz center island & countertops, shaker cabinets, Stainless cooktop stove/oven + Dishwasher & black fixtures and handles. Both Bathrooms have granite-topped vanities, black fixtures & ceramic tiled bath and shower surrounds. Separate Laundry & Mud Room behind the Kitchen, by the back door. The backyard has a double-doored 12' X 24' storage shed with gutters & downspouts. The DEEP , +/- 90' wide lot, goes all the way to Cortez Drive +/- 399' feet from Angier Avenue! Urban farm? The back frontage could be an opportunity for a street-accessible storage building. A 10 minute drive to Downtown Durham, both local- on Angier Ave- & on Highways via US-70, the East End Connector & The Durham Freeway/147. Brier Creek and I-540 are a +/- 13 minute drive. Restaurants & services nearby. Suburban living with a Country feel & the City SO close!
Contact an agent
Home facts
- Year built:1920
- Listing ID #:10116281
- Added:52 day(s) ago
- Updated:October 07, 2025 at 09:56 PM
Rooms and interior
- Bedrooms:3
- Total bathrooms:2
- Full bathrooms:2
- Living area:1,184 sq. ft.
Heating and cooling
- Cooling:Ceiling Fan(s), Central Air
- Heating:Central, Electric, Forced Air, Heat Pump
Structure and exterior
- Roof:Shingle
- Year built:1920
- Building area:1,184 sq. ft.
- Lot area:0.93 Acres
Schools
- High school:Durham - Southern
- Middle school:Durham - Neal
- Elementary school:Durham - Bethesda
Utilities
- Water:Public
- Sewer:Public Sewer
Finances and disclosures
- Price:$335,000
- Price per sq. ft.:$282.94
- Tax amount:$1,279
New listings near 3525 Angier Avenue
- New$390,000Active3 beds 3 baths1,925 sq. ft.
822 Romeria Drive, Durham, NC 27713
MLS# 10126299Listed by: CAROLINA'S CHOICE REAL ESTATE - New$799,900Active4 beds 4 baths3,597 sq. ft.
1213 Opal Lane #80, Durham, NC 27705
MLS# 10126304Listed by: BEAZER HOMES - New$389,900Active3 beds 2 baths1,360 sq. ft.
104 Deblyn Court, Durham, NC 27713
MLS# 10126242Listed by: COLDWELL BANKER - HPW - New$260,000Active3 beds 3 baths1,300 sq. ft.
1218 Kendall Drive, Durham, NC 27703
MLS# 10126230Listed by: REFERRAL REALTY US LLC - Open Sat, 2 to 4pmNew$465,000Active4 beds 2 baths1,889 sq. ft.
4722 Alderbrook Lane, Durham, NC 27713
MLS# 10126196Listed by: KELLER WILLIAMS ELITE REALTY - New$29,999Active0.31 Acres
126 Parquet Street, Durham, NC 27707
MLS# 4309848Listed by: MRE BROKERAGE SERVICES LLC - New$430,000Active3 beds 3 baths1,849 sq. ft.
124 White Crane Court, Durham, NC 27713
MLS# 10126157Listed by: MARK SPAIN REAL ESTATE - New$405,000Active3 beds 3 baths1,889 sq. ft.
145 Torrey Hights Lane, Durham, NC 27703
MLS# 10126151Listed by: MUNA HOMES LLC - New$433,130Active3 beds 2 baths1,923 sq. ft.
1216 Carpenter Falls Avenue, Durham, NC 27704
MLS# 10126141Listed by: PULTE HOME COMPANY LLC - New$433,550Active3 beds 2 baths1,923 sq. ft.
1212 Carpenter Falls Avenue, Durham, NC 27704
MLS# 10126137Listed by: PULTE HOME COMPANY LLC