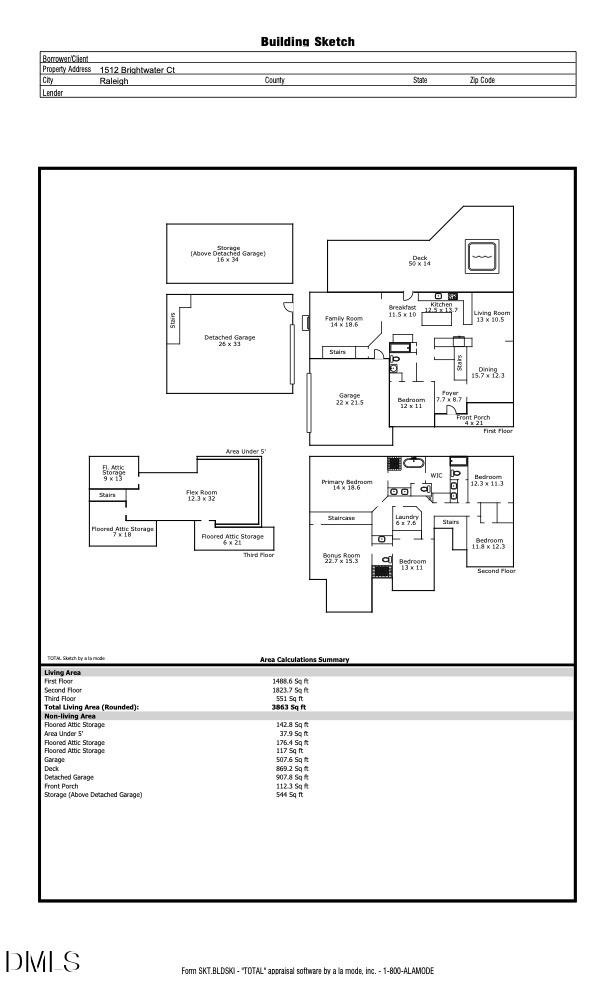
1512 Brightwater Court, Raleigh, NC 27614
Local realty services provided by:ERA Live Moore
Listed by: aaron wilson
Office: live triangle real estate llc.
MLS#:10163782
Source:RD
Price summary
- Price:$1,125,000
- Price per sq. ft.:$291.22
- Monthly HOA dues:$22.92
About this home
Tucked away on a beautifully landscaped 2.88-acre homesite in the exclusive Brightwater community, this stunning North Raleigh estate offers the perfect blend of luxury, privacy, and everyday comfort. Surrounded by custom-built homes on expansive lots adjacent to Falls Lake, this exceptional property features 5 bedrooms, 4 full bathrooms, and 3,863 square feet of thoughtfully designed living space. The main level offers an elegant yet functional layout with a formal dining room, living room, spacious family room, kitchen, breakfast area, and a first-floor bedroom ideal for guests or multi-generational living. Upstairs, the expansive primary suite is joined by three additional bedrooms and a versatile bonus room, while the third floor provides a large flex space perfect for a media room, home gym, or playroom. Designed for both relaxation and entertaining, the outdoor living spaces are truly special. Enjoy peaceful evenings on the large deck with hot tub overlooking the private backyard, or gather around the stone patio and fire pit surrounded by mature landscaping and natural beauty. Additional features include a detached two-car garage and 544 square feet of unfinished space offering endless potential for future expansion, a workshop, office, or additional recreational space. Offering the tranquility of estate-style living with convenient access to North Raleigh amenities and outdoor recreation at Falls Lake, this is a rare opportunity to own a one-of-a-kind property in one of the area's most desirable zip codes....
Contact an agent
Home facts
- Year built:1998
- Listing ID #:10163782
- Added:1 day(s) ago
- Updated:April 30, 2026 at 09:02 PM
Rooms and interior
- Bedrooms:5
- Total bathrooms:4
- Full bathrooms:4
- Rooms Total:12
- Flooring:Carpet, Hardwood, Tile
- Bathrooms Description:Bathtub/Shower Combination, Double Vanity, Soaking Tub, Walk-In Shower, Water Closet
- Kitchen Description:Dishwasher, Gas Range, Gas Water Heater, Microwave, Range Hood
- Living area:3,863 sq. ft.
Heating and cooling
- Cooling:Central Air, Gas, Heat Pump
- Heating:Central, Gas Pack, Heat Pump
- Central air:Yes
Structure and exterior
- Roof:Shingle
- Year built:1998
- Building area:3,863 sq. ft.
- Lot area:2.88 Acres
- Lot Features:Back Yard, Cul-de-sac, Front Yard, Hardwood Trees, Landscaped, Sprinklers In Front, Sprinklers In Rear
- Architectural Style:Traditional
- Construction Materials:Brick
- Exterior Features:Deck, Fire Pit, Front Porch, Garden, Lighting, Patio, Private Yard, Rain Gutters
- Levels:Three Or More
Schools
- High school:Wake - Millbrook
- Middle school:Wake - West Millbrook
- Elementary school:Wake - Brassfield
Utilities
- Water:Private, Well
- Sewer:Septic Tank
Finances and disclosures
- Price:$1,125,000
- Price per sq. ft.:$291.22
- Tax amount:$5,114
Features and amenities
- Appliances:Dishwasher, Gas Range, Gas Water Heater, Microwave, Oven, Range Hood
- Laundry features:Electric Dryer Hookup, Laundry Room, Sink, Upper Level, Washer Hookup
- Amenities:Ceiling Fan(s), Central Vacuum, Crown Molding, Entrance Foyer, Gas Water Heater, Granite Counters, High Ceilings, High Speed Internet, Kitchen Island, Pantry, Recessed Lighting, Smooth Ceilings, Tray Ceiling(s), Vaulted Ceiling(s), Walk-In Closet(s)
Parking
- Parking description:Concrete, Detached, Driveway, Parking Pad
- Garage:Yes
- Garage spaces:4
New listings near 1512 Brightwater Court
- New
$379,000Active3 beds 3 baths1,693 sq. ft.2509 Morgause Drive, Raleigh, NC 27614
MLS# 10163829Listed by: EXP REALTY, LLC - C - Coming Soon
$475,000Coming Soon3 beds 3 baths5409 Advancing, Raleigh, NC 27616
MLS# 10163837Listed by: DASH CAROLINA - New
$459,000Active3 beds 2 baths1,302 sq. ft.1405 Fairway Ridge Drive, Raleigh, NC 27606
MLS# 10163843Listed by: HOWARD HANNA ALLEN TATE RALEIGH GLENWOOD - New
$365,000Active3 beds 2 baths1,754 sq. ft.709 Trout Lilly Place, Raleigh, NC 27610
MLS# 10163846Listed by: EXP REALTY LLC - New
$700,000Active3 beds 3 baths2,544 sq. ft.8705 Trailing Cedar Court, Raleigh, NC 27613
MLS# 10163850Listed by: NORTHSIDE REALTY INC. - New
$360,000Active4 beds 2 baths1,260 sq. ft.2127 Milburnie Road, Raleigh, NC 27610
MLS# 10163851Listed by: RICH REALTY GROUP - Open Fri, 4 to 6pmNew
$625,000Active4 beds 3 baths2,270 sq. ft.3104 Shadwell Court, Raleigh, NC 27613
MLS# 10163793Listed by: RE/MAX UNITED - Open Sat, 2 to 4pmNew
$437,500Active2 beds 3 baths1,910 sq. ft.5705 Spring Road, Raleigh, NC 27603
MLS# 10163795Listed by: CHOICE RESIDENTIAL REAL ESTATE - New
$859,900Active5 beds 3 baths2,495 sq. ft.4704 Radcliff Road, Raleigh, NC 27609
MLS# 10163798Listed by: BRYAN MOORE, BROKER - Coming SoonOpen Sun, 11am to 1pm
$699,000Coming Soon4 beds 4 baths817 Gannett Street, Raleigh, NC 27606
MLS# 10163802Listed by: INSIGHT REAL ESTATE