8 Lone Pine Drive, Monroe, NY 10950

Local realty services provided by:ERA Caputo Realty
8 Lone Pine Drive,Monroe, NY 10950
$669,000
  • 5 Beds
  • 4 Baths
  • 3,347 sq. ft.
  • Single family
  • Active
Listed by: dovid hoffman
Office: mk realty inc
MLS#:989159
Source:OneKey MLS

Price summary

  • Price:$669,000
  • Price per sq. ft.:$199.88

About this home

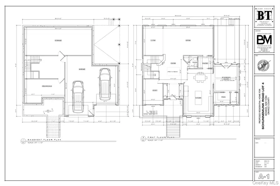
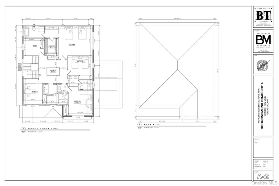
Exceptional Opportunity – Last Lot Available in this Sought-After Premier Circle Development! Don’t miss your chance to build your dream home in one of the area’s most desirable neighborhoods. This prime lot comes with ready-to-go architectural plans for a beautiful 3,347 sq.ft. private residence featuring an elegant layout, spacious living areas, and a two-car garage. Designed with both comfort and style in mind, the plans include generous indoor–outdoor flow, and premium opportunities throughout. Enjoy the benefits of a thriving neighborhood close to schools, shopping, parks, and everything in between! With all approvals ready and only one lot approved for a single-family home remaining, this property offers a rare blend of convenience, Luxure, and potential. Build your vision today – opportunities like this don’t last long.

Contact an agent

contact an agent

Yes, I would like more information. Please use and/or share my information with an ERA®  affiliated agent to contact me about my real estate needs. By clicking Send message, I request to be contacted by phone or text message and consent to being contacted by automated means. I understand that my consent to receive calls or texts is not a condition of purchasing any property, goods, or services. Alternatively, I understand that I can access real estate services by email or I can contact the agent myself.

If an ERA®  affiliated agent is not available in the area where I need assistance, I agree to be contacted by a real estate agent affiliated with another brand owned or licensed by Anywhere Real Estate (BHGRE® , CENTURY 21® , Coldwell Banker® , Corcoran® , Sotheby's International Realty® ).
 I acknowledge that I have read and agree to theTerms of useandPrivacy notice

Home facts

  • Year built:2026
  • Listing ID #:989159
  • Added:2 day(s) ago
  • Updated:April 26, 2026 at 10:55 AM

Rooms and interior

  • Bedrooms:5
  • Total bathrooms:4
  • Full bathrooms:3
  • Half bathrooms:1
  • Rooms Total:10
  • Basement:Yes
  • Basement Description:Unfinished
  • Living area:3,347 sq. ft.

Heating and cooling

  • Cooling:Central Air
  • Central air:Yes

Structure and exterior

  • Year built:2026
  • Building area:3,347 sq. ft.
  • Lot area:0.23 Acres
  • Architectural Style:Colonial

Schools

  • High school:Monroe-Woodbury High School
  • Middle school:Monroe-Woodbury Middle School
  • Elementary school:Central Valley Elementary School

Finances and disclosures

  • Price:$669,000
  • Price per sq. ft.:$199.88
  • Tax amount:$2,151 (2025)

Parking

  • Parking description:Attached
  • Garage:Yes
  • Garage spaces:2
Copyright 2026 OneKey MLS. All rights reserved. Listings courtesy of OneKey MLS as distributed by MLS GRID <lastMLSCheckTimestamp>. OneKey MLS provides content displayed here (“provided content”) on an “as is” basis and makes no representations or warranties regarding the provided content, including, but not limited to those of non-infringement, timeliness, accuracy, or completeness. Individuals and companies using information presented are responsible for verification and validation of information they utilize and present to their customers and clients. OneKey MLS will not be liable for any damage or loss resulting from use of the provided content or the products available through Portals, IDX, VOW, and/or Syndication. Recipients of this information shall not resell, redistribute, reproduce, modify, or otherwise copy any portion thereof without the expressed written consent of OneKey MLS.