70 NW Birdsdale Ave, Gresham, OR 97030
Local realty services provided by:ERA Freeman & Associates, Realtors
70 NW Birdsdale Ave,Gresham, OR 97030
$825,000
- 0.78 Acres
- Lots / Land
- Active
Listed by: daniel tishchenko
Office: kelly right real estate of portland, llc.503-719-6056
MLS#:624969330
Source:PORTLAND
Price summary
- Price:$825,000
About this home
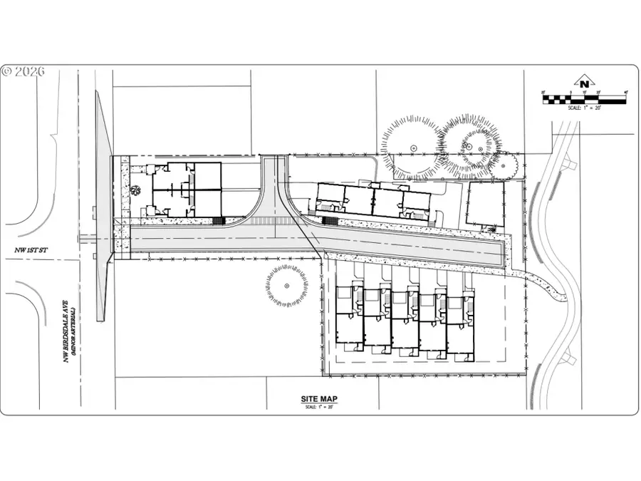
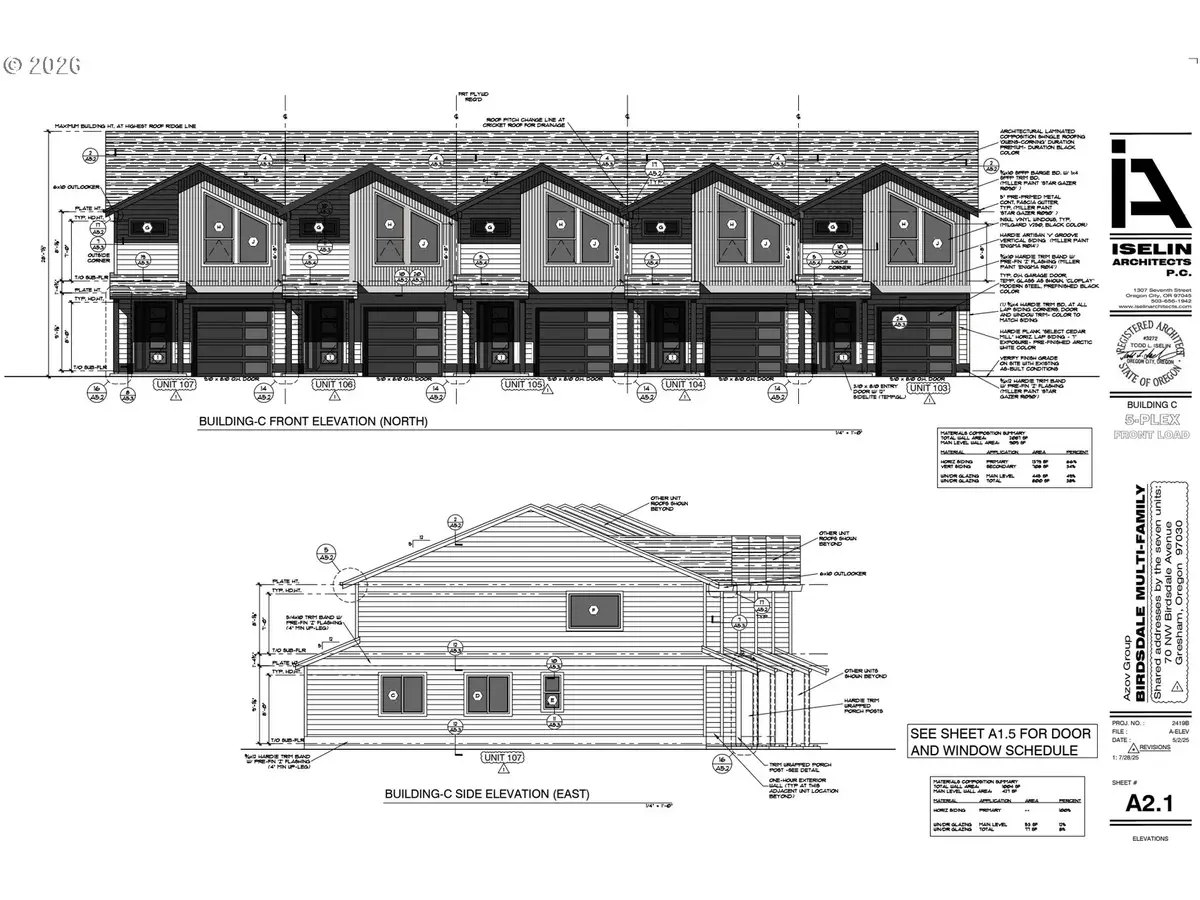
Permit-ready 9-unit townhome development site in Gresham — city only requires permit fees to begin construction. Fully entitled with approved architectural, civil engineering, and landscape plans. Two tax lots totaling 0.78 acres zoned CMU (Corridor Mixed Use), approved for two duplexes and one fiveplex. All nine units designed as 3-bedroom, 2.5-bath two-story townhomes averaging approximately 1,400 SF each (~12,600 SF total livable). Each unit includes a private garage with driveway parking. Site plan includes private driveways, children's play area, stormwater management, bike parking, and landscaped buffers. Flat, cleared lot with all utilities available at the street including public water, sewer, natural gas, and electricity. No existing structures. Located south of Powell Blvd near NW Civic Dr with easy access to MAX light rail, Gresham Station shopping, and Highway 26. Strong rental demand in the Gresham market makes this an ideal build-to-rent or build-to-sell opportunity. Complete entitlement package transfers with sale including civil drawings, architectural plans, and landscape permit set. Buyer selects general contractor and interior finishes. Seller is a licensed Oregon real estate broker with ownership interest in the property....
Contact an agent
Home facts
- Listing ID #:624969330
- Added:49 day(s) ago
- Updated:May 13, 2026 at 11:27 AM
Structure and exterior
- Lot area:0.78 Acres
- Lot Features:Cleared, On Busline, Public Road
Schools
- High school:Gresham
- Middle school:Clear Creek
- Elementary school:North Gresham
Utilities
- Water:Water Available
Finances and disclosures
- Price:$825,000
- Tax amount:$3,311 (2025)
New listings near 70 NW Birdsdale Ave
- New
$625,000Active-- beds -- baths2,692 sq. ft.765 775 SE Roberts Ave, Gresham, OR 97080
MLS# 575264615Listed by: RAREBIRD REAL ESTATE - New
$845,000Active-- beds -- baths3,452 sq. ft.110 SE Vista Ave, Gresham, OR 97080
MLS# 753918241Listed by: FARIS REALTY - New
$375,000Active3 beds 3 baths1,614 sq. ft.5797 SE 18th Ct, Gresham, OR 97080
MLS# 431320444Listed by: PREMIERE PROPERTY GROUP, LLC - Open Sat, 1 to 3pmNew
$849,000Active3 beds 3 baths2,432 sq. ft.1921 SE Douglas Pl, Gresham, OR 97080
MLS# 180640903Listed by: RE/MAX EQUITY GROUP - Open Sun, 12 to 2pmNew
$525,000Active4 beds 2 baths1,851 sq. ft.4905 SE Woodland Dr, Gresham, OR 97080
MLS# 785351951Listed by: NEIGHBORS REALTY - New
$450,000Active3 beds 2 baths1,449 sq. ft.4117 SE 12 St, Gresham, OR 97080
MLS# 242334923Listed by: BOHRER REALTY - New
$439,900Active3 beds 2 baths1,548 sq. ft.1130 NW 1st St, Gresham, OR 97030
MLS# 426520001Listed by: MORE REALTY - New
$875,000Active4 beds 3 baths3,309 sq. ft.2923 SW 40th St, Gresham, OR 97080
MLS# 373002766Listed by: PREMIERE PROPERTY GROUP, LLC - Open Sat, 12 to 3pmNew
$419,000Active3 beds 1 baths1,142 sq. ft.18010 SE Stephens St, Portland, OR 97233
MLS# 350485244Listed by: MORE REALTY - Open Wed, 4 to 5pmNew
$649,900Active-- beds -- baths18220 SE Pine St, Portland, OR 97233
MLS# 238894307Listed by: KELLER WILLIAMS PDX CENTRAL