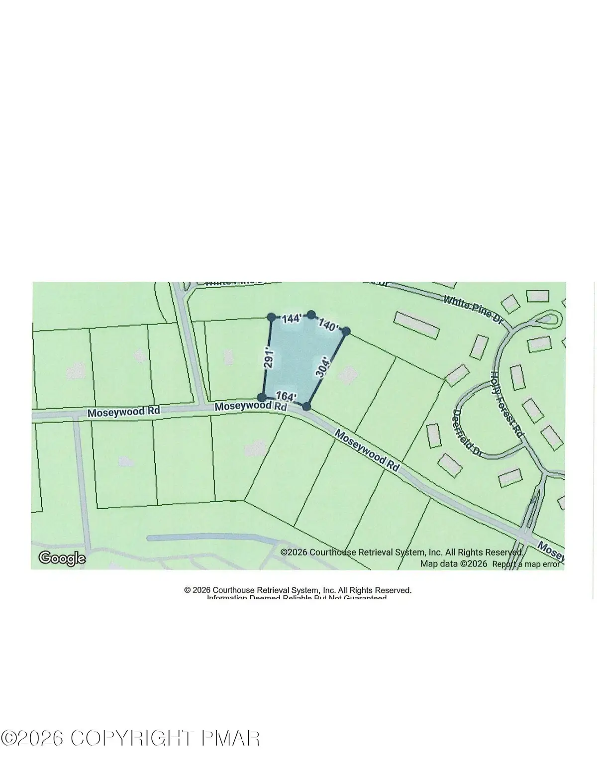
391 Moseywood Road, Lake Harmony, PA 18624
Local realty services provided by:ERA One Source Realty
391 Moseywood Road,Lake Harmony, PA 18624
$150,000
- 1.78 Acres
- Lots / Land
- Active
Listed by: maria soricelli
Office: century 21 select group - lake harmony
MLS#:PM-139647
Source:PA_PMAR
Price summary
- Price:$150,000
About this home
Come build your own dream private mountain retreat on 1.78 buildable acres in beautiful Lake Harmony in the Split Rock community . The lots on Moseywood all afford their neighbors privacy There is a beach , boating, water skiing, ,Jack Frost Ski, Big Boulder ski, 2 golf courses. sports park ,movie theatre, a water park all in the same community .Golf carts allowed in the Split Rock. Several restaurants in Lake Harmony all minutes from the lot. Pocono raceway, white water rafting , atv park are 15 , 20 minutes away-- So much to do for everyone.- All this 2 hours form NYC and Philadelphia.
There is a expired septic permit available. . Well needed. Call today for documatation.
Contact an agent
Home facts
- Listing ID #:PM-139647
- Added:55 day(s) ago
- Updated:May 14, 2026 at 02:38 PM
Structure and exterior
- Lot area:1.78 Acres
Utilities
- Water:Well
- Sewer:Septic Needed
Finances and disclosures
- Price:$150,000
- Tax amount:$1,442
New listings near 391 Moseywood Road
- New
$375,000Active3 beds 3 baths1,249 sq. ft.79 Laurelwoods Drive, Lake Harmony, PA 18624
MLS# PM-141299Listed by: REALTY EXECUTIVES - STROUDSBURG - New
$95,000Active0.92 AcresF40 Kent Clarke Road, Lake Harmony, PA 18624
MLS# PM-141302Listed by: RE/MAX CENTRAL - ALLENTOWN - New
$355,000Active3 beds 2 baths1,390 sq. ft.Address Withheld By Seller, Lake Harmony, PA 18624
MLS# PW261356Listed by: LAKE HOMES REALTY, LLC - New
$1,125,000Active5 beds 7 baths4,408 sq. ft.18 Hazlewood, LAKE HARMONY, PA 18624
MLS# PACC2007604Listed by: POCONO AREA REALTY BENZ GROUP - New
$1,125,000Active5 beds 7 baths4,468 sq. ft.18 Hazelwood Drive, Lake Harmony, PA 18624
MLS# PM-141117Listed by: POCONO AREA REALTY BENZ GROUP, LLC - New
$579,000Active3 beds 2 baths1,425 sq. ft.29 Lakeview Drive, Lake Harmony, PA 18624
MLS# PM-141089Listed by: SMART WAY AMERICA REALTY - New
$935,000Active6 beds 4 baths2,730 sq. ft.87 Pineknoll Drive, Lake Harmony, PA 18624
MLS# 26-2042Listed by: AGGRESSIVE REALTY & RENTALS, LLC - New
$450,000Active3 beds 2 baths1,605 sq. ft.15 Hazard Run Rd, LAKE HARMONY, PA 18624
MLS# PACC2007592Listed by: KELLER WILLIAMS REAL ESTATE TRI-COUNTY
$525,000Active4 beds 4 baths2,209 sq. ft.9 Wildbriar Court, Lake Harmony, PA 18624
MLS# PM-140915Listed by: WEICHERT REALTORS ACCLAIM - TANNERSVILLE
$2,999,000Active9 beds 5 baths4,080 sq. ft.32 S Lake Drive, Lake Harmony, PA 18624
MLS# PM-140879Listed by: EXP REALTY, LLC - PHILADELPHIA