Carretera 2, Km 3.1, Bayamon, PR 00961

Local realty services provided by:Tomlin St Cyr Real Estate Services ERA Powered
Carretera 2, Km 3.1,Bayamon, PR 00961
$17,000,000
  • 26.97 Acres
  • Lots / Land
  • Active
Listed by: meilyn guzman ensenat
Office: meilyn guzman ensenat
MLS#:PR9115671
Source:MFRMLS

Price summary

  • Price:$17,000,000

About this home

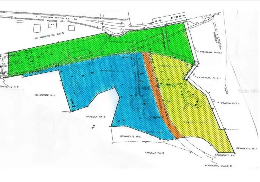
This exceptional industrial lot is located in Bayamón’s prime industrial district, strategically positioned near major ports and key distributors including Goya and Puma Energy, among others. With Heavy Industrial (I-P) zoning and a total registered area of 114,223.77 square meters (28.19 acres) across four segregated parcels, the site provides extraordinary flexibility for large-scale development. Its strategic location, connectivity, and ample space make it ideal for distribution centers, logistics hubs, manufacturing facilities, or industrial warehouses seeking proximity to San Juan’s metropolitan market. Highlights: • Prime Bayamón industrial location near major distributors and infrastructure • Heavy Industrial (I-P) zoning • Total area: 114,223.77 m² (28.19 acres) • Subdivided into 4 registered parcels • Ideal for logistics, warehousing, or manufacturing projects • $148.83 a square meter

Contact an agent

contact an agent

Yes, I would like more information. Please use and/or share my information with an ERA®  affiliated agent to contact me about my real estate needs. By clicking Send message, I request to be contacted by phone or text message and consent to being contacted by automated means. I understand that my consent to receive calls or texts is not a condition of purchasing any property, goods, or services. Alternatively, I understand that I can access real estate services by email or I can contact the agent myself.

If an ERA®  affiliated agent is not available in the area where I need assistance, I agree to be contacted by a real estate agent affiliated with another brand owned or licensed by Anywhere Real Estate (BHGRE® , CENTURY 21® , Coldwell Banker® , Corcoran® , Sotheby's International Realty® ).
 I acknowledge that I have read and agree to theTerms of useandPrivacy notice

Home facts

  • Listing ID #:PR9115671
  • Added:178 day(s) ago
  • Updated:April 07, 2026 at 12:33 PM

Structure and exterior

  • Lot area:26.97 Acres
  • Levels:1 Story

Utilities

  • Water:Water Available
  • Sewer:Public Sewer, Sewer Available

Finances and disclosures

  • Price:$17,000,000

Features and amenities

  • Amenities:Electricity Available
  • Pool features:Public Pool
MLS LogoThe information being provided by Stellar Mls is for the consumer's personal, non-commercial use and may not be used for any purpose other than to identify prospective properties consumer may be interested in purchasing. Any information relating to real estate for sale referenced on this web site comes from the Internet Data Exchange (IDX) program of the Stellar Mls. Tomlin St Cyr Real Estate Services ERA Powered is not a Multiple Listing Service (MLS), nor does it offer MLS access. This website is a service of Tomlin St Cyr Real Estate Services ERA Powered, a broker participant of Stellar Mls. This web site may reference real estate listing(s) held by a brokerage firm other than the broker and/or agent who owns this web site. The accuracy of all information, regardless of source, including but not limited to open house information, square footages and lot sizes, is deemed reliable but not guaranteed and should be personally verified through personal inspection by and/or with the appropriate professionals. The data contained herein is copyrighted by Stellar Mls and is protected by all applicable copyright laws. Any unauthorized dissemination of this information is in violation of copyright laws and is strictly prohibited. Properties in listings may have been sold or may no longer be available. Copyright 2026 Stellar Mls. All rights reserved.