0 Villa Drive, North Providence, RI 02911
Local realty services provided by:ERA Empire Real Estate
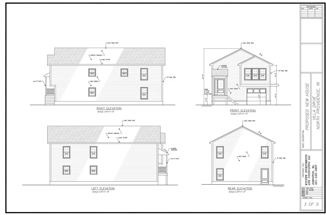
0 Villa Drive,North Providence, RI 02911
$175,000
- 0.07 Acres
- Lots / Land
- Active
Listed by: kyle seyboth
Office: century 21 limitless
MLS#:1400421
Source:RI_STATEWIDE
Price summary
- Price:$175,000
About this home
This vacant lot in North Providence offers over 3,000 sq ft of opportunity in an ideal and convenient location. With septic and building plans already in hand, this parcel is primed for development and provides a strong head start for your future home project. Zoned for single-family use, the lot also carries the potential for an ADU, offering added flexibility and value for the right buyer. Final development is subject to city approval of existing plans. Whether you're looking to build a primary residence, investment property, or multi-use living arrangement, this lot delivers exceptional promise. Situated near local amenities, major routes, and area conveniences, this is a rare chance to create a custom home in a desirable community. An amazing opportunity for builders, homeowners, or investors seeking a manageable, well-located project with significant upside.
Contact an agent
Home facts
- Listing ID #:1400421
- Added:182 day(s) ago
- Updated:May 21, 2026 at 01:01 AM
Structure and exterior
- Lot area:0.07 Acres
- Lot Features:Level
Utilities
- Water:Private
Finances and disclosures
- Price:$175,000
- Tax amount:$211 (2025)
New listings near 0 Villa Drive
- Open Thu, 5:30 to 6:30pmNew
$349,999Active2 beds 2 baths1,191 sq. ft.58 Needle Grove Point #A, North Providence, RI 02904
MLS# 1412853Listed by: RESIDENTIAL PROPERTIES LTD. - Open Sat, 2:30 to 3:30pmNew
$410,000Active3 beds 2 baths1,470 sq. ft.1002 Charles Street, North Providence, RI 02904
MLS# 1413058Listed by: MY DREAM HOME REALTY
$467,000Pending3 beds 2 baths2,250 sq. ft.1368 Charles Street, North Providence, RI 02904
MLS# 1413032Listed by: COMPASS- Open Sat, 10:30am to 12pmNew
$629,000Active4 beds 3 baths2,342 sq. ft.7 Robins Way, North Providence, RI 02904
MLS# 1412125Listed by: WESTCOTT PROPERTIES - Open Sun, 12 to 1pmNew
$489,900Active3 beds 1 baths1,788 sq. ft.25 Pensaukee Ave, North Providence, RI 02911
MLS# 73520931Listed by: Keller Williams South Watuppa - New
$557,900Active5 beds 2 baths3,340 sq. ft.1111 Charles Street, North Providence, RI 02904
MLS# 1412947Listed by: RE/MAX PROPERTIES - Open Fri, 5 to 6:30pmNew
$372,000Active2 beds 2 baths1,211 sq. ft.38 Stone Trail #C, North Providence, RI 02904
MLS# 1412828Listed by: JACK CONWAY & CO INC. - Open Sat, 11am to 12:30pmNew
$549,900Active3 beds 3 baths2,460 sq. ft.9 Tarklin Street, North Providence, RI 02904
MLS# 1412197Listed by: BHHS NEW ENGLAND PROPERTIES - New
$329,900Active2 beds 2 baths1,239 sq. ft.375 Angell Road #E, North Providence, RI 02904
MLS# 1410414Listed by: GREENWICH BAY BROKERS - New
$410,000Active3 beds 1 baths1,340 sq. ft.9 Lookout Avenue, North Providence, RI 02911
MLS# 1412301Listed by: REDFIN CORPORATION