179-183 Fishburne Street, Charleston, SC 29403
Local realty services provided by:ERA Greater North Properties
179-183 Fishburne Street,Charleston, SC 29403
$1,550,000
- 0.21 Acres
- Lots / Land
- Active
Listed by: luiz yamashita, lucas beni
Office: dunes commercial properties
MLS#:25031828
Source:MI_NGLRMLS
Price summary
- Price:$1,550,000
About this home
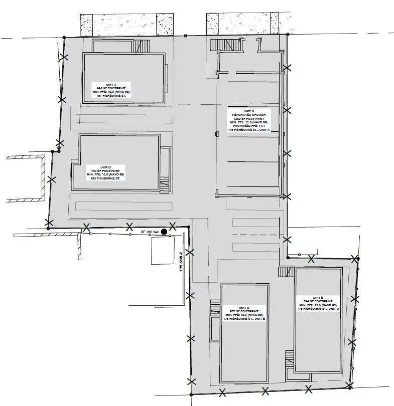
*** Permits are approved and ready to be pulled ***An exceptional permit-ready development opportunity in the heart of Charleston's Westside. 179-183 Fishburne Street is approved for the construction of five new homes, offering a rare chance to deliver a boutique residential project downtown without the long entitlement timeline. The permits are approved and ready to be pulled with the city of Charleston, allowing for a faster path to construction.The development plan includes the conversion of an existing church into a single-family home, creating a distinctive architectural centerpiece for the site. A small structure behind the church is approved for demolition, opening the parcel for efficient site circulation and maximizing buildable area. The project also provides 10 off-strepermits are approved and ready to be pulled
An exceptional permit-ready development opportunity in the heart of Charleston's Westside. 179-183 Fishburne Street is approved for the construction of five new homes, offering a rare chance to deliver a boutique residential project downtown without the long entitlement timeline. The permits are approved and ready to be pulled with the city of Charleston, allowing for a faster path to construction.
The development plan includes the conversion of an existing church into a single-family home, creating a distinctive architectural centerpiece for the site. A small structure behind the church is approved for demolition, opening the parcel for efficient site circulation and maximizing buildable area. The project also provides 10 off-street parking spaces, a significant advantage in this highly walkable downtown neighborhood.
This property also qualifies for the South Carolina Abandoned Building Tax Credit, providing the buyer with substantial potential tax savings and enhancing the overall feasibility and return of the redevelopment.
Ideally located within Charleston's thriving Westside district, the property benefits from immediate proximity to the WestEdge Innovation District, Harmon Field, The Citadel, Hampton Park, and the peninsula's expanding medical district. Residents will enjoy close access to local favorites such as Daps Breakfast & Imbibe, Rodney Scott's BBQ, and the shops and cafes along Spring and Fishburne Streets. Numerous parks, playgrounds, athletic fields, and walking paths sit just steps away, contributing to the strong lifestyle appeal of the area.
With approved plans, strong neighborhood momentum, meaningful incentives, and lasting demand for new residential product downtown, this property stands out as a rare and highly desirable infill development opportunity.
Contact an agent
Home facts
- Listing ID #:25031828
- Updated:February 10, 2026 at 04:59 PM
Structure and exterior
- Lot area:0.21 Acres
Schools
- High school:Burke
- Middle school:Simmons Pinckney
- Elementary school:James Simons
Finances and disclosures
- Price:$1,550,000
New listings near 179-183 Fishburne Street
- New
$2,480,000Active4 beds 4 baths2,594 sq. ft.38 Barre Street, Charleston, SC 29401
MLS# 26003966Listed by: THE CASSINA GROUP - New
$1,029,000Active3 beds 3 baths2,382 sq. ft.124 Fairbanks Drive, Daniel Island, SC 29492
MLS# 26003946Listed by: ATLANTIC PROPERTIES OF THE LOWCOUNTRY - New
$1,400,000Active8 beds -- baths3,479 sq. ft.180 Line Street, Charleston, SC 29403
MLS# 26003954Listed by: HANDSOME PROPERTIES, INC. - New
$1,199,000Active3 beds 3 baths3,233 sq. ft.2208 Weepoolow Trail, Charleston, SC 29407
MLS# 26003929Listed by: AGENTOWNED REALTY CHARLESTON GROUP - New
$399,000Active4 beds 3 baths2,315 sq. ft.5508 Jasons Cove, Charleston, SC 29418
MLS# 26003901Listed by: JPAR MAGNOLIA GROUP - Open Sat, 11am to 1pmNew
$750,000Active4 beds 3 baths2,275 sq. ft.1011 Mamie Street, Charleston, SC 29407
MLS# 26003888Listed by: CAROLINA ONE REAL ESTATE - Open Sat, 1 to 3pmNew
$5,495,000Active6 beds 7 baths4,327 sq. ft.109 Rutledge Avenue, Charleston, SC 29401
MLS# 26003880Listed by: DANIEL RAVENEL SOTHEBY'S INTERNATIONAL REALTY - New
$525,000Active3 beds 3 baths1,678 sq. ft.1764 Hickory Knoll Way, Johns Island, SC 29455
MLS# 26003885Listed by: SCSOLD LLC - Open Sat, 11am to 1pmNew
$729,000Active4 beds 3 baths2,000 sq. ft.509 Cecilia Cove Drive, Charleston, SC 29412
MLS# 26003874Listed by: CAROLINA ONE REAL ESTATE - Open Sat, 10am to 12pmNew
$1,000,000Active2 beds 3 baths1,270 sq. ft.250 Coming Street, Charleston, SC 29403
MLS# 26003597Listed by: KELLER WILLIAMS REALTY CHARLESTON