20 Lucile St, Nashville, TN 37207
Local realty services provided by:ERA Chappell & Associates Realty & Rental
20 Lucile St,Nashville, TN 37207
$2,190,000
- 0.62 Acres
- Lots / Land
- Active
Listed by: kunal patel, brian truman
Office: svn accel commercial real estate
MLS#:3093281
Source:NASHVILLE
Price summary
- Price:$2,190,000
About this home
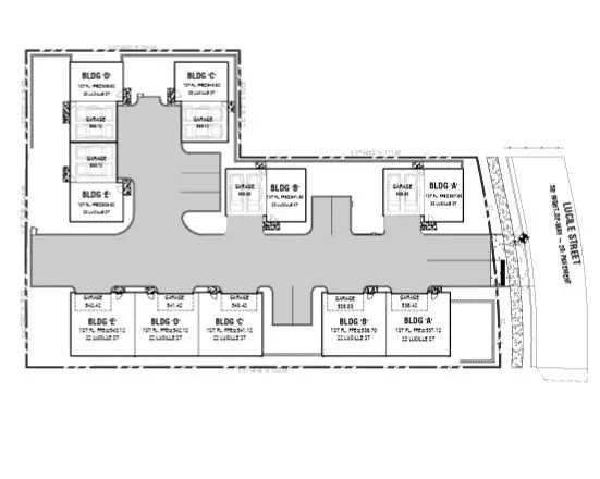
SVN | Accel Commercial Real Estate is pleased to present 20–22 Lucile Street, a boutique 10-unit luxury residential development opportunity in a premier Nashville location with direct Downtown skyline views.
This elevated site offers a rare opportunity to deliver a design-forward, high-end product in an established neighborhood. The planned 10-unit project is ideally positioned to capture strong buyer demand for luxury residences that combine skyline views, modern architecture, and immediate access to Nashville’s core employment and entertainment districts.
Located just minutes from Downtown, Midtown, and The Gulch, the property benefits from exceptional connectivity while maintaining a private, residential setting. Surrounding high-end infill and continued neighborhood appreciation support premium pricing and long-term value creation.
This offering is well suited for developers or investors seeking a small-scale, high-margin luxury project in one of Nashville’s most desirable urban submarkets. 20–22 Lucile Street represents a rare opportunity to execute a differentiated luxury development with views, proximity, and limited competitive supply.
10 unit luxury development opportunity
Prime location in thriving Nashville area
Downtown Nashville skyline views
Civil work and preliminary architectural complete
Zoned RM20A
Seller is working on STR eligibility approval
Contact an agent
Home facts
- Listing ID #:3093281
- Added:2 day(s) ago
- Updated:January 17, 2026 at 04:56 PM
Structure and exterior
- Lot area:0.62 Acres
Schools
- High school:Maplewood Comp High School
- Middle school:Jere Baxter Middle
- Elementary school:Shwab Elementary
Finances and disclosures
- Price:$2,190,000
- Tax amount:$911
New listings near 20 Lucile St
- New
$389,000Active1 beds 1 baths672 sq. ft.704 Taylor St #201, Nashville, TN 37208
MLS# 3098579Listed by: FRIDRICH & CLARK REALTY - New
$1,175,000Active3 beds 3 baths1,552 sq. ft.3000 Poston Ave #503, Nashville, TN 37203
MLS# 3098584Listed by: ONWARD REAL ESTATE - New
$750,000Active3 beds 3 baths2,359 sq. ft.537A Croley Dr, Nashville, TN 37209
MLS# 3098550Listed by: ONWARD REAL ESTATE - New
$3,475,000Active4 beds 6 baths7,566 sq. ft.140 Brook Hollow Rd, Nashville, TN 37205
MLS# 3098538Listed by: FRENCH KING FINE PROPERTIES - Open Sun, 2 to 4pmNew
$1,981,585Active4 beds 5 baths4,453 sq. ft.29 Washington Park, Nashville, TN 37205
MLS# 3068617Listed by: COMPASS TENNESSEE, LLC - Open Sun, 2 to 4pmNew
$399,999Active1 beds 1 baths663 sq. ft.1350 Rosa L Parks Blvd #233, Nashville, TN 37208
MLS# 3079274Listed by: COLDWELL BANKER SOUTHERN REALTY - Open Sat, 2 to 4pmNew
$560,000Active3 beds 3 baths1,652 sq. ft.801 21st Ave N, Nashville, TN 37208
MLS# 3079545Listed by: ONWARD REAL ESTATE - Open Sat, 2 to 4pmNew
$385,000Active2 beds 3 baths1,559 sq. ft.7246 Althorp Way, Nashville, TN 37211
MLS# 3093485Listed by: ONWARD REAL ESTATE - New
$299,000Active3 beds 2 baths1,075 sq. ft.3285 Rainwood Dr, Nashville, TN 37207
MLS# 3093631Listed by: THE ASHTON REAL ESTATE GROUP OF RE/MAX ADVANTAGE - Open Sat, 2 to 4pmNew
$794,500Active3 beds 3 baths2,338 sq. ft.3906 Oxford St, Nashville, TN 37216
MLS# 3093655Listed by: HOUSE HAVEN REALTY