3233 Vaquero Lane, Celina, TX 75009
Local realty services provided by:ERA Courtyard Real Estate
Listed by: ccb realty stanley972-410-5701
Office: american legend homes
MLS#:21161613
Source:GDAR
Price summary
- Price:$550,000
- Price per sq. ft.:$204.38
- Monthly HOA dues:$150
About this home
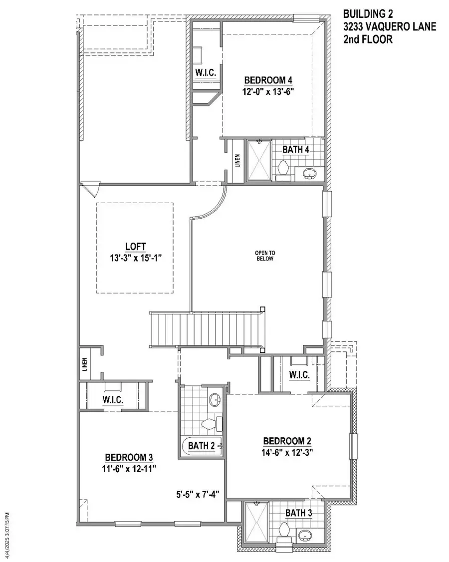
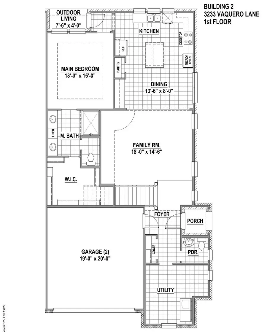
Spacious 2-story plan is situated on a North-facing lot and features the main bedroom suite plus a powder bath on the first floor and 3 bedrooms, 3 full baths and a game room upstairs. The exterior boasts dramatic curb appeal with a gorgeous brick, stone and stucco elevation. Inside you'll find soaring ceilings in the family room with upper windows and loft overlook, plus an oversized utility room with sink downstairs. The chef's kitchen is light and bright with the sink and windows on an outer wall allowing plenty of natural light in. The entrance to the main bedroom suite is tucked away at the back of the home for maximum privacy. Upstairs are 3 spacious secondary bedrooms, all with walk-in closets. Two of the three secondary bedrooms offer private walk-in shower baths, perfect for guests or teens! Amenities include popular light colored prefinished wood floors in main living areas downstairs, wood tread staircase with painted risers, upgraded light package, black metal stair balusters, stylish quartz kitchen and bathroom countertops, upgraded carpet and pad and much more....
Contact an agent
Home facts
- Year built:2026
- Listing ID #:21161613
- Added:49 day(s) ago
- Updated:March 13, 2026 at 11:47 AM
Rooms and interior
- Bedrooms:4
- Total bathrooms:5
- Full bathrooms:4
- Half bathrooms:1
- Flooring:Carpet, Ceramic Tile, Hardwood, Wood
- Kitchen Description:Dishwasher, Disposal, Electric Oven, Gas Cooktop, Microwave
- Living area:2,691 sq. ft.
Heating and cooling
- Cooling:Attic Fan, Ceiling Fans, Central Air, Electric
- Heating:Central, Natural Gas
- Central air:Yes
Structure and exterior
- Roof:Composition
- Year built:2026
- Building area:2,691 sq. ft.
- Lot area:0.09 Acres
- Lot Features:Interior Lot, Landscaped, Sprinkler System, Subdivision
- Architectural Style:Traditional
- Construction Materials:Brick, Stone
- Foundation Description:Slab
- Levels:2 Story
Schools
- High school:Walnut Grove
- Middle school:Lorene Rogers
- Elementary school:Sam Johnson
Finances and disclosures
- Price:$550,000
- Price per sq. ft.:$204.38
Features and amenities
- Appliances:Dishwasher, Disposal, Electric Oven, Gas Cooktop, Microwave, Tankless Water Heater
- Amenities:Carbon Monoxide Detectors, Smoke Detectors
Parking
- Garage:Yes
- Garage spaces:2
New listings near 3233 Vaquero Lane
- New
$995,000Active4 beds 4 baths3,395 sq. ft.3926 Harrisburg Lane, Celina, TX 75009
MLS# 21207186Listed by: RE/MAX FOUR CORNERS - New
$395,000Active4 beds 2 baths1,941 sq. ft.2820 Saddlebred Trail, Celina, TX 75009
MLS# 21206876Listed by: EBBY HALLIDAY, REALTORS - Open Sun, 2 to 4pmNew
$575,000Active4 beds 3 baths2,827 sq. ft.4324 Coffee Mill Road, Celina, TX 75078
MLS# 21197817Listed by: KELLER WILLIAMS NO. COLLIN CTY - Open Sun, 3 to 5pmNew
$650,000Active4 beds 4 baths2,868 sq. ft.917 Overton Avenue, Celina, TX 75009
MLS# 21204636Listed by: FUNK REALTY GROUP, LLC - New
$25,000,000Active99.62 Acres10388 County Road 106, Celina, TX 75009
MLS# 21206211Listed by: KELLER WILLIAMS FRISCO STARS - New
$746,900Active4 beds 4 baths2,574 sq. ft.4424 Lamplights Drive, Celina, TX 75078
MLS# 21206699Listed by: PERRY HOMES REALTY LLC - New
$1,399,900Active5 beds 6 baths5,186 sq. ft.185 Shawnee Trail, Celina, TX 75009
MLS# 21204006Listed by: COMPASS RE TEXAS, LLC - New
$579,000Active5 beds 3 baths2,501 sq. ft.532 Remington Road, Celina, TX 75009
MLS# 21206325Listed by: EXP REALTY LLC - New
$548,090Active3 beds 3 baths3,103 sq. ft.14563 Curie Court, Pilot Point, TX 75009
MLS# 21206413Listed by: WILLIAM ROBERDS - New
$534,900Active5 beds 3 baths2,795 sq. ft.2008 Rhea Court, Celina, TX 75009
MLS# 21189951Listed by: EBBY HALLIDAY REALTORS