0 Green River Drive, Houston, TX 77028

Local realty services provided by:American Real Estate ERA Powered
0 Green River Drive,Houston, TX 77028
$45,000
  • 0.15 Acres
  • Lots / Land
  • Active
Listed by: jennifer blanchard
Office: world wide realty,llc832-877-2740
MLS#:90769230
Source:HARMLS

Price summary

  • Price:$45,000

About this home

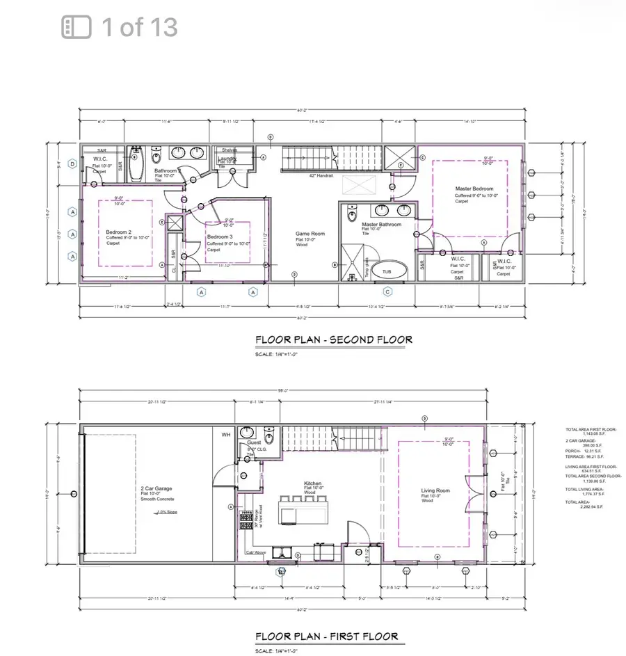
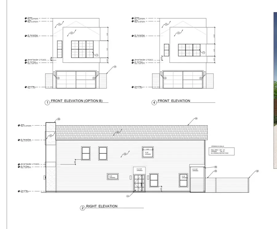
Calling all developers! Four cleared, ready-to-build lots with permitted blueprints and shovel-ready. Each lot priced at 60,000. Identical plans to 5 houses on 7812 Denton St: 3 bedrooms, 2 baths, game room upstairs, 2-car garage. Perfect opportunity to bring your vision to life in this sought-after location. We also offer build on your lot service.

Contact an agent

contact an agent

Yes, I would like more information. Please use and/or share my information with an ERA®  affiliated agent to contact me about my real estate needs. By clicking Send message, I request to be contacted by phone or text message and consent to being contacted by automated means. I understand that my consent to receive calls or texts is not a condition of purchasing any property, goods, or services. Alternatively, I understand that I can access real estate services by email or I can contact the agent myself.

If an ERA®  affiliated agent is not available in the area where I need assistance, I agree to be contacted by a real estate agent affiliated with another brand owned or licensed by Anywhere Real Estate (BHGRE® , CENTURY 21® , Coldwell Banker® , Corcoran® , Sotheby's International Realty® ).
 I acknowledge that I have read and agree to theTerms of useandPrivacy notice

Home facts

  • Listing ID #:90769230
  • Updated:May 17, 2026 at 11:54 AM

Structure and exterior

  • Lot area:0.15 Acres
  • Lot Features:Cleared, Subdivision

Schools

  • High school:NORTH FOREST HIGH SCHOOL
  • Middle school:FOREST BROOK MIDDLE SCHOOL
  • Elementary school:HILLIARD ELEMENTARY SCHOOL

Utilities

  • Sewer:Public Sewer

Finances and disclosures

  • Price:$45,000
  • Tax amount:$1,372 (2025)
Copyright 2026, Houston Realtors Information Service, Inc. All information provided is deemed reliable but is not guaranteed and should be independently verified. IDX information is provided exclusively for consumers' personal, non-commercial use, it may not be used for any purpose other than to identify prospective properties consumers may be interested in purchasing, and the data is deemed reliable but is not guaranteed accurate by the MLS.