205 Fleetway Drive, Hunters Creek Village, TX 77024
Local realty services provided by:American Real Estate ERA Powered
205 Fleetway Drive,Hunters Creek Village, TX 77024
$6,150,500
- 6 Beds
- 8 Baths
- 8,481 sq. ft.
- Single family
- Active
Listed by: claudette callebs
Office: wanda taylor properties
MLS#:71608188
Source:HARMLS
Price summary
- Price:$6,150,500
- Price per sq. ft.:$725.21
About this home
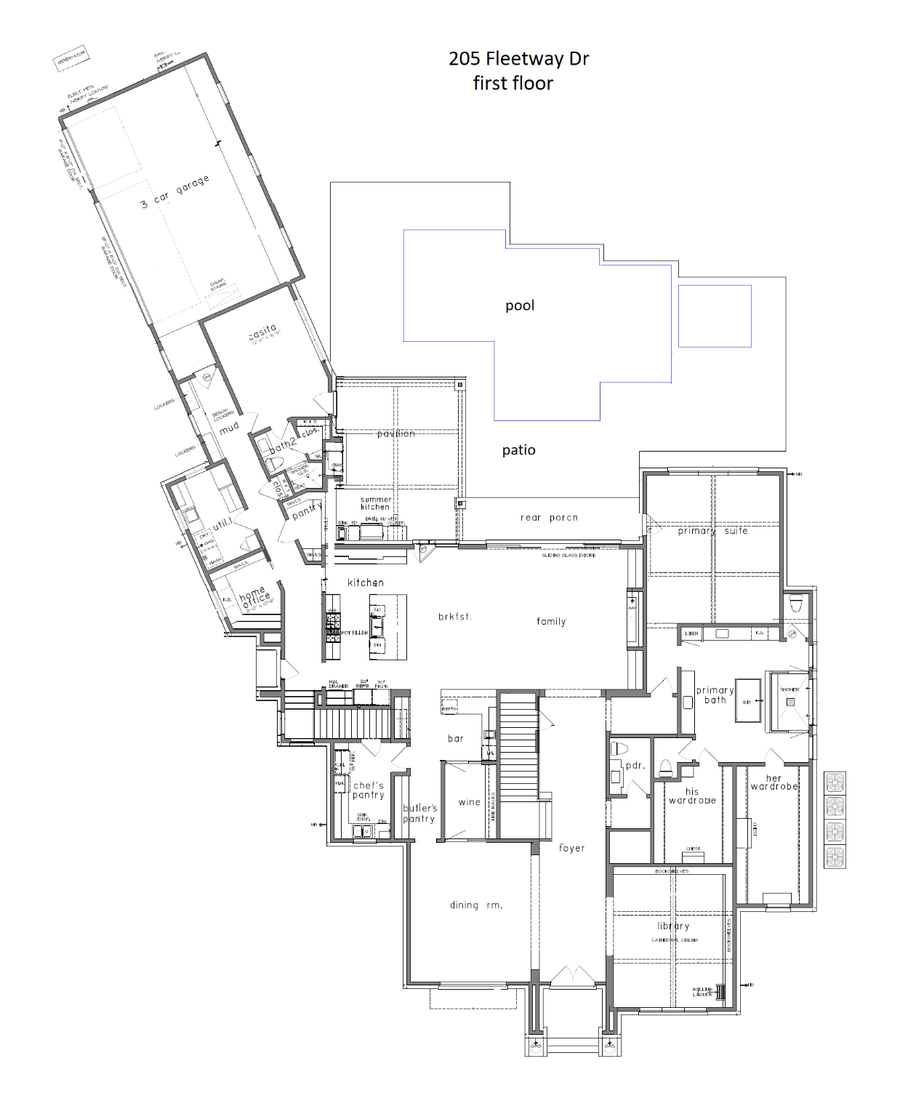
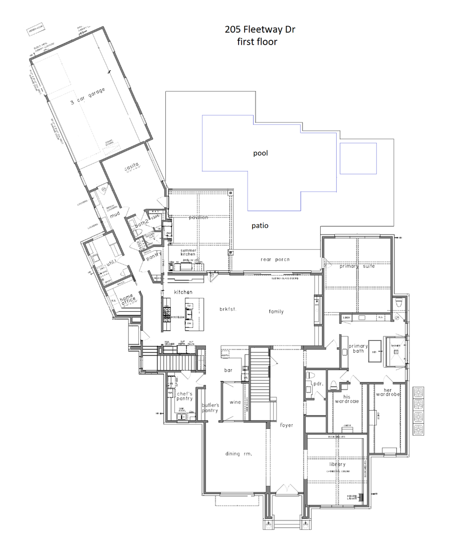
New construction in Hunters Creek Village. The home has 6 beds/6 full baths/2 half. A guest casita on the first floor with 8481 square feet of fabulous living space. Entering the spacious foyer, the library is on the right, dining on the left with easy access to the butler's pantry, prep kitchen, and wine room. Primary bedroom on the first floor as well as a secondary office, spacious laundry, and mud room. Secondary laundry upstairs and half bath. Automatic driveway gate leads to your oversized 3 car garage. Four bedrooms with private baths on the second floor. Wired for whole house Control system including security cameras with complete view of entire property. You will be wowed by this floor plan/flow on a 25,000 square foot lot complete with pool, patio, covered porch, pavilion, summer kitchen, whole home generator, and sprinkler system. Custom steel exterior doors, brick exterior. Soffit exterior lighting at front and side for beautiful nighttime curb appeal.
Contact an agent
Home facts
- Year built:2025
- Listing ID #:71608188
- Updated:November 19, 2025 at 12:38 PM
Rooms and interior
- Bedrooms:6
- Total bathrooms:8
- Full bathrooms:6
- Half bathrooms:2
- Living area:8,481 sq. ft.
Heating and cooling
- Cooling:Central Air, Electric
- Heating:Central, Gas
Structure and exterior
- Roof:Composition
- Year built:2025
- Building area:8,481 sq. ft.
- Lot area:0.57 Acres
Schools
- High school:MEMORIAL HIGH SCHOOL (SPRING BRANCH)
- Middle school:SPRING BRANCH MIDDLE SCHOOL (SPRING BRANCH)
- Elementary school:HUNTERS CREEK ELEMENTARY SCHOOL
Utilities
- Sewer:Public Sewer
Finances and disclosures
- Price:$6,150,500
- Price per sq. ft.:$725.21
- Tax amount:$24,579 (2024)
New listings near 205 Fleetway Drive
- New
$3,395,000Active5 beds 5 baths4,485 sq. ft.10606 Twelve Oaks Drive, Houston, TX 77024
MLS# 16674888Listed by: COMPASS RE TEXAS, LLC - HOUSTON - Open Thu, 12 to 2pmNew
$2,695,000Active4 beds 4 baths4,816 sq. ft.10243 Pineland Drive, Houston, TX 77024
MLS# 25004711Listed by: COMPASS RE TEXAS, LLC - HOUSTON - New
$4,195,000Active5 beds 6 baths5,928 sq. ft.7 Hedwig Shadows Drive, Houston, TX 77024
MLS# 19520904Listed by: COMPASS RE TEXAS, LLC - HOUSTON
$3,600,000Pending5 beds 6 baths7,599 sq. ft.10911 Kemwood Drive, Hunters Creek Village, TX 77024
MLS# 59568993Listed by: GREENWOOD KING PROPERTIES - VOSS OFFICE
$3,350,000Pending5 beds 8 baths6,702 sq. ft.826 Flint River Drive, Houston, TX 77024
MLS# 27344478Listed by: COMPASS RE TEXAS, LLC - MEMORIAL
$3,699,000Active5 beds 7 baths6,746 sq. ft.918 Huntington Cove, Houston, TX 77063
MLS# 82140448Listed by: DOUGLAS ELLIMAN REAL ESTATE
$3,895,000Pending5 beds 4 baths4,706 sq. ft.10610 Tarrington Drive, Hunters Creek Village, TX 77024
MLS# 19236554Listed by: LISTINGRESULTS.COM
$1,780,000Active4 beds 3 baths2,668 sq. ft.10806 Bridlewood Street, Houston, TX 77024
MLS# 84499000Listed by: DEL MONTE REALTY
$6,195,000Active7 beds 9 baths9,441 sq. ft.811 Creek Wood Way, Houston, TX 77024
MLS# 57815791Listed by: COMPASS RE TEXAS, LLC - HOUSTON
$2,295,000Active5 beds 4 baths3,745 sq. ft.11010 Hedwig Green Street, Hunters Creek Village, TX 77024
MLS# 76675672Listed by: COMPASS RE TEXAS, LLC - MEMORIAL