14 Castellon Drive, Westlake, TX 76262
Local realty services provided by:ERA Myers & Myers Realty
Listed by: rosie smelcer512-975-5333
Office: compass re texas, llc.
MLS#:21113563
Source:GDAR
Price summary
- Price:$550,000
- Monthly HOA dues:$183.33
About this home
Build your dream custom home in Entrada at Westlake, a premier, walkable community inspired by the charming villages of Catalonia, Spain. This stunning homesite offers endless possibilities to design your custom dream home with any approved builder. Enjoy a vibrant lifestyle with restaurants, shopping, entertainment, offices, a chapel, and hotels just steps from your front door. Spanning 85 picturesque acres, Entrada at Westlake seamlessly blends modern convenience with old-world charm. Choose from the award-winning Westlake Academy or the highly acclaimed Carroll ISD for exceptional education options. This prime location presents a unique opportunity to live, work, and indulge in one of the most sought-after communities in the country.
Contact an agent
Home facts
- Listing ID #:21113563
- Added:354 day(s) ago
- Updated:November 15, 2025 at 09:49 PM
Structure and exterior
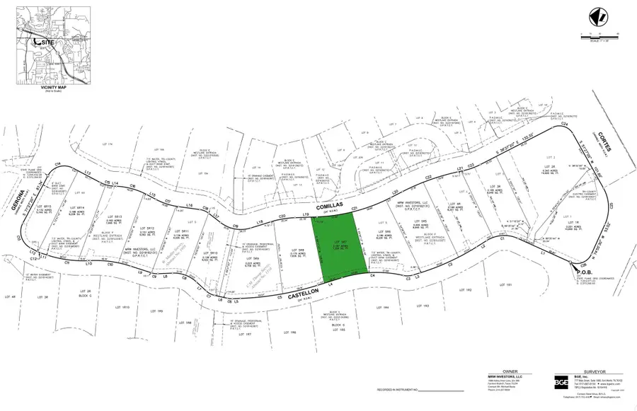
- Lot area:0.17 Acres
Schools
- High school:Carroll
- Middle school:Carroll
- Elementary school:Walnut Grove
Finances and disclosures
- Price:$550,000
- Tax amount:$7,198
New listings near 14 Castellon Drive
- New
$9,450,000Active4 beds 7 baths8,234 sq. ft.1110 Post Oak Place, Westlake, TX 76262
MLS# 21062024Listed by: EBBY HALLIDAY, REALTORS
$2,990,000Active4 beds 6 baths4,287 sq. ft.17 Catalonia Drive, Westlake, TX 76262
MLS# 21072065Listed by: FORT WORTH FOCUSED REAL ESTATE
$6,945,750Active5 beds 6 baths6,750 sq. ft.1847 Broken Bend Drive, Westlake, TX 76262
MLS# 21079219Listed by: COMPASS RE TEXAS, LLC
$5,995,000Active4 beds 7 baths6,490 sq. ft.1500 Wills Court, Westlake, TX 76262
MLS# 21057440Listed by: ALLIE BETH ALLMAN & ASSOCIATES
$5,975,000Active5 beds 6 baths6,186 sq. ft.1403 Fountain Grass Court, Westlake, TX 76262
MLS# 21060859Listed by: EBBY HALLIDAY, REALTORS
$4,650,000Active3 beds 6 baths5,590 sq. ft.2210 Cedar Elm Terrace, Westlake, TX 76262
MLS# 21067105Listed by: EBBY HALLIDAY, REALTORS
$4,745,000Active4 beds 5 baths4,148 sq. ft.2211 Cedar Elm Terrace, Westlake, TX 76262
MLS# 21079670Listed by: ALLIE BETH ALLMAN & ASSOCIATES
$1,895,000Active1 Acres2708 Serendipity Circle, Westlake, TX 76262
MLS# 21075755Listed by: SYNERGY REALTY- Open Sun, 2 to 4pm
$5,595,000Active4 beds 5 baths6,839 sq. ft.2600 Magnolia Circle, Westlake, TX 76262
MLS# 21076767Listed by: SYNERGY REALTY
$10,995,000Active6 beds 10 baths11,774 sq. ft.1121 Post Oak Place, Westlake, TX 76262
MLS# 21064954Listed by: SYNERGY REALTY