61 Sheffield, Brewster, MA 02631

Local realty services provided by:ERA M. Connie Laplante Real Estate
61 Sheffield,Brewster, MA 02631
$1,199,000
  • 3 Beds
  • 4 Baths
  • 2,396 sq. ft.
  • Single family
  • Active
Listed by: rebecca scala, rebecca scala
Office: william raveis real estate & homes services
MLS#:73477417
Source:MLSPIN

Price summary

  • Price:$1,199,000
  • Price per sq. ft.:$500.42

About this home

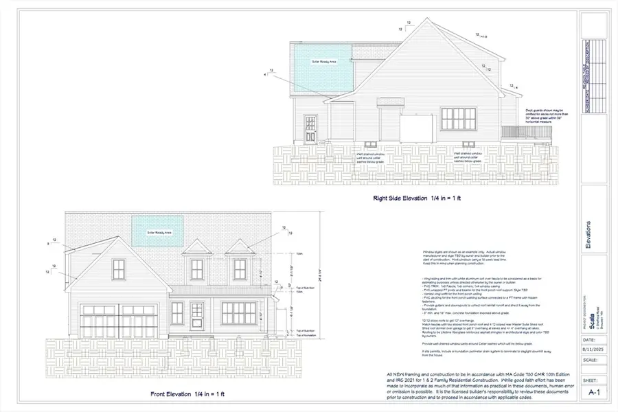
An exceptional opportunity to build your dream Cape house in the heart of Brewster. This new construction offering arrives with building permits already in hand and a thoughtfully designed plan featuring 3 bedrooms and 3.5 baths. Enjoy the rare flexibility to tailor the layout and finishes to suit your vision or pivot to a complete custom build. The current plans are perfect for a seasonal retreat or multi-generational getaway, offering both first and second-floor primary suite options alongside a spacious open floor plan designed for entertaining family and friends. Nestled in a peaceful, established neighborhood just moments from Captains Golf Course and the CC Rail Trail, this location offers the ideal balance of tranquility and convenience. Spend your days at Brewster’s world-class beaches or explore nearby Sesuit and Rock Harbors—all just a short drive away. Don’t just settle for any Cape house, build one that is perfect for you in one of the most sought-after towns on the Cape.

Contact an agent

contact an agent

Yes, I would like more information. Please use and/or share my information with an ERA®  affiliated agent to contact me about my real estate needs. By clicking Send message, I request to be contacted by phone or text message and consent to being contacted by automated means. I understand that my consent to receive calls or texts is not a condition of purchasing any property, goods, or services. Alternatively, I understand that I can access real estate services by email or I can contact the agent myself.

If an ERA®  affiliated agent is not available in the area where I need assistance, I agree to be contacted by a real estate agent affiliated with another brand owned or licensed by Anywhere Real Estate (BHGRE® , CENTURY 21® , Coldwell Banker® , Corcoran® , Sotheby's International Realty® ).
 I acknowledge that I have read and agree to theTerms of useandPrivacy notice

Home facts

  • Year built:2026
  • Listing ID #:73477417
  • Updated:March 11, 2026 at 10:53 AM

Rooms and interior

  • Bedrooms:3
  • Total bathrooms:4
  • Full bathrooms:3
  • Half bathrooms:1
  • Rooms Total:6
  • Dining Description:Wood
  • Kitchen Description:Cabinets - Upgraded, Flooring - Wood, Kitchen Island, Stainless Steel Appliances
  • Basement Description:Full
  • Living area:2,396 sq. ft.

Heating and cooling

  • Cooling:Central Air
  • Heating:Central
  • Central air:Yes

Structure and exterior

  • Roof:Shingle
  • Year built:2026
  • Building area:2,396 sq. ft.
  • Lot area:0.41 Acres
  • Lot Features:Cleared, Level
  • Architectural Style:Cape
  • Construction Materials:Frame
  • Exterior Features:Deck - Wood, Porch
  • Foundation Description:Concrete Perimeter

Utilities

  • Water:Public
  • Sewer:Private Sewer

Finances and disclosures

  • Price:$1,199,000
  • Price per sq. ft.:$500.42
  • Tax amount:$1,553 (2026)

Features and amenities

  • Laundry features:First Floor
  • Amenities:Gas Water Heater

Parking

  • Total parking spaces:4
  • Parking description:Attached, Off Street
  • Garage:Yes
  • Garage spaces:2
The property listing data and information, or the Images, set forth herein were provided to MLS Property Information Network, Inc. from third party sources, including sellers, lessors and public records, and were compiled by MLS Property Information Network, Inc. The property listing data and information, and the Images, are for the personal, non-commercial use of consumers having a good faith interest in purchasing or leasing listed properties of the type displayed to them and may not be used for any purpose other than to identify prospective properties which such consumers may have a good faith interest in purchasing or leasing. MLS Property Information Network, Inc. and its subscribers disclaim any and all representations and warranties as to the accuracy of the property listing data and information, or as to the accuracy of any of the Images, set forth herein.