10008 Carmelita Dr, Potomac, MD 20854
Local realty services provided by:ERA Reed Realty, Inc.
10008 Carmelita Dr,Potomac, MD 20854
$1,598,000
- 4 Beds
- 5 Baths
- 5,151 sq. ft.
- Single family
- Pending
Listed by: anne c killeen
Office: washington fine properties, llc.
MLS#:MDMC2222468
Source:BRIGHTMLS
Price summary
- Price:$1,598,000
- Price per sq. ft.:$310.23
About this home
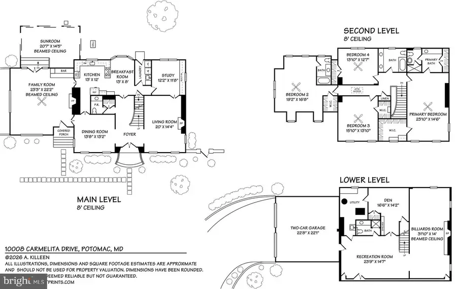
A significant price improvement signals a clear shift--this long-cherished, one family home is now truly ready to welcome its next Owner. This timeless center hall colonial with enduring charm and beautifully scaled spaces, offers the rare opportunity to bring your own vision to a home with exceptional bones located in coveted McAuley Park, just minutes from everything. This stately red brick colonial is gracefully sited on a gentle knoll with a commanding street presence. From the gracious center hall to the sunroom bathed in natural light, every space feels generous and full of possibility. The main level is comprised of a formal Living Room with a wood burning fireplace and floor-to-ceiling windows, a formal Dining Room for holiday parties, a private main level study with a wall of built-ins, a big Kitchen/breakfast area adjacent to the large, beamed Family Room with a wet bar and separate entrance. The Family Room also steps down to the Sunroom with three walls of glass. Upstairs is a huge Primary Suite with a very large walk-in closet, second closet and a Primary Bathroom. Two well proportioned bedrooms share the hall bath while the very spacious fourth bedroom has it's own en suite full bathroom. The Lower Level offers a great Recreation Room with a beamed ceiling and a wood burning fireplace, a billiards room, exercise room and a full bathroom plus access to the oversized two car garage. McAuley Park is one of those quietly desirable pockets ideally located just off River Road, minutes to Potomac Village while also close to I270/I495, the Beltway. Homes here have presence, and the setting feels settled and intentional, not transient. McAuley Park offers both privacy AND proximity. Local clubs like Congressional Country Club and Bethesda Country Club are just a few minutes away as well as local shopping, banking, and dining. It's convenient to the top rated public schools as well as many highly regarded private schools. Mc Auley Park is known for it's cohesive community, a great Halloween celebration and more! Make this your home today-and begin a new chapter filled with memories for years to come. Call to see it today! Note: Professional Photos will be uploaded next week....
Contact an agent
Home facts
- Year built:1968
- Listing ID #:MDMC2222468
- Added:45 day(s) ago
- Updated:May 26, 2026 at 07:33 AM
Rooms and interior
- Bedrooms:4
- Total bathrooms:5
- Full bathrooms:4
- Half bathrooms:1
- Flooring:Ceramic Tile, Hardwood
- Dining Description:Dining Room, Formal/Separate Dining Room
- Bathrooms Description:Bathroom 2, Bathroom 3, Primary Bath(s), Primary Bathroom
- Kitchen Description:Breakfast Area, Built-Ins, Cooktop, Crown Moldings, Dishwasher, Disposal, Exhaust Fan, Kitchen - Country, Kitchen - Eat-In, Kitchen - Table Space, Oven - Double, Oven - Self Cleaning, Oven - Wall, Refrigerator, Water Heater
- Bedroom Description:Primary Bedroom, Walk In Closet(s)
- Basement:Yes
- Living area:5,151 sq. ft.
Heating and cooling
- Cooling:Central A/C
- Heating:Forced Air, Natural Gas
Structure and exterior
- Roof:Architectural Shingle
- Year built:1968
- Building area:5,151 sq. ft.
- Lot area:0.48 Acres
- Lot Features:Front Yard, Landscaping, No Thru Street, Premium
- Architectural Style:Traditional
- Construction Materials:Brick
- Exterior Features:BBQ Grill, Flood Lights, Lawn Sprinkler
- Levels:3 Story
Utilities
- Water:Public
- Sewer:Public Sewer
Finances and disclosures
- Price:$1,598,000
- Price per sq. ft.:$310.23
- Tax amount:$16,740 (2025)
Features and amenities
- Laundry features:Dryer, Washer
- Amenities:Bar, Built-Ins, Ceiling Fan(s), Chair Railings, Crown Moldings, Double Hung Windows, Exposed Beams
Parking
- Parking description:Asphalt Driveway, Attached Garage, Garage - Side Entry, Garage Door Opener, Oversized, Private
- Garage:Yes
- Garage spaces:2
New listings near 10008 Carmelita Dr
- Coming SoonOpen Sun, 2 to 4pm
$1,595,000Coming Soon4 beds 4 baths11404 Grundy Ct, POTOMAC, MD 20854
MLS# MDMC2227500Listed by: WASHINGTON FINE PROPERTIES, LLC - Coming Soon
$1,050,000Coming Soon5 beds 3 baths12912 Stallion Ct, POTOMAC, MD 20854
MLS# MDMC2236688Listed by: TTR SOTHEBY'S INTERNATIONAL REALTY - New
$195,000Active1 beds 1 baths624 sq. ft.7505 Democracy Blvd #a430, BETHESDA, MD 20817
MLS# MDMC2236598Listed by: TTR SOTHEBY'S INTERNATIONAL REALTY - New
$1,200,000Active4 beds 4 baths4,500 sq. ft.10240 Colebrook Ave, POTOMAC, MD 20854
MLS# MDMC2236194Listed by: LONG & FOSTER REAL ESTATE, INC. - New
$1,650,000Active5 beds 6 baths5,320 sq. ft.8566 Brickyard Rd, POTOMAC, MD 20854
MLS# MDMC2236468Listed by: SAMSON PROPERTIES
$1,375,000Pending4 beds 3 baths2,724 sq. ft.8108 Hamilton Spring Rd, BETHESDA, MD 20817
MLS# MDMC2236554Listed by: COMPASS- Coming SoonOpen Sat, 2 to 4pm
$2,195,000Coming Soon5 beds 7 baths9205 Pegasus Ct, POTOMAC, MD 20854
MLS# MDMC2236470Listed by: TTR SOTHEBY'S INTERNATIONAL REALTY - Coming Soon
$1,899,900Coming Soon4 beds 7 baths11300 Tara Rd, POTOMAC, MD 20854
MLS# MDMC2236058Listed by: KW METRO CENTER - Coming Soon
$2,500,000Coming Soon5 beds 7 baths9455 Newbridge Dr, POTOMAC, MD 20854
MLS# MDMC2232404Listed by: LONG & FOSTER REAL ESTATE, INC. - New
$1,100,000Active4 beds 3 baths2,736 sq. ft.10900 Gainsborough Rd, POTOMAC, MD 20854
MLS# MDMC2232634Listed by: LONG & FOSTER REAL ESTATE, INC.