4952 River Oaks Road, Rockford, MN 55373
Local realty services provided by:ERA Prospera Real Estate
4952 River Oaks Road,Rockford, MN 55373
$452,120
- 2 Beds
- 2 Baths
- 1,409 sq. ft.
- Single family
- Active
Listed by: daniel d boman, gretchen r boman
Office: counselor realty, inc
MLS#:6817125
Source:NSMLS
Price summary
- Price:$452,120
- Price per sq. ft.:$320.88
- Monthly HOA dues:$29.17
About this home
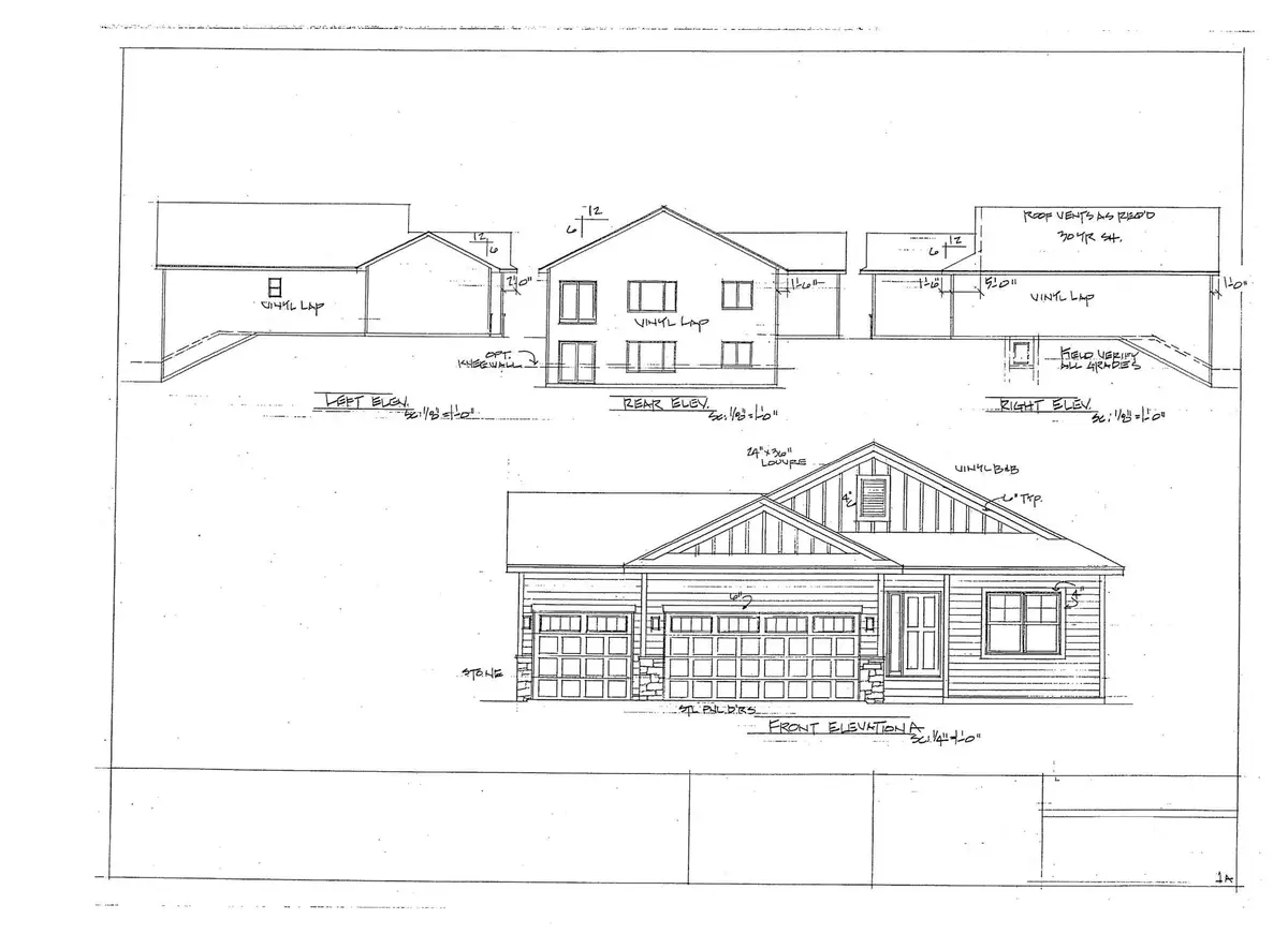
This is a To Be Built house and won't be started until it is sold. Looking for an affordable rambler design, the Mirabel by Drake Construction Inc offers 2 Bedrooms, 2 baths and 1409 square feet finished on the main level plus a full walkout basement for future expansion. Nice mudroom off the garage entrance with a sitting bench and adjoining laundry room. Open concept design on the kitchen/dining & great room with 9 foot flat ceilings. The kitchen offers a center island with a snack bar overhang , corner pantry closet, granite countertops, an LG kitchen appliance package and easy care LVP flooring. The Great room has a large 3 wide window for more natural light. Beautiful wood/iron railing system. The primary bedroom is on the opposite side of the house as bedroom # 2 for more privacy. The primary bathroom offers a double sink vanity, an enclosed water closet with a window, a linen closet and a 3x4 fiberglass shower bay plus a large walk in closet. The basement space is set up for a future rec room, 2 additional bedrooms and a 3/4 bath. Lots of house for the money....
Contact an agent
Home facts
- Year built:2026
- Listing ID #:6817125
- Added:119 day(s) ago
- Updated:March 29, 2026 at 12:04 PM
Rooms and interior
- Bedrooms:2
- Total bathrooms:2
- Full bathrooms:1
- Dining Description:Informal Dining Room
- Bathrooms Description:Basement, Main Floor Full Bath, Rough In
- Kitchen Description:Dishwasher, Disposal, Exhaust Fan, Microwave, Range, Refrigerator, Stainless Steel Appliances
- Basement:Yes
- Basement Description:Concrete, Drain Tiled, Full, Sump Pump, Unfinished, Walkout
- Living area:1,409 sq. ft.
Heating and cooling
- Cooling:Central Air
- Heating:Forced Air
- Central air:Yes
Structure and exterior
- Roof:Age 8 Years or Less, Pitched
- Year built:2026
- Building area:1,409 sq. ft.
- Lot area:0.31 Acres
- Lot Features:Sod Included in Price, Tree Coverage - Light, Underground Utilities
- Levels:1 Story
Utilities
- Water:City Water - Connected
- Sewer:City Sewer - Connected
Finances and disclosures
- Price:$452,120
- Price per sq. ft.:$320.88
- Tax amount:$1,136 (2025)
Features and amenities
- Appliances:Disposal, Exhaust Fan, Microwave, Range, Refrigerator, Stainless Steel Appliances
- Amenities:Air-To-Air Exchanger, Electric Water Heater
Parking
- Parking description:Asphalt, Attached Garage, Electric, Garage Door Opener
- Garage:Yes
- Garage spaces:3
New listings near 4952 River Oaks Road
- New
$394,900Active2 beds 2 baths1,731 sq. ft.7870 Willowbrook Court, Greenfield, MN 55373
MLS# 7044696Listed by: JPW REALTY - Open Mon, 4 to 6pmNew
$475,000Active4 beds 3 baths2,814 sq. ft.7000 Jenks Drive, Rockford, MN 55373
MLS# 7043255Listed by: KG REALTY - New
$259,900Active2 beds 2 baths900 sq. ft.6301 Main Street, Rockford, MN 55373
MLS# 7043522Listed by: LAKES AREA REALTY G.V. - New
$300,000Active3 beds 2 baths1,517 sq. ft.5900 Maple Street, Rockford, MN 55373
MLS# 7037559Listed by: EXP REALTY - New
$49,900Active0.24 AcresTBD Mainstreet, Rockford, MN 55373
MLS# 7039698Listed by: BRIDGE REALTY, LLC
$350,000Pending3 beds 2 baths1,822 sq. ft.4018 Aspen Circle S, Rockford, MN 55373
MLS# 7016346Listed by: KELLER WILLIAMS PREMIER REALTY LAKE MINNETONKA
$419,900Active3 beds 2 baths1,596 sq. ft.7804 Bridgewater Court, Greenfield, MN 55373
MLS# 7035202Listed by: JPW REALTY
$334,900Active2 beds 2 baths1,330 sq. ft.6050 Iris Lane, Rockford, MN 55373
MLS# 7032068Listed by: LAKES AREA REALTY G.V.
$415,000Active2 beds 2 baths1,582 sq. ft.7010 Guilford Lane, Rockford, MN 55373
MLS# 7024989Listed by: EXP REALTY- Open Sun, 1 to 2:30pm
$350,000Active2 beds 2 baths1,464 sq. ft.6230 Boulder Ridge Drive, Rockford, MN 55373
MLS# 7025093Listed by: EDINA REALTY, INC.