5134 Colchester Court #65, Catawba, NC 28609

Local realty services provided by:ERA Live Moore
Listed by: angie dierks, brandon kirk
Office: adams homes realty-nc, inc.
MLS#:4342909
Source:CH
5134 Colchester Court #65,Catawba, NC 28609
$449,200
  • 4 Beds
  • 3 Baths
  • 2,505 sq. ft.
  • Single family
  • Active
Upcoming open houses
  • Sat, Apr 04
    11:00 am - 04:00 pm

Price summary

  • Price:$449,200
  • Price per sq. ft.:$179.32

About this home

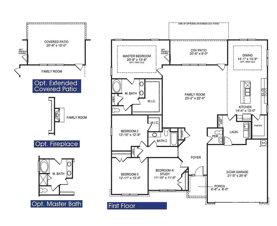
COMPLETE AND READY TO MOVE IN! The 2505 ranch floor plan is spacious and very versatile situated on almost one acre. With soaring ceilings and a fireplace, the great room is perfect for enjoying time with others. The kitchen features a center island with breakfast bar stainless appliances. Retreat to the primary suite offering an ensuite featuring dual vanities, tiled shower with bench seat and a generously sized walk-in closet. You will find additional space with the bedrooms and possible office area. These rooms provide ample space and for family members or guests, ensuring everyone feels at home. Don't miss the opportunity to own a home that surpasses your expectations. The 2505 floorplan invites you to elevate your living experience by enjoying all the comforts this home has to offer. Covered 16x14 back porch, coffered ceilings, gridded window panes, drop zone, and beautiful stone package. Flex cash and special interest rates available. Standard closing costs are paid by the...

Contact an agent

contact an agent

Yes, I would like more information. Please use and/or share my information with an ERA®  affiliated agent to contact me about my real estate needs. By clicking Send message, I request to be contacted by phone or text message and consent to being contacted by automated means. I understand that my consent to receive calls or texts is not a condition of purchasing any property, goods, or services. Alternatively, I understand that I can access real estate services by email or I can contact the agent myself.

If an ERA®  affiliated agent is not available in the area where I need assistance, I agree to be contacted by a real estate agent affiliated with another brand owned or licensed by Anywhere Real Estate (BHGRE® , CENTURY 21® , Coldwell Banker® , Corcoran® , Sotheby's International Realty® ).
 I acknowledge that I have read and agree to theTerms of useandPrivacy notice

Home facts

  • Year built:2026
  • Listing ID #:4342909
  • Updated:April 03, 2026 at 04:17 PM

Rooms and interior

  • Bedrooms:4
  • Total bathrooms:3
  • Full bathrooms:2
  • Half bathrooms:1
  • Flooring:Carpet, Laminate, Vinyl
  • Kitchen Description:Dishwasher, Electric Range, Microwave, Plumbed For Ice Maker
  • Living area:2,505 sq. ft.

Heating and cooling

  • Cooling:Heat Pump
  • Heating:Heat Pump
  • Central air:Yes

Structure and exterior

  • Year built:2026
  • Building area:2,505 sq. ft.
  • Lot area:0.92 Acres
  • Lot Features:Cleared, Corner Lot
  • Architectural Style:Ranch
  • Construction Materials:Stone Veneer, Vinyl
  • Foundation Description:Crawl Space
  • Levels:1 Story

Schools

  • High school:Bandys
  • Elementary school:Catawba

Utilities

  • Water:County Water
  • Sewer:Septic (At Site)

Finances and disclosures

  • Price:$449,200
  • Price per sq. ft.:$179.32

Features and amenities

  • Laundry features:Laundry Room, Main Level
  • Amenities:Attic Stairs Pulldown, Open Floorplan, Walk-In Closet(s), Walk-In Pantry

Parking

  • Parking description:Attached Garage
  • Garage:Yes
  • Garage spaces:2
MLS LogoListings courtesy of Canopy MLS as distributed by MLS GRID. Copyright 2021 Canopy MLS. All rights reserved. Canopy MLS, provides content displayed here (“provided content”) on an “as is” basis and makes no representations or warranties regarding the provided content, including, but not limited to those of non-infringement, timeliness, accuracy, or completeness. Individuals and companies using information presented are responsible for verification and validation of information they utilize and present to their customers and clients. Canopy MLS will not be liable for any damage or loss resulting from use of the provided content or the products available through Portals, IDX, VOW, and/or Syndication. Recipients of this information shall not resell, redistribute, reproduce, modify, or otherwise copy any portion thereof without the expressed written consent of Canopy MLS.