Lot 44 Twinbrook Lane, Maggie Valley, NC 28751

Local realty services provided by:ERA Live Moore
Listed by: thomas mallette
Office: better homes and gardens real estate heritage
MLS#:4329486
Source:CH
Lot 44 Twinbrook Lane,Maggie Valley, NC 28751
$349,900
  • 3 Beds
  • 2 Baths
  • 1,120 sq. ft.
  • Single family
  • Active

Price summary

  • Price:$349,900
  • Price per sq. ft.:$312.41
  • Monthly HOA dues:$100

About this home

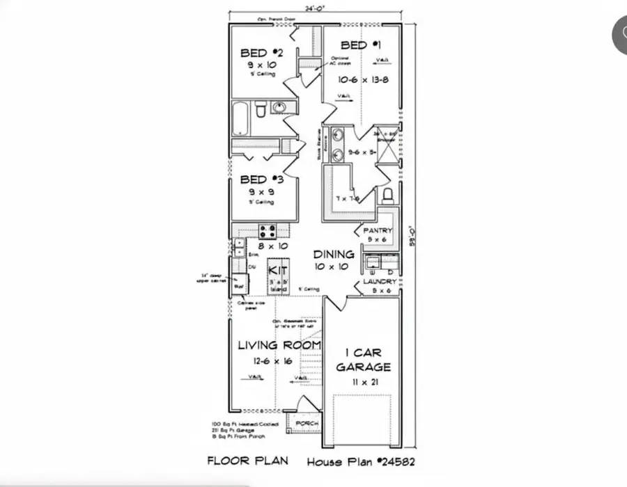
Is there a 3-bed cottage in Maggie Valley with resort amenities, a creek, and energy-efficient design? Yes—and it's a proposed 2026 build in the Twinbrook Resort subdivision. With 1,120 sq ft on one level, this 3-bed, 2-bath cottage features 9’ ceilings throughout, a granite kitchen with stainless appliances, a walk-in pantry, a breakfast nook, and LVP flooring. The primary suite offers a walk-in closet, and the laundry room is conveniently located on the main floor. Thoughtfully designed for a narrow lot (24’ wide), this home includes a covered front porch, a front-entry 1-car garage (231 sq ft), and a rear-facing creek view. The .22-acre lot sits in a wooded, walkable neighborhood just minutes from Maggie Valley shops, restaurants, and the Blue Ridge Parkway. Twinbrook Resort’s $1,200/year HOA includes a clubhouse, indoor pool, and hot tub. Additional features: energy-efficient construction, 8:12 roof pitch, and economical build plan. Zoned for Jonathan Valley Elementary,...

Contact an agent

contact an agent

Yes, I would like more information. Please use and/or share my information with an ERA®  affiliated agent to contact me about my real estate needs. By clicking Send message, I request to be contacted by phone or text message and consent to being contacted by automated means. I understand that my consent to receive calls or texts is not a condition of purchasing any property, goods, or services. Alternatively, I understand that I can access real estate services by email or I can contact the agent myself.

If an ERA®  affiliated agent is not available in the area where I need assistance, I agree to be contacted by a real estate agent affiliated with another brand owned or licensed by Anywhere Real Estate (BHGRE® , CENTURY 21® , Coldwell Banker® , Corcoran® , Sotheby's International Realty® ).
 I acknowledge that I have read and agree to theTerms of useandPrivacy notice

Home facts

  • Year built:2026
  • Listing ID #:4329486
  • Updated:May 15, 2026 at 01:16 PM

Rooms and interior

  • Bedrooms:3
  • Total bathrooms:2
  • Full bathrooms:2
  • Flooring:Vinyl
  • Kitchen Description:Dishwasher, Electric Oven, Electric Range, Microwave, Refrigerator
  • Living area:1,120 sq. ft.

Heating and cooling

  • Cooling:Central Air, Heat Pump
  • Heating:Heat Pump
  • Central air:Yes

Structure and exterior

  • Year built:2026
  • Building area:1,120 sq. ft.
  • Lot area:0.22 Acres
  • Architectural Style:Cottage
  • Construction Materials:Fiber Cement
  • Foundation Description:Crawl Space

Schools

  • High school:Tuscola
  • Elementary school:Jonathan Valley

Utilities

  • Sewer:Public Sewer

Finances and disclosures

  • Price:$349,900
  • Price per sq. ft.:$312.41

Features and amenities

  • Laundry features:Laundry Room

Parking

  • Parking description:Attached Garage, Driveway
  • Garage:Yes
  • Garage spaces:1
MLS LogoListings courtesy of Canopy MLS as distributed by MLS GRID. Copyright 2021 Canopy MLS. All rights reserved. Canopy MLS, provides content displayed here (“provided content”) on an “as is” basis and makes no representations or warranties regarding the provided content, including, but not limited to those of non-infringement, timeliness, accuracy, or completeness. Individuals and companies using information presented are responsible for verification and validation of information they utilize and present to their customers and clients. Canopy MLS will not be liable for any damage or loss resulting from use of the provided content or the products available through Portals, IDX, VOW, and/or Syndication. Recipients of this information shall not resell, redistribute, reproduce, modify, or otherwise copy any portion thereof without the expressed written consent of Canopy MLS.