11802 S Hickory Lane, Claremore, OK 74017
Local realty services provided by:ERA CS Raper & Son
11802 S Hickory Lane,Claremore, OK 74017
$700,000
- 5 Beds
- 5 Baths
- 4,544 sq. ft.
- Single family
- Active
Listed by: brenda foulks
Office: solid rock, realtors
MLS#:2604957
Source:OK_NORES
Price summary
- Price:$700,000
- Price per sq. ft.:$154.05
About this home
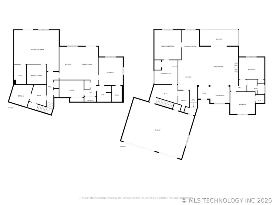
Beautiful custom built home with a full finished basement. Has 6" wood
frame and 12" concrete exterior walls. Half of the basement is a two
bedrooms with kitchen/living area with a full bathroom and laundry
room and covered walk out patio. The other half has a 1/2 bathroom,
but is plumbed so a shower can be installed and has two rooms and a
double door to go outside. So many options, entertainment, home school,
hobbies, den, office, etc.
Main living area has an amazing walk out covered balcony with 9' glass
pocket door, that lets you enjoy the beautiful weather. Spacious
living room and kitchen. Wait until you see the pantry, your smaller
appliances have their own shelf with outlets and lots of storage.
When the plumbing was install, they did a water loop that gives
instant hot water anywhere in the home. Both house and shop have 400
amp electric. The house also has extra installation in walls and
ceiling. Granite counter tops throughout the house.
A 2 garage car with shop attached, shop has heat and air, with a half
bath. It is ideal for any hobbies.
ATV trails, creek, area for picnics, etc....
Contact an agent
Home facts
- Year built:2018
- Listing ID #:2604957
- Added:240 day(s) ago
- Updated:May 22, 2026 at 03:15 PM
Rooms and interior
- Bedrooms:5
- Total bathrooms:5
- Full bathrooms:3
- Flooring:Tile, Wood
- Kitchen Description:Dishwasher, Microwave, Refrigerator
- Basement:Yes
- Basement Description:Finished, Full, Walk-Out Access
- Living area:4,544 sq. ft.
Heating and cooling
- Cooling:3+ Units, Central Air
- Heating:Central, Gas
Structure and exterior
- Year built:2018
- Building area:4,544 sq. ft.
- Lot area:4.61 Acres
- Lot Features:Mature Trees, Wooded
- Construction Materials:Hardiplank Type, Stone, Wood Frame
- Foundation Description:Slab
Schools
- High school:Foyil
- Elementary school:Foyil
Finances and disclosures
- Price:$700,000
- Price per sq. ft.:$154.05
- Tax amount:$4,284 (2025)
Features and amenities
- Appliances:Built-In Oven, Built-In Range, Dishwasher, Gas Water Heater, Microwave, Oven, Range, Refrigerator
- Amenities:Ceiling Fan(s), High Ceilings, High Speed Internet, Insulated Window, Programmable Thermostat, Safe Room Interior, Security System - Owned, Smoke Detector(s), Vaulted Ceiling(s), Vinyl Windows
Parking
- Garage:Yes
- Garage spaces:5
New listings near 11802 S Hickory Lane
- Open Sun, 2 to 4pmNew
$250,000Active4 beds 2 baths1,631 sq. ft.23464 S Donna Lane, Claremore, OK 74019
MLS# 2618599Listed by: COLDWELL BANKER SELECT - New
$300,000Active4 beds 3 baths2,323 sq. ft.24371 S Lindley Drive, Claremore, OK 74019
MLS# 2618786Listed by: KELLER WILLIAMS PREMIER - New
$269,000Active3 beds 2 baths1,662 sq. ft.17567 E 405 Road, Claremore, OK 74017
MLS# 2618158Listed by: OKLAHOMES REALTY, INC. - New
$339,900Active4 beds 2 baths2,078 sq. ft.26595 Columbia Crest Drive, Claremore, OK 74019
MLS# 2618341Listed by: COLDWELL BANKER SELECT - New
$169,000Active2 beds 1 baths886 sq. ft.9414 E Magnoliawood Drive, Claremore, OK 74019
MLS# 2618430Listed by: CHINOWTH & COHEN
$380,000Pending4 beds 3 baths2,271 sq. ft.26456 Echelon Drive, Claremore, OK 74019
MLS# 2618324Listed by: SOLID ROCK, REALTORS- New
$141,000Active3 beds 1 baths1,056 sq. ft.718 E 5th Street, Claremore, OK 74017
MLS# 2618307Listed by: PASSIONATE REAL ESTATE - New
$515,000Active4 beds 2 baths2,841 sq. ft.15550 S 4187 Road, Claremore, OK 74017
MLS# 2618126Listed by: PEMBROOK REALTY GROUP - New
$675,000Active5 beds 5 baths3,081 sq. ft.7603 E 534 Road, Claremore, OK 74019
MLS# 2618098Listed by: HOMESMART STELLAR REALTY - New
$135,000Active3 beds 2 baths1,068 sq. ft.428 E 4th Street, Claremore, OK 74017
MLS# 2618053Listed by: BLACK LABEL AGENTS