425 NE 146th Ave, Portland, OR 97230
Local realty services provided by:Knipe Realty ERA Powered
425 NE 146th Ave,Portland, OR 97230
$649,900
- 0 Acres
- Lots / Land
- Active
Listed by: spenser beck
Office: handris realty co.503-657-1094
MLS#:277045500
Source:PORTLAND
Price summary
- Price:$649,900
About this home
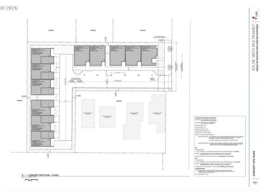
Prime development opportunity in NE Portland with strong infill potential. This property is being offered as a land value/development play with a preliminary fit test suggesting the potential for a 14-unit townhome project (8 smaller units and 6 larger units). Ideal for builders or investors looking for their next infill project in a growing area with strong resale demand.The existing structure on site is considered functionally obsolete and the property is best suited for redevelopment or rehab. Preliminary architectural concepts and fit test available for review to help illustrate the potential vision for the site. Buyer to perform all due diligence regarding zoning, density, utilities, and development feasibility.Conveniently located with access to major commuter routes, shopping, and amenities, this site presents a compelling opportunity for a developer to capitalize on new construction demand in the Portland market. Rare chance to acquire a project-ready site where much of the initial visioning work has already been completed. Bring your builder, investor, or development team — opportunities like this are limited....
Contact an agent
Home facts
- Listing ID #:277045500
- Added:64 day(s) ago
- Updated:April 26, 2026 at 11:18 AM
Schools
- High school:Reynolds
- Middle school:H.B. Lee
- Elementary school:Glenfair
Utilities
- Water:Water Connected
- Sewer:Sewer Connected
Finances and disclosures
- Price:$649,900
- Tax amount:$4,851
New listings near 425 NE 146th Ave
- New
$949,000Active4 beds 2 baths2,250 sq. ft.1332 NE Fremont St, Portland, OR 97212
MLS# 183900044Listed by: EXP REALTY, LLC - New
$750,000Active8 beds 3 baths3,267 sq. ft.1326 SW 12th Ave, Portland, OR 97201
MLS# 427234062Listed by: PROFESSIONAL REALTY SERVICES INTERNATIONAL, INC - New
$345,000Active3 beds 1 baths700 sq. ft.6517 SE 99th Ave, Portland, OR 97266
MLS# 598657312Listed by: EXP REALTY, LLC - New
$1,135,000Active3 beds 3 baths3,024 sq. ft.17805 NW 178th Ter, Portland, OR 97229
MLS# 665491454Listed by: JOHN L. SCOTT - New
Listed by ERA$199,000Active1 beds 1 baths560 sq. ft.711 NE Randall Ave #301, Portland, OR 97232
MLS# 679256372Listed by: KNIPE REALTY ERA POWERED - Open Sun, 1 to 3pmNew
$389,000Active3 beds 3 baths1,456 sq. ft.3829 SE 103rd Ave, Portland, OR 97266
MLS# 386754463Listed by: WINDERMERE REALTY TRUST - New
$319,900Active2 beds 2 baths876 sq. ft.101 NE 78th Ave, Portland, OR 97213
MLS# 523445593Listed by: PREMIERE PROPERTY GROUP, LLC - New
$560,000Active2 beds 2 baths884 sq. ft.2534 SW Custer St, Portland, OR 97219
MLS# 641391699Listed by: RAREBIRD REAL ESTATE - New
$399,900Active3 beds 3 baths1,119 sq. ft.95 NE 78th Ave, Portland, OR 97213
MLS# 678630661Listed by: PREMIERE PROPERTY GROUP, LLC - New
$439,000Active3 beds 2 baths1,664 sq. ft.16315 NE Holladay St, Portland, OR 97230
MLS# 144017377Listed by: JOHN L. SCOTT PORTLAND METRO