10019 Interlake Avenue N, Seattle, WA 98133

Local realty services provided by:Imagine Realty ERA Powered
Listed by: ray senn
Office: kw greater seattle
MLS#:2452809
Source:NWMLS
10019 Interlake Avenue N,Seattle, WA 98133
$745,000
  • 2 Beds
  • 1 Baths
  • 1,320 sq. ft.
  • Single family
  • Active

Price summary

  • Price:$745,000
  • Price per sq. ft.:$564.39

About this home

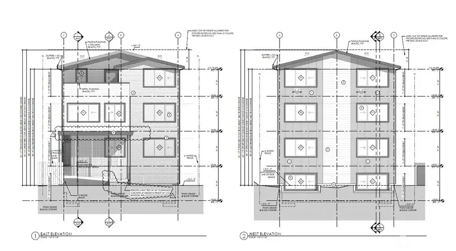
*Price Reduced-This is a permit-ready development lot in Seattle's desirable Northgate neighborhood. The lot is 4,980SF and pre-approved for a 14-unit apartment building (6,474BSF) under LR1(M) zoning. Multiple unit configurations, bike parking, and sustainable designs conform to different tenant needs. Located near I-5, the Light Rail, Green Lake, and UW, it aligns well with the One Seattle Plan. Demolition and Construction permits are ready for issuance; Master Use Permit issued upon completion. Existing home (720SF, 1bd/1ba, 600sf basement, det. garage) is operated as a short-term rental with strong occupancy and income. Complete this modern and vibrant addition to Northgate or expand the lot your way! New Roof installed in October 2025.

Contact an agent

contact an agent

Yes, I would like more information. Please use and/or share my information with an ERA®  affiliated agent to contact me about my real estate needs. By clicking Send message, I request to be contacted by phone or text message and consent to being contacted by automated means. I understand that my consent to receive calls or texts is not a condition of purchasing any property, goods, or services. Alternatively, I understand that I can access real estate services by email or I can contact the agent myself.

If an ERA®  affiliated agent is not available in the area where I need assistance, I agree to be contacted by a real estate agent affiliated with another brand owned or licensed by Anywhere Real Estate (BHGRE® , CENTURY 21® , Coldwell Banker® , Corcoran® , Sotheby's International Realty® ).
 I acknowledge that I have read and agree to theTerms of useandPrivacy notice

Home facts

  • Year built:1926
  • Listing ID #:2452809
  • Updated:April 02, 2026 at 10:54 AM

Rooms and interior

  • Bedrooms:2
  • Total bathrooms:1
  • Flooring:Ceramic Tile Floor, Vinyl Floor
  • Kitchen Description:Dishwasher, Refrigerator
  • Bedroom Description:Main Level Bedrooms : 2
  • Basement:Yes
  • Basement Description:Unfinished
  • Living area:1,320 sq. ft.

Heating and cooling

  • Heating:Forced Air

Structure and exterior

  • Roof:Composition
  • Year built:1926
  • Building area:1,320 sq. ft.
  • Lot area:0.11 Acres
  • Lot Features:Paved
  • Construction Materials:Wood Exterior Finish
  • Exterior Features:Fenced-Partially
  • Foundation Description:Unfinished
  • Levels:1 Story

Schools

  • High school:Ingraham High
  • Middle school:Robert Eagle Staff Middle School
  • Elementary school:Viewlands

Utilities

  • Sewer:Available

Finances and disclosures

  • Price:$745,000
  • Price per sq. ft.:$564.39
  • Tax amount:$5,648 (2025)

Features and amenities

  • Appliances:Dishwasher, Refrigerator, Washer
  • Laundry features:Dryer, Washer
  • Amenities:Water Heater

Parking

  • Parking description:Detached Garage, Driveway
  • Garage:Yes
MLS LogoListings courtesy of Northwest MLS as distributed by MLS GRID. Based on information submitted to the MLS GRID as of April 2, 2026. All data is obtained from various sources and may not have been verified by broker or MLS GRID. Supplied Open House Information is subject to change without notice. All information should be independently reviewed and verified for accuracy. Properties may or may not be listed by the office/agent presenting the information. Listing information is provided for consumers' personal, non-commercial use, solely to identify prospective properties for potential purchase; all other use is strictly prohibited and may violate relevant federal and state law. Information deemed reliable but not guaranteed. Copyright © 2026 MLS GRID. All Rights Reserved.