16775 E Kettle Avenue, Centennial, CO 80016
Local realty services provided by:ERA New Age
16775 E Kettle Avenue,Centennial, CO 80016
$693,700
- 4 Beds
- 4 Baths
- 2,356 sq. ft.
- Single family
- Active
Listed by: tom ullrichtomrman@aol.com,303-910-8436
Office: re/max professionals
MLS#:5786598
Source:ML
Price summary
- Price:$693,700
- Price per sq. ft.:$294.44
- Monthly HOA dues:$44
About this home
**Available with rates as low as 3.75% when using builder’s preferred lender – terms and conditions apply – ask for details****Contact builder today about Special Financing for this home **
Available NOW!
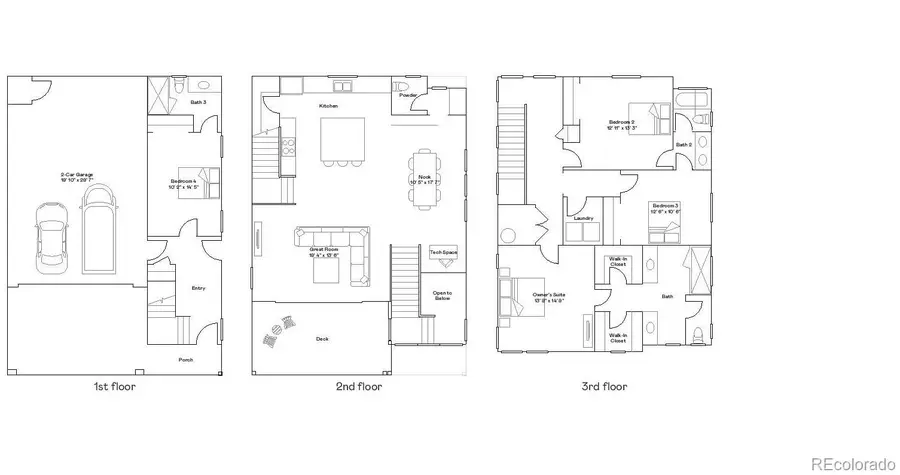
Beautiful Boulevard 3-story plan in the brand new Vermilion community has a beautiful outdoor living balcony and features 4 bedrooms (3 upper / 1 lower), 3.5 baths, great room, kitchen, laundry, 2.5 car garage and a crawlspace. Gorgeous finishes and upgrades throughout including luxury vinyl plank flooring, stainless steel appliances, Quartz package, low maintenance backyard space and more. The builder provides the latest in energy efficiency and state of the art technology with several fabulous floorplans to choose from. Energy efficiency, and technology/connectivity seamlessly blended with luxury to make your new house a home. Vermilion Creek offers single family homes for every lifestyle. Close to dining, shopping, entertainment and other amenities. Association fee subject to change. Photos and the Matterport 3D tour are of a model home and are provided for illustrative purposes only. Features, finishes, and layout may vary and are subject to change. Washer / Dryer Included / Private Fencing / Whole House Blinds / Adjacent to open lawn area. Enjoy easy access to Tagawa Gardens and the Cherry Creek Trails right outside your neighborhood....
Contact an agent
Home facts
- Year built:2026
- Listing ID #:5786598
Rooms and interior
- Bedrooms:4
- Total bathrooms:4
- Full bathrooms:1
- Half bathrooms:1
- Flooring:Carpet, Tile, Vinyl
- Kitchen Description:Dishwasher, Disposal, Kitchen Island, Microwave, Oven, Refrigerator
- Basement:Yes
- Basement Description:Crawl Space
- Living area:2,356 sq. ft.
Heating and cooling
- Cooling:Central Air
- Heating:Electric
- Central air:Yes
Structure and exterior
- Roof:Composition
- Year built:2026
- Building area:2,356 sq. ft.
- Lot area:0.06 Acres
- Construction Materials:Frame
- Exterior Features:Front Porch
- Levels:3 or More Stories
Schools
- High school:Grandview
- Middle school:Liberty
- Elementary school:Red Hawk Ridge
Utilities
- Water:Public
- Sewer:Public Sewer
Finances and disclosures
- Price:$693,700
- Price per sq. ft.:$294.44
- Tax amount:$8,186 (2025)
Features and amenities
- Laundry features:In Unit
- Amenities:Carbon Monoxide Detector(s), Double Pane Windows, Smoke Detector(s)
Parking
- Total parking spaces:2
- Parking description:Concrete Driveway
- Garage:Yes
- Garage spaces:2
New listings near 16775 E Kettle Avenue
- Coming Soon
$475,000Coming Soon2 beds 3 baths9019 E Panorama Circle #D213, Englewood, CO 80112
MLS# 2232785Listed by: RE/MAX PROFESSIONALS - New
$750,000Active3 beds 3 baths2,047 sq. ft.556 E Fremont Place, Centennial, CO 80122
MLS# 9660796Listed by: RE/MAX PROFESSIONALS - Open Sat, 11am to 1pmNew
$469,999Active3 beds 3 baths1,916 sq. ft.5555 E Briarwood Avenue #2201, Centennial, CO 80122
MLS# 2077300Listed by: LPT REALTY - Coming Soon
$1,615,000Coming Soon4 beds 5 baths7591 S Ensenada Court, Centennial, CO 80016
MLS# 8541827Listed by: KFINN PROPERTIES, LLC - New
$749,996Active5 beds 5 baths3,768 sq. ft.5773 S Orleans Street, Centennial, CO 80015
MLS# 4900045Listed by: RE/MAX PROFESSIONALS - New
$499,900Active2 beds 2 baths1,099 sq. ft.7643 S Mobile Way, Centennial, CO 80016
MLS# 8406266Listed by: RE/MAX PROFESSIONALS - Open Sat, 12 to 2pmNew
$550,000Active3 beds 3 baths1,603 sq. ft.7467 S Albion Street S, Centennial, CO 80122
MLS# 6441254Listed by: KELLER WILLIAMS DTC - Coming SoonOpen Sat, 12 to 4pm
$649,900Coming Soon4 beds 2 baths7270 S Pennsylvania Street, Centennial, CO 80122
MLS# 8471583Listed by: COMPASS - DENVER - New
$374,000Active2 beds 2 baths1,172 sq. ft.9079 E Panorama Circle #301, Englewood, CO 80112
MLS# 7238158Listed by: TRELORA REALTY, INC. - Coming SoonOpen Sat, 11am to 1pm
$1,525,000Coming Soon4 beds 3 baths7003 E Lake Circle, Centennial, CO 80111
MLS# 9333907Listed by: LIV SOTHEBY'S INTERNATIONAL REALTY