214 Varnum St Nw, Washington, DC 20011
Local realty services provided by:ERA Martin Associates
214 Varnum St Nw,Washington, DC 20011
$1,200,000
- 3 Beds
- 4 Baths
- 1,652 sq. ft.
- Townhouse
- Active
Listed by: khodayar amirbeiki
Office: realty advantage of maryland llc.
MLS#:DCDC2248688
Source:BRIGHTMLS
Price summary
- Price:$1,200,000
- Price per sq. ft.:$726.39
About this home
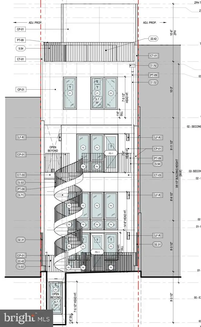
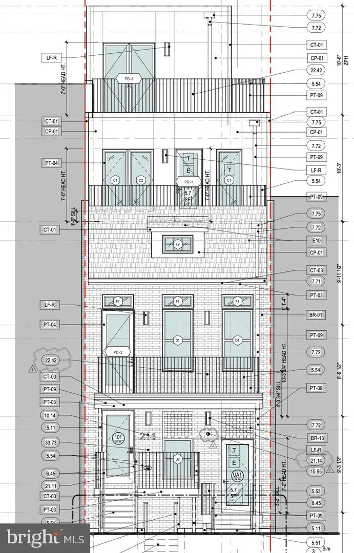
To-be-built multi-unit building in the heart of Washington, DC. Construction has already begun, and all drawings and permits are completed. The building will feature a collection of one-, two-, and three-bedroom units with open-concept layouts, abundant natural light, private balconies, and high-end finishes. Conveniently located near dining, shopping, and entertainment, offering modern city living with comfort and style. Listing Agent holds a partial ownership interest.
Contact an agent
Home facts
- Year built:1923
- Listing ID #:DCDC2248688
- Added:1 day(s) ago
- Updated:March 12, 2026 at 07:44 PM
Rooms and interior
- Bedrooms:3
- Total bathrooms:4
- Full bathrooms:3
- Half bathrooms:1
- Basement:Yes
- Basement Description:Front Entrance, Fully Finished, Heated, Outside Entrance, Rear Entrance, Sump Pump, Windows
- Living area:1,652 sq. ft.
Heating and cooling
- Heating:Electric, Hot Water
Structure and exterior
- Year built:1923
- Building area:1,652 sq. ft.
- Lot area:0.06 Acres
- Architectural Style:Colonial
- Construction Materials:Brick
- Foundation Description:Concrete Perimeter
- Levels:4 Story
Utilities
- Water:Public
- Sewer:Public Sewer
Finances and disclosures
- Price:$1,200,000
- Price per sq. ft.:$726.39
- Tax amount:$20,137 (2025)
Parking
- Parking description:Off Street
New listings near 214 Varnum St Nw
- Open Sun, 2 to 4pmNew
$475,000Active1 beds 1 baths841 sq. ft.1308 12th St Nw #a, WASHINGTON, DC 20005
MLS# DCDC2235454Listed by: COMPASS - New
$730,000Active5 beds 4 baths2,500 sq. ft.2405 Naylor Rd Se, WASHINGTON, DC 20020
MLS# DCDC2247236Listed by: ALLISON JAMES ESTATES & HOMES - Open Sat, 2 to 4pmNew
$350,000Active2 beds 2 baths835 sq. ft.5885 Colorado Ave Nw #401, WASHINGTON, DC 20011
MLS# DCDC2247280Listed by: REVERIE RESIDENTIAL - New
$20,000Active-- beds -- baths2829 Connecticut Ave Nw #30, WASHINGTON, DC 20008
MLS# DCDC2249110Listed by: SAMSON PROPERTIES - Open Sun, 1 to 2pmNew
$370,000Active2 beds 2 baths1,200 sq. ft.4000 Cathedral Ave Nw #6b, WASHINGTON, DC 20016
MLS# DCDC2249866Listed by: CORCORAN MCENEARNEY - New
$370,800Active3 beds 4 baths1,669 sq. ft.4314 Wheeler Rd Se, WASHINGTON, DC 20032
MLS# DCDC2249932Listed by: REDFIN CORP - Open Sun, 12 to 2pmNew
$469,900Active2 beds 1 baths772 sq. ft.1514 K St Se #2, WASHINGTON, DC 20003
MLS# DCDC2250190Listed by: KELLER WILLIAMS CAPITAL PROPERTIES - Open Sun, 1 to 3pmNew
$525,000Active1 beds 2 baths665 sq. ft.1515 15th St Nw #403, WASHINGTON, DC 20005
MLS# DCDC2250290Listed by: TTR SOTHEBY'S INTERNATIONAL REALTY - Open Sat, 1 to 4pmNew
$899,000Active3 beds 3 baths1,898 sq. ft.3620 13th St Nw #2, WASHINGTON, DC 20010
MLS# DCDC2250308Listed by: TTR SOTHEBY'S INTERNATIONAL REALTY