Lot #5 Chase Lane, Lewiston, ME 04240
Local realty services provided by:ERA Dawson-Bradford Co., REALTORS
Lot #5 Chase Lane,Lewiston, ME 04240
$475,000
- 3 Beds
- 2 Baths
- 1,400 sq. ft.
- Single family
- Active
Listed by: michelle gosselin
Office: home at last realty
MLS#:1640710
Source:ME_MREIS
Price summary
- Price:$475,000
- Price per sq. ft.:$339.29
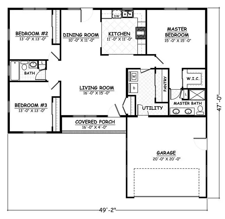
About this home
Welcome to Sanctuary Estates! Experience the perfect balance of comfort, quality, and nature in this beautiful new neighborhood. Surrounded by mature trees and peaceful scenery, each home offers underground power, public water, a private septic system to be installed, and an energy-efficient Combi propane boiler with on-demand hot water. Enjoy the nearby Thorncrag Nature Sanctuary along with convenient access to schools, shopping, dining, and major routes. Plans include a two-car garage and the opportunity to customize finishes and details including slab or foundation. Choose from modular or stick-built construction designed for modern, energy-efficient living.
Contact an agent
Home facts
- Year built:2025
- Listing ID #:1640710
- Updated:February 10, 2026 at 04:34 PM
Rooms and interior
- Bedrooms:3
- Total bathrooms:2
- Full bathrooms:2
- Rooms Total:6
- Flooring:Carpet, Vinyl
- Bathrooms Description:Bathtub, Shower
- Bedroom Description:1st Floor Bedroom, 1st Floor Primary Bedroom w/Bath
- Living area:1,400 sq. ft.
Heating and cooling
- Heating:Baseboard, Hot Water
Structure and exterior
- Year built:2025
- Building area:1,400 sq. ft.
- Lot area:0.53 Acres
- Lot Features:Abuts Conservation, Near Town, Neighborhood, Open, Rolling/Sloping, Subdivided, Wooded
- Architectural Style:Ranch
- Construction Materials:Vinyl Siding, Wood Frame
- Exterior Features:Deck, Porch
- Foundation Description:Concrete Perimeter
Utilities
- Water:Public
- Sewer:Private Sewer, Septic Design Available, Septic Needed
Finances and disclosures
- Price:$475,000
- Price per sq. ft.:$339.29
- Tax amount:$5,668 (2026)
Features and amenities
- Laundry features:Laundry - 1st Floor, Main Level
- Amenities:One-Floor Living, Storage
Parking
- Parking description:1 - 4 Spaces, Inside Entrance, Off street, Paved
- Garage:Yes
- Garage spaces:2
New listings near Lot #5 Chase Lane
- New
$69,000Active2 beds 1 baths924 sq. ft.10 Sarah Avenue, Lewiston, ME 04240
MLS# 1654059Listed by: FONTAINE FAMILY-THE REAL ESTATE LEADER - New
$300,000Active-- beds 3 baths1,920 sq. ft.291 Bates Street, Lewiston, ME 04240
MLS# 1654010Listed by: COTTAGE & CO REAL ESTATE - Open Sat, 11am to 1pmNew
$395,000Active3 beds 2 baths1,840 sq. ft.112 Gagne Street, Lewiston, ME 04240
MLS# 1653901Listed by: REDFIN CORPORATION - New
$479,999Active-- beds 2 baths2,422 sq. ft.675 Sabattus Street, Lewiston, ME 04240
MLS# 1653879Listed by: ELEVATE MAINE REALTY - New
$325,000Active3 beds 2 baths1,577 sq. ft.70 King Avenue, Lewiston, ME 04240
MLS# 1653848Listed by: F.O. BAILEY REAL ESTATE - Open Sat, 10 to 11:30amNew
$650,000Active3 beds 3 baths3,135 sq. ft.59 Waters Edge Drive, Lewiston, ME 04240
MLS# 1653705Listed by: FONTAINE FAMILY-THE REAL ESTATE LEADER - New
$234,995Active-- beds 1 baths4,037 sq. ft.337 Lisbon Street, Lewiston, ME 04240
MLS# 1653628Listed by: ROCKSTAR REAL ESTATE - Open Sat, 10am to 12pmNew
$425,000Active3 beds 3 baths1,690 sq. ft.50 Winding Way, Lewiston, ME 04240
MLS# 1653635Listed by: HEARTH & KEY REALTY
$255,000Pending3 beds 2 baths1,200 sq. ft.11 Victor Street, Lewiston, ME 04240
MLS# 1653534Listed by: FONTAINE FAMILY-THE REAL ESTATE LEADER- New
$539,999Active3 beds 2 baths1,400 sq. ft.3 Lochview Drive, Lewiston, ME 04240
MLS# 1653510Listed by: CENTURY 21 ADVANTAGE